STARŠÍ RODINNÝ DOM S 669 m2 POZEMKOM v lukratívnej lokalite
- [29.10. 2025]Zmazať/ Upraviť/ Topovať


























RK Domy pre ľudí ponúka na predaj starší rodinný dom nachádzajúci sa v lukratívnej lokalite BA I. – Staré Mesto, na Baníckej ulici.
Na pozemku sa nachádza starší rodinný dom zo 60tych rokov, prístavba garáže zo severnej strany domu, „letná kuchynka“ a záhradný domček.
Pozemok, ktorý má výmeru 669 m2 je mierne svahovitý a aktuálne zarastený náletovými, ako aj solitérnymi vzrastlými stromami.
Orientácia záhrady je na JV. Aktuálna UPI k dispozícii.
Základné údaje existujúcej stavby:
- Podlažnosť: 1 NP + 1 PP
- Úžitková plocha: 220 m2
- Zastavaná plocha: 153 m2
- Index zastavanosti: 22,8 %
RD je napojený na všetky IS: voda, elektrina, kanalizácia, plyn. Energetický certifikát nebol vyhotovený.
Rodinný dom je vhodný buď na kompletnú rekonštrukciu, prípadne zbúranie a výstavbu nového domu.
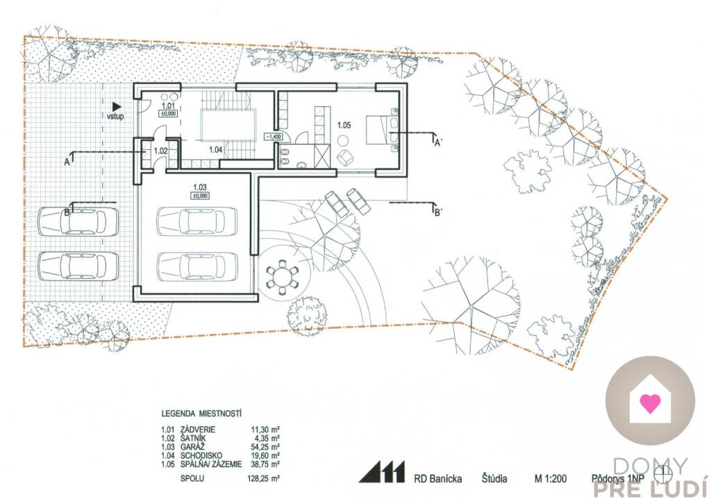
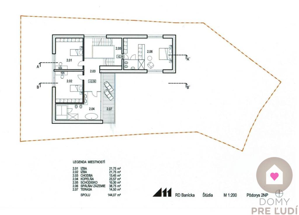
K dispozícii je vypracovaná štúdia na výstavbu nového rodinného domu s nasledovnými parametrami:
- Podlažnosť: 2 NP + 1 PP
- Úžitková plocha: 366,8 m2
- Zastavaná plocha: 197 m2
- Index zastavanosti: 29,3 %
Okolie domu, aj napriek blízkosti centra, je veľmi tiché a príjemné na bývanie. Lokalita ponúka kompletnú občianska vybavenosť, pešiu dostupnosť Starého Mesta a taktiež príjemné prechádzky po neďalekej Kalvárii.
Dodatok k cene: , vrátane provízie, možnosť HÚ
Zastavaná plocha: 153m²
Obytná plocha: 222m²
Celková rozloha: 669m²
Rozloha pozemku: 669m²
Úžitková plocha: 222m²
Vlastníctvo: osobné
Stav: nutná rekonštrukcia
El. napätie: 230/400V
Plyn: áno
Kanalizácia: áno
Vykurovanie: vlastné - plyn
Garáž: áno
Postavené z: tehla
Energetický certifikát: nie
Terén: mierny svah
Prístupová cesta: asfaltová cesta
Na pozemku sa nachádza starší rodinný dom zo 60tych rokov, prístavba garáže zo severnej strany domu, „letná kuchynka“ a záhradný domček.
Pozemok, ktorý má výmeru 669 m2 je mierne svahovitý a aktuálne zarastený náletovými, ako aj solitérnymi vzrastlými stromami.
Orientácia záhrady je na JV. Aktuálna UPI k dispozícii.
Základné údaje existujúcej stavby:
- Podlažnosť: 1 NP + 1 PP
- Úžitková plocha: 220 m2
- Zastavaná plocha: 153 m2
- Index zastavanosti: 22,8 %
RD je napojený na všetky IS: voda, elektrina, kanalizácia, plyn. Energetický certifikát nebol vyhotovený.
Rodinný dom je vhodný buď na kompletnú rekonštrukciu, prípadne zbúranie a výstavbu nového domu.
K dispozícii je vypracovaná štúdia na výstavbu nového rodinného domu s nasledovnými parametrami:
- Podlažnosť: 2 NP + 1 PP
- Úžitková plocha: 366,8 m2
- Zastavaná plocha: 197 m2
- Index zastavanosti: 29,3 %
Okolie domu, aj napriek blízkosti centra, je veľmi tiché a príjemné na bývanie. Lokalita ponúka kompletnú občianska vybavenosť, pešiu dostupnosť Starého Mesta a taktiež príjemné prechádzky po neďalekej Kalvárii.
Dodatok k cene: , vrátane provízie, možnosť HÚ
Zastavaná plocha: 153m²
Obytná plocha: 222m²
Celková rozloha: 669m²
Rozloha pozemku: 669m²
Úžitková plocha: 222m²
Vlastníctvo: osobné
Stav: nutná rekonštrukcia
El. napätie: 230/400V
Plyn: áno
Kanalizácia: áno
Vykurovanie: vlastné - plyn
Garáž: áno
Postavené z: tehla
Energetický certifikát: nie
Terén: mierny svah
Prístupová cesta: asfaltová cesta
|
| |||||||||||||||||||||||||||||||
Kontaktovať inzerenta e-mailom
Kontaktovať e-mailom môže iba overený užívateľ.
Overenie je zadarmo.
Vaše telefónne číslo *
Kontaktovať e-mailom môže iba overený užívateľ.
Overenie je zadarmo.
Vaše telefónne číslo *
Podobné inzeráty
Predám 6 izbový dom 300 m² pozemkom 1 350 m² Bernolákovo - [14.11. 2025]Ponúkam na predaj priestranný rodinný dom vo vyhľadávanej a tichej časti Bernolákova. Dom má cca 300 m² úžitkovej plochy a nachádza sa na veľkom pozemku 1 350 m², ktorý poskytuje maximálne súkromie a veľa možností využitia. Ideálny pre väčšiu rodinu, pokojné bývanie alebo kombináciu bývania a práce ...
499 000 €
Bratislava
811 01
811 01
96 x
Označiť zlý inzerát Chybnú kategóriu Ohodnotiť užívateľa Zmazať/Upraviť/Topovať
PREDAJ 6 izbový dom 192 m2, pozemok 607 m2, Dunajská Lužná - [9.11. 2025]Na predaj priestranný 6-izbový rodinný dom s garážou, veľkou záhradou 607 m2, bazénom, záhradným domčekom a nechtovým štúdiom – Dunajská Lužná, Senec
Ponúkame na predaj priestranný rodinný dom v tichej a pokojnej lokalite obce Dunajská Lužná, len 15 minút autom od centra Bratislavy. Nehnuteľnosť sa ...
539 900 €
Bratislava
811 01
811 01
147 x
Označiť zlý inzerát Chybnú kategóriu Ohodnotiť užívateľa Zmazať/Upraviť/Topovať
Predaj 4 izb. rodinný dom Mudroňova ulica Bratislava. - [7.11. 2025]Predaj prestížny 4 izbový rodinný dom s výhľadom na Staré Mesto na ulici Mudroňova. Dom sa nachádza v atraktívnej lokalite, je čiastočne zariadený nábytkom na mieru, spotrebičmi a sanitou, situovaný v tichom prostredí v už kompletne zastavanej časti Mudroňovej ulice pripravený na okamžité nasťahovan ...
799 900 €
Bratislava
811 01
811 01
2726 x
Označiť zlý inzerát Chybnú kategóriu Ohodnotiť užívateľa Zmazať/Upraviť/Topovať
Predaj 6 izbový dom, 300m2 + 1350m2 Bernolákovo, Senec - [1.11. 2025]6-izbový rodinný dom 300 m2 s veľkým pozemkom 1350 m2 a štýlovou záhradou v žiadanej lokalite Bernolákovo
Ponúkam na predaj samostatne stojaci, dvojpodlažný murovaný rodinný dom so šiestimi izbami, situovaný v tichej a časti obce Bernolákovo, len pár minút od Bratislavy.
Táto jedinečná nehnuteľn ...
499 000 €
Bratislava
811 01
811 01
694 x
Označiť zlý inzerát Chybnú kategóriu Ohodnotiť užívateľa Zmazať/Upraviť/Topovať
PREDAJ 6 izbový dom 300 m2 + 1350 m2 pozemok , Bernolákovo - [27.9. 2025]6-izbový rodinný dom 300 m2 s veľkým pozemkom 1350 m2 a štýlovou záhradou v žiadanej lokalite Bernolákovo
Ponúkam na predaj samostatne stojaci, dvojpodlažný murovaný rodinný dom so šiestimi izbami, situovaný v tichej a časti obce Bernolákovo, len pár minút od Bratislavy.
Táto jedinečná nehnuteľn ...
537 900 €
Bratislava
811 01
811 01
819 x
Označiť zlý inzerát Chybnú kategóriu Ohodnotiť užívateľa Zmazať/Upraviť/Topovať
Vila v golfovej komunite Nova Santa Ponsa, Mallorca - [22.9. 2025]Exkluzívna vila v uzavretej golfovej komunite Nova Santa Ponsa, Mallorca
Lokalita: Santa Ponsa (oblast Nova Santa Ponsa), Mallorca
Cena: 1 050 000 €
Dispozícia a parametre:
Úžitková plocha: 162 m²
Pozemok: 300 m²
Počet spální: 3
Počet kúpeľní: 2
Rok výstavby: 2008
Stav: veľmi dobrý, kompletne zmo ...
1 050 000 €
Bratislava
811 01
811 01
312 x
Označiť zlý inzerát Chybnú kategóriu Ohodnotiť užívateľa Zmazať/Upraviť/Topovať





