Na predaj 2 izbový byt s Garážou Trenčianske Teplice
- [29.10. 2025]Zmazať/ Upraviť/ Topovať












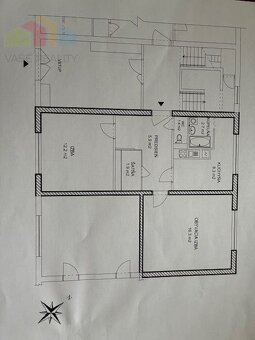
945579 Na sídlisku SNP v Trenčianskych Tepliciach predáme 2 izbový byt s celkovou úžitkovou plochou 56 m2, rozloha bytu je 49 m2. Prináleží k nemu murovaná pivnica a garáž v radovej zástavbe. Má vymenené plastové okná, inak je v pôvodnom zachovalom stave. Jadro je murované, obklad pôvodný. V izbách sú pôvodné, zachovalé drevené parkety.
Dispozícia bytu je praktická, kuchyňa je menšia samostatná, izby sú nepriechodné, v chodbe je šatník aj potravinová skriňa, wc samostatné. Cena bytu s garážou je 120.000,- EUR. Odporúčam vidieť!
Viac informácií Vám radi poskytneme na čísle telefónu: Monika Milčáková, 0907 373 255, prípadne na e - mail adrese: milcakova@vasereality.sk
Dispozícia bytu je praktická, kuchyňa je menšia samostatná, izby sú nepriechodné, v chodbe je šatník aj potravinová skriňa, wc samostatné. Cena bytu s garážou je 120.000,- EUR. Odporúčam vidieť!
Viac informácií Vám radi poskytneme na čísle telefónu: Monika Milčáková, 0907 373 255, prípadne na e - mail adrese: milcakova@vasereality.sk
|
| |||||||||||||||||||||||||||||||
Kontaktovať inzerenta e-mailom
Kontaktovať e-mailom môže iba overený užívateľ.
Overenie je zadarmo.
Vaše telefónne číslo *
Kontaktovať e-mailom môže iba overený užívateľ.
Overenie je zadarmo.
Vaše telefónne číslo *