Krásne miesto na stavbu chaty alebo chalupy - Oščadnica
- [29.10. 2025]Zmazať/ Upraviť/ Topovať






















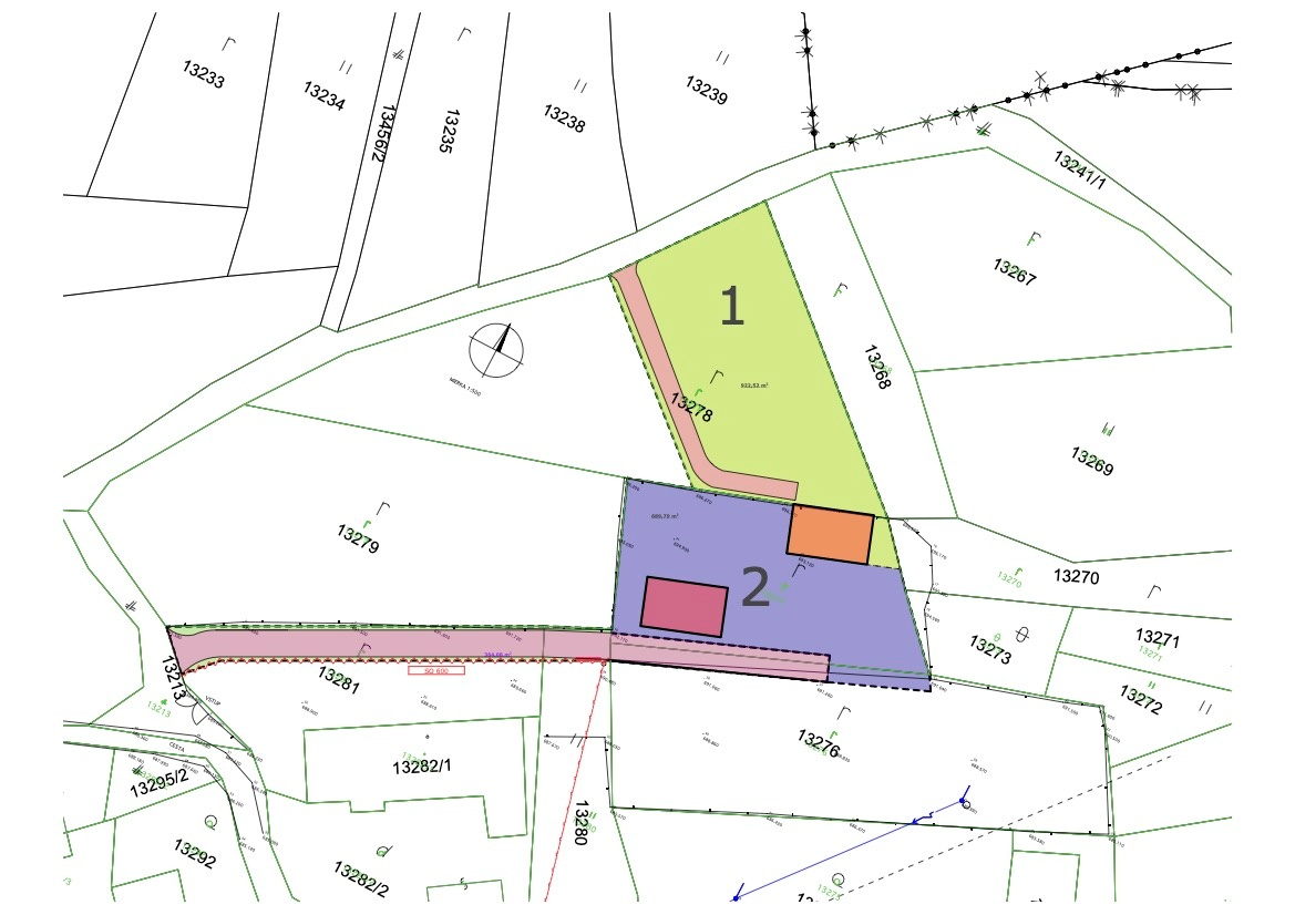
AD-REALITY Kysuce – ponúkame na predaj dva stavebné pozemky s platným stavebným povolením, nachádzajúce sa na jednom z najkrajších miest obce Oščadnica. Výmera jedného pozemku je 922,5 m2, druhý pozemok má výmeru 670 m2. Sú jednými z posledných s možnosťou výstavby, ležia na okraji malej osady Beskydek chránenej krajinnej oblasti s vysokým stupňom ochrany prírody (biokoridor a chránené lúky a pasienky pre výskyt chránených rastlín a migráciu zveri).
Miesto je skutočne ideálne, pozemky ležia na okraji lesa a pritom sú slnečné s krásnymi výhľadmi. Ku každému z nich je vybudovaný napájací bod na prívod elektrickej energie s elektromermi ( s povolením na tepelného čerpadla alebo elektrokotla), k dispozícii je projekt rodinného domu (chaty) od renomovaných architektov. V rámci prípravy bol vykonaný hydrogeologický prieskumný vrt na prítomnosť vody. Každý z pozemkov má samostatný celoročný bezproblémový prístup autom, intravilán obce.
Cena: dohodou pri osobnej obhliadke
kontakt: 0905 844 054, www.ad-reality.sk
Lokalita: Stavebné pozemky sa nachádzajú v krásnom prostredí nad obcou Oščadnica v miestnej časti Rovne – v osade Beskydek v nadmorskej výške cca 700 m. n.m. Celá lokalita je súčasťou Kysuckých Beskýd a je súčasťou prísne chránenej krajinnej oblasti. Z tohto miesta je viditeľná ich časť na slovenskej aj českej strane štátnej hranice s najvyšším vrchom Veľká Rača, Veľký a Malý Rozsutec, ako aj vzdialené pohoria na poľskej strane hranice. Vzdialenosť od centra obce je cca 4km, do lyžiarskeho strediska vo Veľkej Rači cca 5km, od lyžiarskeho strediska v PL republike Zwardoň cca 10 km a do obce Skalite cca 7km. V blízkosti pozemku prechádzajú turistické trasy a cyklotrasy vedúce na trojmedzie medzi SR, ČR a PL, s prepojením cez Krásno nad Kysucou do Novej Bystrice (Vychylovky) alebo do mesta Čadca. K pozemkom vedie asfaltová, neskôr cca 200 m spevnená celoročne udržiavaná cesta vo vlastníctve obce.
Miesto je skutočne ideálne, pozemky ležia na okraji lesa a pritom sú slnečné s krásnymi výhľadmi. Ku každému z nich je vybudovaný napájací bod na prívod elektrickej energie s elektromermi ( s povolením na tepelného čerpadla alebo elektrokotla), k dispozícii je projekt rodinného domu (chaty) od renomovaných architektov. V rámci prípravy bol vykonaný hydrogeologický prieskumný vrt na prítomnosť vody. Každý z pozemkov má samostatný celoročný bezproblémový prístup autom, intravilán obce.
Cena: dohodou pri osobnej obhliadke
kontakt: 0905 844 054, www.ad-reality.sk
Lokalita: Stavebné pozemky sa nachádzajú v krásnom prostredí nad obcou Oščadnica v miestnej časti Rovne – v osade Beskydek v nadmorskej výške cca 700 m. n.m. Celá lokalita je súčasťou Kysuckých Beskýd a je súčasťou prísne chránenej krajinnej oblasti. Z tohto miesta je viditeľná ich časť na slovenskej aj českej strane štátnej hranice s najvyšším vrchom Veľká Rača, Veľký a Malý Rozsutec, ako aj vzdialené pohoria na poľskej strane hranice. Vzdialenosť od centra obce je cca 4km, do lyžiarskeho strediska vo Veľkej Rači cca 5km, od lyžiarskeho strediska v PL republike Zwardoň cca 10 km a do obce Skalite cca 7km. V blízkosti pozemku prechádzajú turistické trasy a cyklotrasy vedúce na trojmedzie medzi SR, ČR a PL, s prepojením cez Krásno nad Kysucou do Novej Bystrice (Vychylovky) alebo do mesta Čadca. K pozemkom vedie asfaltová, neskôr cca 200 m spevnená celoročne udržiavaná cesta vo vlastníctve obce.
|
| |||||||||||||||||||||||||||||||
Kontaktovať inzerenta e-mailom
Kontaktovať e-mailom môže iba overený užívateľ.
Overenie je zadarmo.
Vaše telefónne číslo *
Kontaktovať e-mailom môže iba overený užívateľ.
Overenie je zadarmo.
Vaše telefónne číslo *

