1 izbový byt 37,87 m2 na predaj novostavba vo výstavbe Marti
- TOP - [30.10. 2025]Zmazať/ Upraviť/ Topovať









Ponúkam Vám 1 izbový byt apartmán na predaj Martin Tomčany, novostavba v súčasnosti vo výstavbe, loggia
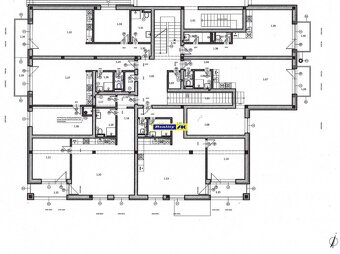
1 poschodie byt číslo 6 - označený miestnosti čísla 1.36 - 1.40
Vo výstavbe je 12 bytov na 2 poschodiach blízko novej nemocnice, byty budú špecifikované ako apartmány, 2 byty sú 1 izbové a 10 bytov je 2 izbové, prevedenie holobyt, kolaudácia najneskôr do 31.12.2026.
Informácie sú na stránke realitnej kancelárie Reality AK po zadaní v NOVÉ PROJEKTY, alebo v sekcii DRUH/developerske projekty/výstavba bytov.
Prehľad voľných bytov je v tabuľke nižšie - kliknutím na príslušný byt sa Vám zobrazí detailná ponuka bytu.
https://realityak.sk/vystavba-bytov-na-predaj-novostavba-martin-tomcany-blizko-novej-nemocn-871704?noindex
Ponúkaný byt sa predáva v prevedení Holobyt.
Dispozičné riešenie: pozri pôdorys medzi foto
chodba
Kuchyňa spolu s obývačka
kúpeľňa
WC
balkón
Vybavenie:
Byt Apartmán sa nachádza na 1 poschodí, obytná plocha je 34,27 m2, úžitková plocha je 37,87 m2, balkón je 3,6 m2.
Vchodové dvere sú nové bezpečnostné.
Okná sú plastové.
Orientácia apartmánu je Z
Vykurovanie je teplovodné podlahové s ohrevom elektrický kotol.
Prevedenie bytu je holobyt a bude mať v dome urobené
- plastové okná
- elektriku
- vodu a kanalizáciu
- vnútorné omietky
- dvere vchodové do bytu
- urobený strop sadrokartónom,
- kúrenie bude ústredné radiátormi, alebo podlahové vodou v trubkách, ohrev kotol elektrika
- zateplenie je minerálnou vatou
Je potrebné dokončiť
- kuchynskú linku
- vnútorné dvere a zárubne
- podlahy
- dlažba a obklady kúpeľňa a WC
- sanita kúpeľňa a WC
- svetlá
Nehnuteľnosť:
Obytný dom je postavený z ytongu a je zateplený.
Lokalita:
Martin Tomčany
V okolí je park a veľa zelene.
Cena nehnuteľnosti je uvedená vrátane DPH a zahŕňa kompletný realitný a právny servis vrátane poplatkov.
Obytná plocha: 34.27m²
Celková rozloha: 37.87m²
Úžitková plocha: 34.27m²
Vlastníctvo: osobné
Stav: pôvodný
Odvoz odpadu: áno - separovaný
Kúpeľňa: áno
Vykurovanie: vlastné - elektrické
Balkón: áno
Pivnica: áno
Parkovanie: verejné
Postavené z: Ytong
Zateplený objekt: áno
Energetický certifikát: A
Okná: plastové
Orientácia: východná
1 poschodie byt číslo 6 - označený miestnosti čísla 1.36 - 1.40
Vo výstavbe je 12 bytov na 2 poschodiach blízko novej nemocnice, byty budú špecifikované ako apartmány, 2 byty sú 1 izbové a 10 bytov je 2 izbové, prevedenie holobyt, kolaudácia najneskôr do 31.12.2026.
Informácie sú na stránke realitnej kancelárie Reality AK po zadaní v NOVÉ PROJEKTY, alebo v sekcii DRUH/developerske projekty/výstavba bytov.
Prehľad voľných bytov je v tabuľke nižšie - kliknutím na príslušný byt sa Vám zobrazí detailná ponuka bytu.
https://realityak.sk/vystavba-bytov-na-predaj-novostavba-martin-tomcany-blizko-novej-nemocn-871704?noindex
Ponúkaný byt sa predáva v prevedení Holobyt.
Dispozičné riešenie: pozri pôdorys medzi foto
chodba
Kuchyňa spolu s obývačka
kúpeľňa
WC
balkón
Vybavenie:
Byt Apartmán sa nachádza na 1 poschodí, obytná plocha je 34,27 m2, úžitková plocha je 37,87 m2, balkón je 3,6 m2.
Vchodové dvere sú nové bezpečnostné.
Okná sú plastové.
Orientácia apartmánu je Z
Vykurovanie je teplovodné podlahové s ohrevom elektrický kotol.
Prevedenie bytu je holobyt a bude mať v dome urobené
- plastové okná
- elektriku
- vodu a kanalizáciu
- vnútorné omietky
- dvere vchodové do bytu
- urobený strop sadrokartónom,
- kúrenie bude ústredné radiátormi, alebo podlahové vodou v trubkách, ohrev kotol elektrika
- zateplenie je minerálnou vatou
Je potrebné dokončiť
- kuchynskú linku
- vnútorné dvere a zárubne
- podlahy
- dlažba a obklady kúpeľňa a WC
- sanita kúpeľňa a WC
- svetlá
Nehnuteľnosť:
Obytný dom je postavený z ytongu a je zateplený.
Lokalita:
Martin Tomčany
V okolí je park a veľa zelene.
Cena nehnuteľnosti je uvedená vrátane DPH a zahŕňa kompletný realitný a právny servis vrátane poplatkov.
Obytná plocha: 34.27m²
Celková rozloha: 37.87m²
Úžitková plocha: 34.27m²
Vlastníctvo: osobné
Stav: pôvodný
Odvoz odpadu: áno - separovaný
Kúpeľňa: áno
Vykurovanie: vlastné - elektrické
Balkón: áno
Pivnica: áno
Parkovanie: verejné
Postavené z: Ytong
Zateplený objekt: áno
Energetický certifikát: A
Okná: plastové
Orientácia: východná
| 
 | 
 | |||||||||||||||||||||||||||||||
Kontaktovať inzerenta e-mailom
Kontaktovať e-mailom môže iba overený užívateľ.
Overenie je zadarmo.
Vaše telefónne číslo *
Kontaktovať e-mailom môže iba overený užívateľ.
Overenie je zadarmo.
Vaše telefónne číslo *