RADO | Moderný 4-izbový bungalov | pozemok 600 m² | Chorváts
- [28.10. 2025]Zmazať/ Upraviť/ Topovať












Predstavujeme Vám novostavbu rodinného domu, ktorá spája modernú architektúru, kvalitné technológie a funkčné dispozičné riešenie. Dom ponúka komfortné bývanie pre rodinu, priestrannú dennú zónu s priamym výstupom na terasu a súkromnú nočnú časť so šatníkom a kúpeľňou.
Začiatok výstavby je naplánovaný v priebehu októbra 2025.
Kolaudácia prebehne v máji 2026.
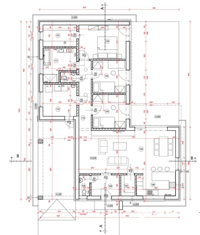
Dispozícia a úžitková plocha:
• Vstupná hala / zádverie (5,01 m²)
• Priestranná obývacia izba (35,06 m²) prepojená s kuchyňou (7,64 m²) a komorou (2,58 m²)
• Tri samostatné izby (9,53 m², 9,23 m² a 13,52 m²) – všetky so vstupom na terasu
• Šatník (6,12 m²) priamo napojený na hlavnú spálňu
• Kúpeľňa (8,09 m²) s prípravou na vaňu, sprchovací kút a dvojité umývadlo
• Dve samostatné toalety (1,93 m² a 1,50 m²)
• Technická miestnosť (9,15 m²) s prepojením na zastrešené parkovanie
• Celková obytná časť domu je doplnená o terasu zo zámkovej dlažby, prístupnú zo všetkých obytných miestností.
Celková úžitková plocha domu: 130 m²
Celková výmera parcely: 600 m²
Parkovanie a pozemok:
• 3 parkovacie miesta priamo pri dome (1x zastrešené, 2x voľné)
• Spevnený vjazd zo zámkovej dlažby
• Pozemok kompletne oplotený zváraným poplastovaným pletivom
• Odvod dažďovej vody riešený drenážnou šachtou
Technológie a vybavenie
• Tepelné čerpadlo s podlahovým vykurovaním
• Lokálna rekuperácia
• Príprava pre klimatizáciu, fotovoltaiku, vonkajší kamerový systém a elektrické žalúzie
• Predpríprava na nabíjanie elektromobilu
• Plastové okná s izolačným trojsklom
• Sadrové omietky a biela maľba
• Zateplenie 150 mm polystyrén a fasádna škrabaná omietka
• Hrubé tehlové murivo, železobetónové stropy, strecha s 400 mm izoláciou a PVC fóliou
• Verejný vodovod (DN 32, vodomerná šachta)
• Verejná splašková kanalizácia (DN 160, revízna šachta)
• NN rozvod (3x25A, rozvádzač RE)
• Telekomunikačná prípojka (Slovak Telekom, a. s.)
Dom je navrhnutý s dôrazom na komfort a energetickú úspornosť.
Cena: 435 000 € vrátane DPH
Výhody tejto nehnuteľnosti:
• Moderná novostavba od renomovaného developera
• Premyslený dispozičný koncept s priamym vstupom na terasu zo všetkých izieb
• Kompletné inžinierske siete a predprípravy na inteligentné riešenia
• Tri parkovacie miesta vrátane krytého státia
V prípade záujmu o detailnejšie informácie alebo obhliadku nehnuteľností ma neváhajte kontaktovať:
Daniel Gianmarco Križan
RADO Reality Group
Tel.: +421 908 434 975
E-mail: krizan@radoreality.sk
RADO ŠTANDARD – naše záväzky voči vám:
Kompletný právny servis vrátane zmlúv a návrhu na vklad
Hypotekárne poradenstvo šité na mieru
Úhrada správneho poplatku za vklad do katastra
Profesionálna starostlivosť počas celého procesu
Uvedená cena je konečná, pokiaľ sa zmluvné strany nedohodnú inak a nenavyšuje sa o odmenu sprostredkovateľa, v cene je zahrnuté právne poradenstvo, v
Začiatok výstavby je naplánovaný v priebehu októbra 2025.
Kolaudácia prebehne v máji 2026.
Dispozícia a úžitková plocha:
• Vstupná hala / zádverie (5,01 m²)
• Priestranná obývacia izba (35,06 m²) prepojená s kuchyňou (7,64 m²) a komorou (2,58 m²)
• Tri samostatné izby (9,53 m², 9,23 m² a 13,52 m²) – všetky so vstupom na terasu
• Šatník (6,12 m²) priamo napojený na hlavnú spálňu
• Kúpeľňa (8,09 m²) s prípravou na vaňu, sprchovací kút a dvojité umývadlo
• Dve samostatné toalety (1,93 m² a 1,50 m²)
• Technická miestnosť (9,15 m²) s prepojením na zastrešené parkovanie
• Celková obytná časť domu je doplnená o terasu zo zámkovej dlažby, prístupnú zo všetkých obytných miestností.
Celková úžitková plocha domu: 130 m²
Celková výmera parcely: 600 m²
Parkovanie a pozemok:
• 3 parkovacie miesta priamo pri dome (1x zastrešené, 2x voľné)
• Spevnený vjazd zo zámkovej dlažby
• Pozemok kompletne oplotený zváraným poplastovaným pletivom
• Odvod dažďovej vody riešený drenážnou šachtou
Technológie a vybavenie
• Tepelné čerpadlo s podlahovým vykurovaním
• Lokálna rekuperácia
• Príprava pre klimatizáciu, fotovoltaiku, vonkajší kamerový systém a elektrické žalúzie
• Predpríprava na nabíjanie elektromobilu
• Plastové okná s izolačným trojsklom
• Sadrové omietky a biela maľba
• Zateplenie 150 mm polystyrén a fasádna škrabaná omietka
• Hrubé tehlové murivo, železobetónové stropy, strecha s 400 mm izoláciou a PVC fóliou
• Verejný vodovod (DN 32, vodomerná šachta)
• Verejná splašková kanalizácia (DN 160, revízna šachta)
• NN rozvod (3x25A, rozvádzač RE)
• Telekomunikačná prípojka (Slovak Telekom, a. s.)
Dom je navrhnutý s dôrazom na komfort a energetickú úspornosť.
Cena: 435 000 € vrátane DPH
Výhody tejto nehnuteľnosti:
• Moderná novostavba od renomovaného developera
• Premyslený dispozičný koncept s priamym vstupom na terasu zo všetkých izieb
• Kompletné inžinierske siete a predprípravy na inteligentné riešenia
• Tri parkovacie miesta vrátane krytého státia
V prípade záujmu o detailnejšie informácie alebo obhliadku nehnuteľností ma neváhajte kontaktovať:
Daniel Gianmarco Križan
RADO Reality Group
Tel.: +421 908 434 975
E-mail: krizan@radoreality.sk
RADO ŠTANDARD – naše záväzky voči vám:
Kompletný právny servis vrátane zmlúv a návrhu na vklad
Hypotekárne poradenstvo šité na mieru
Úhrada správneho poplatku za vklad do katastra
Profesionálna starostlivosť počas celého procesu
Uvedená cena je konečná, pokiaľ sa zmluvné strany nedohodnú inak a nenavyšuje sa o odmenu sprostredkovateľa, v cene je zahrnuté právne poradenstvo, v
|
| |||||||||||||||||||||||||||||||
Kontaktovať inzerenta e-mailom
Kontaktovať e-mailom môže iba overený užívateľ.
Overenie je zadarmo.
Vaše telefónne číslo *
Kontaktovať e-mailom môže iba overený užívateľ.
Overenie je zadarmo.
Vaše telefónne číslo *
Podobné inzeráty
TOP ponuka - 5 izbový RD so saunou a vírivkou - [11.11. 2025]Podlažie – dvojpodlažný RD
Pozemok: 371 m2
Zastavaná plocha: 184,93 m2
Rok výstavby 2006
Energetický certifikát: neuvedený
Realitná kancelária Angels real Vám exkluzívne ponúka rodinný dom v obci Chorvátsky Grob – časť Čierna voda, ulica Čerešňová.
Moderný dvojpodlažný rodinný dom s povalou ...
429 000 €
Senec
900 25
900 25
164 x
Označiť zlý inzerát Chybnú kategóriu Ohodnotiť užívateľa Zmazať/Upraviť/Topovať
Moderný rodinný dom v Chorvátskom Grobe - TOP - [12.11. 2025]Moderný rodinný dom v Chorvátskom Grobe – novostavba z roku 2024
Nie som RK
Ponúkame na predaj priestranný, štýlový a plne vybavený rodinný dom v pokojnej lokalite Chorvátskeho Grobu, len pár minút od Bratislavy.
Dom s úžitkovou plochou 150m² a terasu 20 m² sa nachádza na pozemku o výmere 418 m². ...
360 000 €
Senec
900 25
900 25
636 x
Označiť zlý inzerát Chybnú kategóriu Ohodnotiť užívateľa Zmazať/Upraviť/Topovať
4-izbový RD s dvojgarážou - [10.11. 2025]Ponúkame Vám na predaj nízkoenergetický murovaný 4izbový rodinný dom v obci Chorvátsky grob s pozemkom s rozlohou 802m2. Úžitková plocha domu je 161,75m2 a zastavaná plocha 200m2. Počet obytných miestností: 4 + dvojgaráž a povala s rozlohou 15m2.
Výstavba bola začatá 06/2025, v súčasnosti je rodi ...
575 000 €
Senec
900 25
900 25
141 x
Označiť zlý inzerát Chybnú kategóriu Ohodnotiť užívateľa Zmazať/Upraviť/Topovať
Predaj 4izbový RD Chorvátsky Grob, krásna lokalita, EXKLUZÍV - TOP - [12.11. 2025]Typ: Rodinný dom
Obec: Chorvátsky Grob
EXKLUZÍVNA PONUKA: Realitná kancelária Pavlik&Partners s.r.o. Vám ponúka na predaj 4izbový RD v radovej zástavbe vo veľmi lukratívnej lokalite 15min.autom od Bratislavy, v obci Chorvátsky Grob.
Zastavaná plocha: 112m2, podlažia: 3. Výmera poz ...
359 000 €
Senec
900 25
900 25
410 x
Označiť zlý inzerát Chybnú kategóriu Ohodnotiť užívateľa Zmazať/Upraviť/Topovať
Pekný 5 izbový rodinný dom v Chorvátskom Grobe - [4.11. 2025]Typ: Rodinný dom
Ulica: Slnečná
Obec: Chorvátsky Grob
Leaders&Partners pobočka Senec, Vám ponúka na predaj pekný 5 izbový dvojpodlažný rodinný dom nachádzajúci sa v Chorvátskom Grobe, lokalita Čierna voda, na Slnečnej ulici.
Rodinný dom je riešený ako súčasť dvojdomu, má dve nadzemné ...
399 900 €
Senec
900 25
900 25
666 x
Označiť zlý inzerát Chybnú kategóriu Ohodnotiť užívateľa Zmazať/Upraviť/Topovať
LUXUSNE ZARIADENÝ DOM PRI BRATISLAVE, NOVOSTAVBA - [3.11. 2025]Objavte domov, kde každý detail dýcha luxusom a eleganciou. Predstavte si ráno, keď sa prebúdzate v dome - v priestore, kde sa elegancia spája s pokojom. Zlaté odlesky, jemné mramorové detaily a atmosféra ticha, ktorá vás privíta každý deň.
Tento nový, doposiaľ neobývaný 4-izbový rodinný dom v lok ...
379 000 €
Senec
900 25
900 25
510 x
Označiť zlý inzerát Chybnú kategóriu Ohodnotiť užívateľa Zmazať/Upraviť/Topovať
Na predaj | 6 izbový rodinný dom 251,19 m² - Chorvátsky Grob - TOP - [10.11. 2025]Exkluzívne Vám ponúkame na predaj tento priestranný 6-izbový rodinný dom, ktorý sa nachádza v obci Chorvátsky Grob, časť Čierna voda na Vajnorskej ulici, hneď na začiatku Chorvátskeho Grobu od Bratislavy.
Dom je priestranný s úžitkovou plochou 241,26 m² s pivnicou o výmere 78,23 m² a priestranno ...
399 000 €
Senec
900 25
900 25
3280 x
Označiť zlý inzerát Chybnú kategóriu Ohodnotiť užívateľa Zmazať/Upraviť/Topovať
5 izbový rodinný dom Chorvátsky Grob s garážou, bazénom, krb - TOP - [10.11. 2025]Typ: Rodinný dom
Ulica: Šúrska
Obec: Chorvátsky Grob
Realitná kancelária Oxfin reality s.r.o. pobočka Tallerova 6/1, Bratislava - Staré Mesto.
Ponúkame Vám na predaj krásny 5 izbový rodinný dom s garážou, bazénom, krbom.
Dispozícia:
- vstupná hala, 3,65 m2 ...
467 900 €
Senec
900 25
900 25
3390 x
Označiť zlý inzerát Chybnú kategóriu Ohodnotiť užívateľa Zmazať/Upraviť/Topovať
Predám štýlový 6-izbový rodinný dom blízko BA - [2.11. 2025]Ponúkam na predaj elegantný 6-izbový rodinný dom v lokalite Chorvátsky Grob - Čierna Voda.
Tento štýlový dvojpodlažný rodinný dom s rozlohou 230 m2 ponúka komfortné bývanie v lukratívnej časti Čiernej Vody. Skolaudovaný v roku 2006, pôvodne slúžil ako sídlo firmy a od roku 2012 poskytuje útulný dom ...
569 000 €
Senec
900 25
900 25
1069 x
Označiť zlý inzerát Chybnú kategóriu Ohodnotiť užívateľa Zmazať/Upraviť/Topovať
PREDAJ NÁDHERNÉHO 4,5-IZB. 2-PODLAŽNÉHO RODINNÉHO DOMU S GAR - [1.11. 2025]Typ: Rodinný dom
Ulica: Jantárová
Obec: Chorvátsky Grob
Rodinný dom sa nachádza na Jantárovej ulici v tichom prostredí v novej zástavbe neďaleko OD Monar.
Výmera: 132 m2
Záhrada: 76 m2
Pozemok: 183 m2
Garaž 17 m2
Krb
Dispozícia: &nb ...
370 000 €
Senec
900 25
900 25
927 x
Označiť zlý inzerát Chybnú kategóriu Ohodnotiť užívateľa Zmazať/Upraviť/Topovať