LOYALTERS | Predaj 2 izbového bytu s parkovaním a pivnicou v
- [28.10. 2025]Zmazať/ Upraviť/ Topovať






























Typ: 2-izbový byt
Ulica: Bystrická ulica
Obec: Bratislava-Devínska Nová Ves
Loyalters by Bosen Group Vám ponúka na predaj nový, ešte neobývaný 2-izbový byt v Devínskej Novej Vsi na ulici Bystrická. Byt je ideálny pre jednotlivcov, páry aj ako investícia na prenájom.
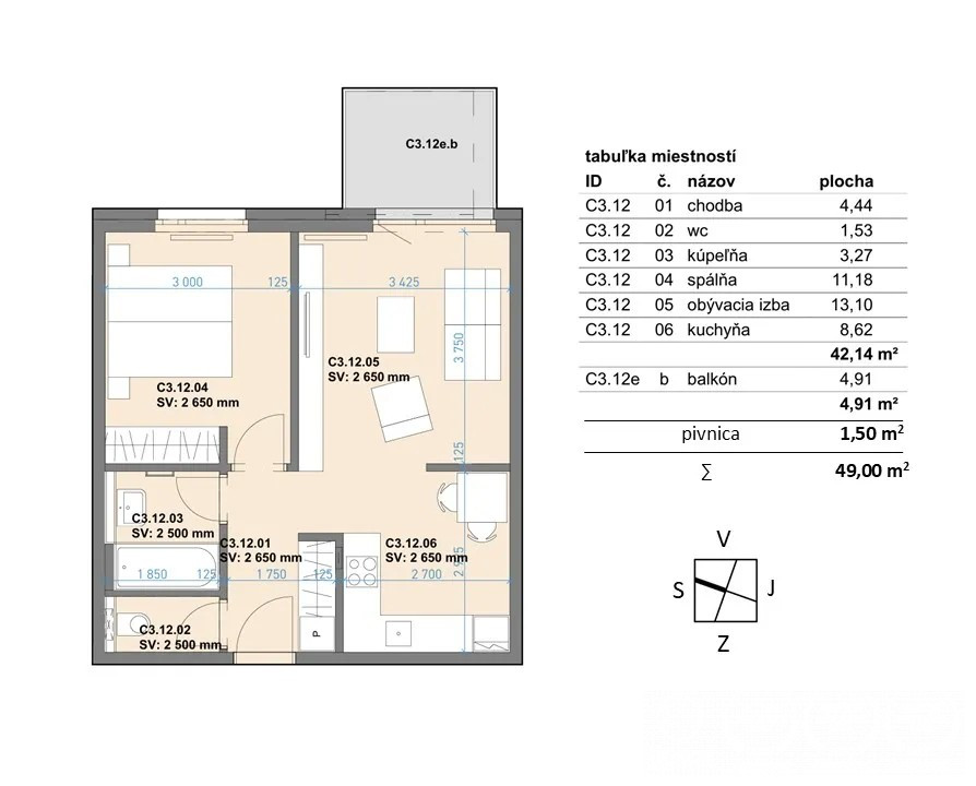
BYT: Celková podlahová plocha bytu je 42,14 m² + balkón 4,91 m². Nachádza sa na 3. poschodí novostavby. K bytu prislúcha pivnica a parkovacie státie priamo v areáli.
DISPOZÍCIA: predsieň so vstavanou skriňou a priestorom na práčku, obývacia izba spojená s kuchyňou a vstupom na balkón, samostatná spálňa s manželskou posteľou (king size), kúpeľňa s vaňou a elektrickým radiátorom, samostatné WC so závesným systémom a automatickým odsávaním
TECHNICKÉ VYHOTOVENIE:
Byt je úplne nový, pripravený k okamžitému nasťahovaniu. Disponuje kvalitnou kuchynskou linkou so vstavanými spotrebičmi AEG, Siemens, Bosch, nadčasovým osvetlením v každej miestnosti, optickým internetom a pripojením Telekom, modernými bezpečnostnými prvkami (oplotený areál, kamerový systém).
ZARIADENIE:
Byt sa predáva kompletne zariadený: kuchyňa vrátane riadu, hrncov a príborov, moderná rozťahovacia sedacia súprava s úložným priestorom, vstavané skrine a veľkorysý odkladací priestor, posteľ king size so zdravotnými matracmi a lamelovými roštami.
PARKOVANIE:
K bytu prislúcha parkovacie státie priamo pred domom. Celý areál je uzavretý a monitorovaný kamerovým systémom.
LOKALITA:
Bytový dom sa nachádza v tichej lokalite s kompletnou občianskou vybavenosťou – potraviny, školy, materská škola, lekáreň, reštaurácie. Milovníkov prírody poteší aj blízkosť Devínskej Kobyly, Sandbergu, cyklotrasy popri rieke Morava, Pumptrack a Workout zóny. Výborná dopravná dostupnosť do centra Bratislavy (MHD aj D2). Volkswagen a priemyselný park sú v pešej dostupnosti (10–15 minút).
CENA: 209 000,- EUR
(vrátane pivnice a parkovacieho miesta)
REALITNÝ MAKLÉR:
Petra Kissová, tel.: +421 948 355 305, email: petra.kissova@loyalters.sk
Realitná kancelária Loyalters je členom Bosen Group a zároveň členom Realitnej únie SR.
Uvedená cena je konečná, zahŕňa províziu realitnej kancelárie, právny servis zabezpečovaný advokátskou kanceláriou, úhradu základného správneho poplatku na katastri, poradenstvo k prevodu nehnuteľnosti a bezplatnú ponuku financovania prostredníctvom hypotéky.
Status: aktívne
Vlastníctvo: osobné
Úžitková plocha: 42.14 m2
Podlahová plocha: 42.14 m2
Stav: novostavba
Počet izieb: 2
Energetický certifikát: B
Typ budovy: tehla
Typ výbavy: kompletne vybavený
Balkón: áno
Pivnica: áno
Poschodie: 3
Celková plocha: 49 m2
Plocha balkóna: 4.91 m2
Počet balkónov: 1
Pivnica plocha: 1.95 m2
Počet pivníc: 1
Počet vonkajších parkovacích miest: 1
Cena vonkajších parkovacích miest: v cene €
Vykurovanie - centrálne: áno
Internet: áno
Optická sieť: áno
Ulica: Bystrická ulica
Obec: Bratislava-Devínska Nová Ves
Loyalters by Bosen Group Vám ponúka na predaj nový, ešte neobývaný 2-izbový byt v Devínskej Novej Vsi na ulici Bystrická. Byt je ideálny pre jednotlivcov, páry aj ako investícia na prenájom.
BYT: Celková podlahová plocha bytu je 42,14 m² + balkón 4,91 m². Nachádza sa na 3. poschodí novostavby. K bytu prislúcha pivnica a parkovacie státie priamo v areáli.
DISPOZÍCIA: predsieň so vstavanou skriňou a priestorom na práčku, obývacia izba spojená s kuchyňou a vstupom na balkón, samostatná spálňa s manželskou posteľou (king size), kúpeľňa s vaňou a elektrickým radiátorom, samostatné WC so závesným systémom a automatickým odsávaním
TECHNICKÉ VYHOTOVENIE:
Byt je úplne nový, pripravený k okamžitému nasťahovaniu. Disponuje kvalitnou kuchynskou linkou so vstavanými spotrebičmi AEG, Siemens, Bosch, nadčasovým osvetlením v každej miestnosti, optickým internetom a pripojením Telekom, modernými bezpečnostnými prvkami (oplotený areál, kamerový systém).
ZARIADENIE:
Byt sa predáva kompletne zariadený: kuchyňa vrátane riadu, hrncov a príborov, moderná rozťahovacia sedacia súprava s úložným priestorom, vstavané skrine a veľkorysý odkladací priestor, posteľ king size so zdravotnými matracmi a lamelovými roštami.
PARKOVANIE:
K bytu prislúcha parkovacie státie priamo pred domom. Celý areál je uzavretý a monitorovaný kamerovým systémom.
LOKALITA:
Bytový dom sa nachádza v tichej lokalite s kompletnou občianskou vybavenosťou – potraviny, školy, materská škola, lekáreň, reštaurácie. Milovníkov prírody poteší aj blízkosť Devínskej Kobyly, Sandbergu, cyklotrasy popri rieke Morava, Pumptrack a Workout zóny. Výborná dopravná dostupnosť do centra Bratislavy (MHD aj D2). Volkswagen a priemyselný park sú v pešej dostupnosti (10–15 minút).
CENA: 209 000,- EUR
(vrátane pivnice a parkovacieho miesta)
REALITNÝ MAKLÉR:
Petra Kissová, tel.: +421 948 355 305, email: petra.kissova@loyalters.sk
Realitná kancelária Loyalters je členom Bosen Group a zároveň členom Realitnej únie SR.
Uvedená cena je konečná, zahŕňa províziu realitnej kancelárie, právny servis zabezpečovaný advokátskou kanceláriou, úhradu základného správneho poplatku na katastri, poradenstvo k prevodu nehnuteľnosti a bezplatnú ponuku financovania prostredníctvom hypotéky.
Status: aktívne
Vlastníctvo: osobné
Úžitková plocha: 42.14 m2
Podlahová plocha: 42.14 m2
Stav: novostavba
Počet izieb: 2
Energetický certifikát: B
Typ budovy: tehla
Typ výbavy: kompletne vybavený
Balkón: áno
Pivnica: áno
Poschodie: 3
Celková plocha: 49 m2
Plocha balkóna: 4.91 m2
Počet balkónov: 1
Pivnica plocha: 1.95 m2
Počet pivníc: 1
Počet vonkajších parkovacích miest: 1
Cena vonkajších parkovacích miest: v cene €
Vykurovanie - centrálne: áno
Internet: áno
Optická sieť: áno
|
| |||||||||||||||||||||||||||||||
Kontaktovať inzerenta e-mailom
Kontaktovať e-mailom môže iba overený užívateľ.
Overenie je zadarmo.
Vaše telefónne číslo *
Kontaktovať e-mailom môže iba overený užívateľ.
Overenie je zadarmo.
Vaše telefónne číslo *









