Prenájom 2-izbového bytu v Sky Parku s výhľadom na hrad
- TOP - [31.10. 2025]Zmazať/ Upraviť/ Topovať











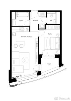
Ponúkame na prenájom exkluzívny 2-izbový byt v prestížnom projekte Sky Park, ktorý sa nachádza v srdci Bratislavy, v mestskej časti Staré Mesto. Tento moderný byt sa nachádza na 8. poschodí Veže 2 , ktorá je súčasťou ikonického komplexu navrhnutého svetoznámou architektkou Zahou Hadid.
Byt s celkovou rozlohou 55 m2 ponúka komfortné bývanie v novostavbe. Je kompletne zariadený, čo znamená, že sa môžete ihneď nasťahovať a začať si užívať všetky výhody, ktoré tento priestor ponúka. Interiér je moderný, s dôrazom na kvalitu a funkčnosť. Obývacia izba je prepojená s kuchyňou, čo vytvára vzdušný a otvorený priestor. V kúpeľni nájdete vaňu a Práčku so sušičkou.
Loggia o rozlohe 5 m2 poskytuje nádherný výhľad na Bratislavský hrad a okolitú panorámu mesta.
Sky Park je známy svojou výbornou polohou a dostupnosťou. V blízkosti sa nachádzajú všetky dôležité služby a zariadenia, vrátane obchodov, reštaurácií, kaviarní a kultúrnych pamiatok. Pre milovníkov prírody je tu možnosť prechádzok v neďalekom parku alebo pozdĺž Dunaja.
K bytu patrí garážové státie pre jedno auto aj pivnica.
Mesačný nájom je stanovený na 1180 € plus 270 € za energie ( vrátane internet).
Zabezpeka vo výške dvoch mesiacov.
Provízia pre realitnú kanceláriu vo výške jedného mesiaca .
Byt voľný od 18.11.
| 
 | 
 | |||||||||||||||||||||||||||||||
Kontaktovať inzerenta e-mailom
Kontaktovať e-mailom môže iba overený užívateľ.
Overenie je zadarmo.
Vaše telefónne číslo *
Kontaktovať e-mailom môže iba overený užívateľ.
Overenie je zadarmo.
Vaše telefónne číslo *









