Stavebný pozemok na predaj v obci Fintice
- TOP - [4.11. 2025]Zmazať/ Upraviť/ Topovať












Realitná kancelária AVLAS REALITY Vám ponúka na predaj pozemok, ktorý je určený na IBV.
Pozemok má výmeru 425 m2 a nachádza sa v hornej časti obci Fintice - Na Odálke.
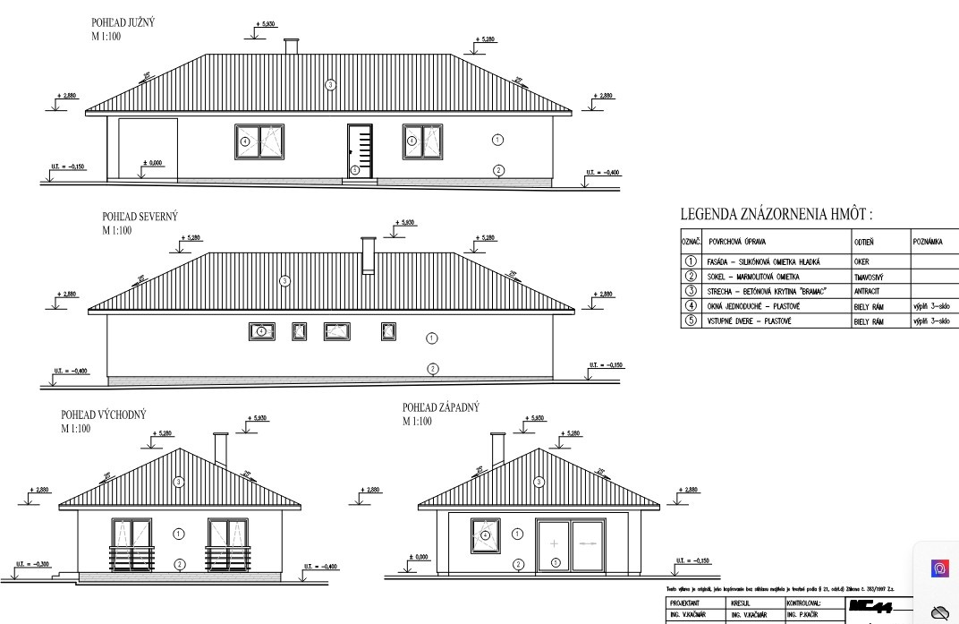
Inžinierske siete sú na pozemku, + grátis projekt bungalovu o výmere 120m2 obytnej plochy v rozmere s terasou 8,3m x 18,3m s povoleniami.
Pozemok je rovinatý a slnečný s pekným panoramatickým výhľadom na Prešov, Kapušianský hrad, a i.
Obec Fintice je vzdialená len 6 km od mesta Prešov. (vzdialenosť nameraná od OMV Duklianska Prešov priamo na pozemok)
IS:
Elektrická prípojka na pozemku.
Vodovod a kanalizácia na pozemku.
Prístupová cesta je už v schvaľovacom procese, aktuálne predmetom predaja sú aj podiely v prístupovej ceste..
Pozemok je prístupný z dvoch strán cesty.
Plocha: pozemku: 425 m2
Rozmery: cca šírka 14 m x dĺžka 31 m
Cena: 56000 €
V prípade, ak Vás táto ponuka zaujala, neváhajte ma kontaktovať, nehnuteľnosť Vám rád ukážem osobne.
Mgr. Slavko Hudák, 0907919251, hudak@avlas.sk
SME OVERENÁ REALITNÁ KANCELÁRIA PÔSOBIACA NA TRHU S NEHNUTEĽNOSŤAMI OD ROKU 2011!
NÁŠ TÍM V OBLASTI REALÍT SÚ MAKLÉRI S DLHOROČNOU PRAXOU.
SAMOZREJMOSŤOU JE SERIÓZNY A ĽUDSKÝ PRÍSTUP, ZÁROVEŇ BEZPEČNOSŤ KLIENTOV PRI OBCHODE JE PRE NÁS PRIORITOU.
NAŠE SLUŽBY PRE KLIENTOV SÚ BEZPLATNÉ A ZAHŔŇAJÚ:
- VYPRACOVANIE ZMLÚV
- POPLATKY SPOJENÉ S PREVODOM VLASTNÍCKYCH PRÁV
- PREVERENIE KUPOVANEJ NEHNUTEĽNOSTÍ
- POMOC PRI VYBAVOVANÍ HYPOTEKÁRNEHO ÚVERU
- PROVÍZIE SÚ V CENE NEHNUTEĽNOSTÍ
- ZABEZPEČUJEME:
- sprostredkovanie kúpy, predaja a prenájmu nehnuteľností
- aj zadlžených nehnuteľností
- oddlžovanie klientov pri predaji nehnuteľností
- profesionálne promo-video obhliadky
- profesionálne nafotenie nehnuteľnosti
- natáčanie, fotenie nehnuteľnosti dronom
- marketingová podpora predaja, topovanie na realitných portáloch
- bannery
- kvalitný právny servis
Pozemok má výmeru 425 m2 a nachádza sa v hornej časti obci Fintice - Na Odálke.
Inžinierske siete sú na pozemku, + grátis projekt bungalovu o výmere 120m2 obytnej plochy v rozmere s terasou 8,3m x 18,3m s povoleniami.
Pozemok je rovinatý a slnečný s pekným panoramatickým výhľadom na Prešov, Kapušianský hrad, a i.
Obec Fintice je vzdialená len 6 km od mesta Prešov. (vzdialenosť nameraná od OMV Duklianska Prešov priamo na pozemok)
IS:
Elektrická prípojka na pozemku.
Vodovod a kanalizácia na pozemku.
Prístupová cesta je už v schvaľovacom procese, aktuálne predmetom predaja sú aj podiely v prístupovej ceste..
Pozemok je prístupný z dvoch strán cesty.
Plocha: pozemku: 425 m2
Rozmery: cca šírka 14 m x dĺžka 31 m
Cena: 56000 €
V prípade, ak Vás táto ponuka zaujala, neváhajte ma kontaktovať, nehnuteľnosť Vám rád ukážem osobne.
Mgr. Slavko Hudák, 0907919251, hudak@avlas.sk
SME OVERENÁ REALITNÁ KANCELÁRIA PÔSOBIACA NA TRHU S NEHNUTEĽNOSŤAMI OD ROKU 2011!
NÁŠ TÍM V OBLASTI REALÍT SÚ MAKLÉRI S DLHOROČNOU PRAXOU.
SAMOZREJMOSŤOU JE SERIÓZNY A ĽUDSKÝ PRÍSTUP, ZÁROVEŇ BEZPEČNOSŤ KLIENTOV PRI OBCHODE JE PRE NÁS PRIORITOU.
NAŠE SLUŽBY PRE KLIENTOV SÚ BEZPLATNÉ A ZAHŔŇAJÚ:
- VYPRACOVANIE ZMLÚV
- POPLATKY SPOJENÉ S PREVODOM VLASTNÍCKYCH PRÁV
- PREVERENIE KUPOVANEJ NEHNUTEĽNOSTÍ
- POMOC PRI VYBAVOVANÍ HYPOTEKÁRNEHO ÚVERU
- PROVÍZIE SÚ V CENE NEHNUTEĽNOSTÍ
- ZABEZPEČUJEME:
- sprostredkovanie kúpy, predaja a prenájmu nehnuteľností
- aj zadlžených nehnuteľností
- oddlžovanie klientov pri predaji nehnuteľností
- profesionálne promo-video obhliadky
- profesionálne nafotenie nehnuteľnosti
- natáčanie, fotenie nehnuteľnosti dronom
- marketingová podpora predaja, topovanie na realitných portáloch
- bannery
- kvalitný právny servis
|
| |||||||||||||||||||||||||||||||
Kontaktovať inzerenta e-mailom
Kontaktovať e-mailom môže iba overený užívateľ.
Overenie je zadarmo.
Vaše telefónne číslo *
Kontaktovať e-mailom môže iba overený užívateľ.
Overenie je zadarmo.
Vaše telefónne číslo *