Novostavba rodinného domu v skvelej lokalite – Zimná ulica,
- [28.10. 2025]Zmazať/ Upraviť/ Topovať






























Novostavba rodinného domu v skvelej lokalite Kvetoslavov – Zimná ulica, blízko vlakovej zastávky a R7
Popis nehnuteľnosti
Predáme moderný rodinný dom v tichej lokalite, ktorá ponúka vynikajúce spojenie s Bratislavou a okolitou prírodou. Dom sa nachádza na Zimnej ulici, len 500 m od vlakovej zastávky, ktorá vás rýchlo zavezie do centra Bratislavy, a iba 1 km od diaľnice R7. Okolie je pokojné, s výbornou dostupnosťou na všetky dôležité miesta.
Výhody tejto nehnuteľnosti:
Vnútorná obytná plocha: 105 m²
Pozemok: 480 m²
Dokončenie v 7. mesiaci 2025 – dom bude pripravený na nasťahovanie
Holodom – príležitosť dokončiť podľa vlastných predstáv
Dispozícia a vybavenie domu:
3 priestranné spálne
Obývacia izba s kuchyňou – otvorený priestor pre komfortné bývanie
Veľká kúpeľňa a samostatné WC
Technická miestnosť
Úložný priestor na povale (cca 30 m²)
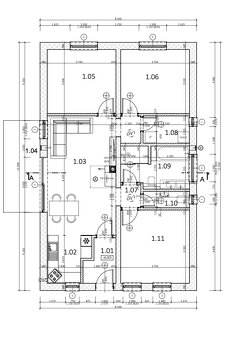
Pôdorys k dispozícii na vyžiadanie
Vybavenie a štandard:
Keramická strecha Tondach
Komín Schiedel
Fasáda: 20 cm zateplenie + Baumit biela omietka
Sádrové omietky – vymaľované 3x na bielo
Zámková dlažba ABW Vario Granit – 3 parkovacie miesta
Vŕtaná studňa a príprava na závlahu
Prípravy na budúcnosť:
Príprava na vonkajšie žalúzie, kamerový systém, alarm, fotovoltiku, rekuperáciu, klimatizáciu
Vybetónovaný základ na murovaný plot – dokončenie podľa vašich predstáv
Cena: od 330 000 €
Nezmeškajte túto príležitosť získať dom v skvelej lokalite, s vynikajúcou dostupnosťou na všetky dôležité miesta, a možnosťou prispôsobiť si interiér podľa vlastných predstáv. Dom je ideálny pre rodiny alebo jednotlivcov, ktorí hľadajú komfort, súkromie a moderné vybavenie.
Popis nehnuteľnosti
Predáme moderný rodinný dom v tichej lokalite, ktorá ponúka vynikajúce spojenie s Bratislavou a okolitou prírodou. Dom sa nachádza na Zimnej ulici, len 500 m od vlakovej zastávky, ktorá vás rýchlo zavezie do centra Bratislavy, a iba 1 km od diaľnice R7. Okolie je pokojné, s výbornou dostupnosťou na všetky dôležité miesta.
Výhody tejto nehnuteľnosti:
Vnútorná obytná plocha: 105 m²
Pozemok: 480 m²
Dokončenie v 7. mesiaci 2025 – dom bude pripravený na nasťahovanie
Holodom – príležitosť dokončiť podľa vlastných predstáv
Dispozícia a vybavenie domu:
3 priestranné spálne
Obývacia izba s kuchyňou – otvorený priestor pre komfortné bývanie
Veľká kúpeľňa a samostatné WC
Technická miestnosť
Úložný priestor na povale (cca 30 m²)
Pôdorys k dispozícii na vyžiadanie
Vybavenie a štandard:
Keramická strecha Tondach
Komín Schiedel
Fasáda: 20 cm zateplenie + Baumit biela omietka
Sádrové omietky – vymaľované 3x na bielo
Zámková dlažba ABW Vario Granit – 3 parkovacie miesta
Vŕtaná studňa a príprava na závlahu
Prípravy na budúcnosť:
Príprava na vonkajšie žalúzie, kamerový systém, alarm, fotovoltiku, rekuperáciu, klimatizáciu
Vybetónovaný základ na murovaný plot – dokončenie podľa vašich predstáv
Cena: od 330 000 €
Nezmeškajte túto príležitosť získať dom v skvelej lokalite, s vynikajúcou dostupnosťou na všetky dôležité miesta, a možnosťou prispôsobiť si interiér podľa vlastných predstáv. Dom je ideálny pre rodiny alebo jednotlivcov, ktorí hľadajú komfort, súkromie a moderné vybavenie.
|
| |||||||||||||||||||||||||||||||
Kontaktovať inzerenta e-mailom
Kontaktovať e-mailom môže iba overený užívateľ.
Overenie je zadarmo.
Vaše telefónne číslo *
Kontaktovať e-mailom môže iba overený užívateľ.
Overenie je zadarmo.
Vaše telefónne číslo *
Podobné inzeráty
Kvetoslavov, okr. DS – na predaj POSLEDNÁ NOVOSTAVBA samosta - [27.10. 2025]Typ: Rodinný dom
Ulica: Pri ihrisku
Obec: Kvetoslavov
Wealth Group ponúka na predaj POSLEDNÚ nadštandardnú novostavbu 4 izbového, tehlového rodinného domu – tepelné čerpadlo, rekuperácia vzduchu s klimatizáciou, príprava na krb s krbovou vložkou, vonkajšia úprava so zatrávnením, zámko ...
466 000 €
Dunajská Streda
930 41
930 41
71 x
Označiť zlý inzerát Chybnú kategóriu Ohodnotiť užívateľa Zmazať/Upraviť/Topovať
BOSEN | stredné byty voľné - 4 izbové Byty, so záhradkou a t - [23.10. 2025]Typ: Rodinný dom
Ulica: Ligurčeková
Obec: Hviezdoslavov
BOSEN GROUP Vám ponúka na predaj novostavby projektu SLNEČNÉ ZÁHRADY 4-izbové mezonety v obci Hviezdoslavov- (časť záhrady) Ligurčeková ulica
MEZONET: výmera bytu je 91m2
- rodinný dom má 4 bytové jednotky, je z tehly Winerberger ...
205 000 €
Dunajská Streda
930 41
930 41
112 x
Označiť zlý inzerát Chybnú kategóriu Ohodnotiť užívateľa Zmazať/Upraviť/Topovať
Predaj samostatne stojacieho rodinného domu, Hviezdoslavov - [22.10. 2025]Ponúkame na predaj samostatne stojaci 3 izbový rodinný dom v obci Hviezdoslavov, Jabloňová ulica.
Jednopodlažný tehlový rodinný dom s úžitkovou plochou 122,20 m², zastavanou plochou 140,40 m², situovaný na pozemku o výmere 500 m² v atraktívnej lokalite Hviezdoslavov, len 15 km od Bratislavy, umiest ...
320 000 €
Dunajská Streda
930 41
930 41
424 x
Označiť zlý inzerát Chybnú kategóriu Ohodnotiť užívateľa Zmazať/Upraviť/Topovať
Na predaj: 3izbový rodinný dom s garážou , pozemok 757 m² - - [22.10. 2025]Typ: Rodinný dom
Obec: Kvetoslavov
Realitná kancelária REALITYFREE ponúka exkluzívne na predaj 3 izbový poschodový rodinný dom v Kvetoslavove.
Zastavaná plocha 115 m². Dom sa nachádza na pozemku s rozlohou 757 m².
Rodinný dom bol kolaudovaný v roku 1982.
Dom je čias ...
239 000 €
Dunajská Streda
930 41
930 41
346 x
Označiť zlý inzerát Chybnú kategóriu Ohodnotiť užívateľa Zmazať/Upraviť/Topovať
4-IZBOVÝ RD S TEPEL. ČERPADLOM A ROHOVÝM POZEMKOM - [21.10. 2025]Ponúkame na predaj 4 izbový NÍZKOENERGETICKÝ RD nachádzajúci sa v obľúbenej lokalite v obci Hviezdoslavov, časť Záhrady, na ul. Ligurčeková/Repíková.
Rodinný dom je aktuálne vo výstavbe, s dokončením 1.Q/26. Nakoľko domy s krajným pozemkom sa predávajú ako prvé, neváhajte a zarezervujte si tento ...
224 990 €
Dunajská Streda
930 41
930 41
439 x
Označiť zlý inzerát Chybnú kategóriu Ohodnotiť užívateľa Zmazať/Upraviť/Topovať
Na predaj Dvojdom A1- A2 v obci Hviezdoslavov - [21.10. 2025]Typ: Rodinný dom
Obec: Hviezdoslavov
Leaders & Partners vám ponúka na predaj novostavby 4 izb. rodinné dvoj domy v obci Hviezdoslavov na pozemkoch o výmere 450,5m2.
Obytná plocha - 93m2
Zastavaná plocha - 109,8m2
Projekt LUTEA spĺňa požiadavky kvality a komfortu aj týc ...
269 000 €
Dunajská Streda
930 41
930 41
305 x
Označiť zlý inzerát Chybnú kategóriu Ohodnotiť užívateľa Zmazať/Upraviť/Topovať
Novostavba 5izb. rodinný dom v obci Hviezdoslavov - [21.10. 2025]Typ: Rodinný dom
Obec: Hviezdoslavov
Leaders & Partners vám ponúka na predaj novostavbu 5 izb. rodinný dom v obci Hviezdoslavov na pozemku o výmere 611m2.
Projekt LUTEA spĺňa požiadavky kvality a komfortu aj tých najnáročnejších klientov. Naša architektúra domov dokonale zapa ...
359 000 €
Dunajská Streda
930 41
930 41
269 x
Označiť zlý inzerát Chybnú kategóriu Ohodnotiť užívateľa Zmazať/Upraviť/Topovať
AXIS REAL | 5-izbový rodinný dom, GARÁŽ, Hviezdoslavov, Umel - [20.10. 2025]360° VIRTUÁLNU PREHLIADKU A 3D PÔDORYS NEHNUTEĽNOSTI NÁJDETE NA: https://info.axisreal.sk/UR
POPIS DOMU:
Realitná kancelária AXIS REAL exkluzívne ponúka na predaj dvojpodlažný 5 izbový rodinný dom s celkovou rozlohou 202 m2 v lokalite Hviezdoslavov Umelecká ulica. Dom bol skolaudovaný v roku 200 ...
373 000 €
Dunajská Streda
930 41
930 41
109 x
Označiť zlý inzerát Chybnú kategóriu Ohodnotiť užívateľa Zmazať/Upraviť/Topovať
Krásny rodinný dom Zlaté Klasy - PREDAJ - [20.10. 2025]Exklusívne Vám ponúkame krásny 4 izbový rodinný dom s garážou a bazénom vo vyhľadávanej lokalite Zlaté Klasy.
Rodinný dom sa nachádza v novšej lokalite obce s krásnou záhradou a dobrými susedmi.
RD bol kolaudovaný v roku 2015 , postavený s kvalitných materiálov.
V obci veľmi dobrá občianská vybav ...
365 000 €
Dunajská Streda
930 41
930 41
343 x
Označiť zlý inzerát Chybnú kategóriu Ohodnotiť užívateľa Zmazať/Upraviť/Topovať
Predaj-4 izb. RD na veľkom pozemku-1549 m2-Kvetoslavov - [19.10. 2025]Na predaj priestranný rodinný dom so zimnou záhradou a garážou na výnimočne veľkom pozemku o výmere až 1549 m², ktorý ponúka veľa možností – či už na výstavbu ďalšieho domu, rozšírenie existujúcej stavby, dobudovanie bazénu alebo vytvorenie okrasno-úžitkovej záhrady podľa vlastných predstáv.
Základ ...
409 000 €
Dunajská Streda
930 41
930 41
248 x
Označiť zlý inzerát Chybnú kategóriu Ohodnotiť užívateľa Zmazať/Upraviť/Topovať









