Predaj budovy na podnikanie v obci Turzovka
- [27.10. 2025]Zmazať/ Upraviť/ Topovať






























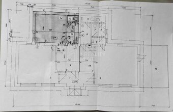
Ponúkame Vám na predaj lukratívnu budovu obchodnej prevádzky v Turzovke pri hlavnom ťahu Turzovka - Makov. Budova bola kolaudovaná v roku 1995 a pozostáva z 1. NP, podkrovia a je čiastočne podpivničená. Pivnica je situovaná z predsiene a dvoch miestností. 1. NP pozostáva z predsiene, priestorov hostinca, výčapných a skladových priestorov, toaliet a dvoch terás veľkej haly bývalých prevádzkových priestorov predajne potravín, skladových priestorov a taktiež ďalších toaliet. Podkrovie je nevyužívaný holo-priestor. Celková výmera úžitkovej plochy je 124,12 m2+ terasa o rozlohe 25,2 m2. Pozemok s celkovou výmerou 678 m2 ponúka možnosti využívania záhradného areálu, alebo možnosť rozšírenia prevádzky. V budove sú vymenené plastové okná, taktiež je zateplená z vonkajšej strany. Vykurovanie je zabezpečené plynom, krbovou pecou v pohostinstve, napojenie na obecnú vodu a kanalizáciu.
Náš názor: super cena, výborná investícia vďaka polohe, široká možnosť rôznych podnikateľských aktivít, možnosť nadstavby, prístavby. Prípadne možnosť pokračovať v zabehnutej prevádzke pohostinstva s dlhoročnou tradíciou.
Ak Vás ponuka zaujala neváhajte kontaktovať: PaedDr. Mária Habčáková RSc., tel. 0903564094, mail.dejova@reality-rent.sk
Dodatok k cene: dohoda možná, vrátane provízie
Zastavaná plocha: 144m²
Obytná plocha: 124.12m²
Rozloha pozemku: 678m²
Úžitková plocha: 124.12m²
Vlastníctvo: osobné
Stav: pôvodný
Odvoz odpadu: áno
Voda: verejný vodovod
El. napätie: 230/400V
Plyn: áno
Kanalizácia: áno
Vykurovanie: vlastné - plyn
Terasa: áno - 2
Pivnica: áno
Výťah: nie
Parkovanie: áno
Inžinierske siete: áno
Postavené z: Zmiešané
Zateplený objekt: áno
Klimatizácia: nie
Energetický certifikát: nie
Predzáhradka: áno
Bezbariérový prístup : áno
Okná: plastové
Náš názor: super cena, výborná investícia vďaka polohe, široká možnosť rôznych podnikateľských aktivít, možnosť nadstavby, prístavby. Prípadne možnosť pokračovať v zabehnutej prevádzke pohostinstva s dlhoročnou tradíciou.
Ak Vás ponuka zaujala neváhajte kontaktovať: PaedDr. Mária Habčáková RSc., tel. 0903564094, mail.dejova@reality-rent.sk
Dodatok k cene: dohoda možná, vrátane provízie
Zastavaná plocha: 144m²
Obytná plocha: 124.12m²
Rozloha pozemku: 678m²
Úžitková plocha: 124.12m²
Vlastníctvo: osobné
Stav: pôvodný
Odvoz odpadu: áno
Voda: verejný vodovod
El. napätie: 230/400V
Plyn: áno
Kanalizácia: áno
Vykurovanie: vlastné - plyn
Terasa: áno - 2
Pivnica: áno
Výťah: nie
Parkovanie: áno
Inžinierske siete: áno
Postavené z: Zmiešané
Zateplený objekt: áno
Klimatizácia: nie
Energetický certifikát: nie
Predzáhradka: áno
Bezbariérový prístup : áno
Okná: plastové
|
| |||||||||||||||||||||||||||||||
Kontaktovať inzerenta e-mailom
Kontaktovať e-mailom môže iba overený užívateľ.
Overenie je zadarmo.
Vaše telefónne číslo *
Kontaktovať e-mailom môže iba overený užívateľ.
Overenie je zadarmo.
Vaše telefónne číslo *









