PREDAJ: Hrubá stavba rodinného domu v mestskej časti Žiliny
- TOP - [30.10. 2025]Zmazať/ Upraviť/ Topovať



























Ponúkame na predaj hrubú stavbu moderného poschodového rodinného domu v mestskej časti Žilina- Žilinská Lehota, ktorý už bude funkčne napojený na prípojky: elektra, vodovodu a kanalizácie (žumpa). Dom je osadený v mierne svahovitom pozemku celkovej výmery 587 m2 a ponúka nádherný výhľad na okolitú prírodu.
Lokalita umožňuje výbornú dostupnosť do Žiliny (7 minút autom, 8km od centra mesta), premáva sem aj MHD linka č. 29.
Prístup na pozemok je z mestskej asfaltovej cesty, v poslednej časti súkromná cesta (stavebné povolenie vyzískané). V okolí sú rodinné domy, veľa zelene, tiché prostredie, čo zaručí príjemné a pokojné rodinné bývanie. Celková výmera pozemku: 587 m2
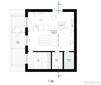
Úžitková plocha domu: 130,7 m2
Obytné miestnosti: 4
Počet kúpeľní: 2
PREDAJNÁ CENA 227.838,- eur s DPH ZAHŔŇA:
* HRUBÚ STAVBU DOMU:
- dokončená hrubá stavba 4-izbového poschodového domu s 2 kúpeľňami a finálne ukončenou zateplenou strechou, založenie domu - staticky vypočítané potrebám daného pozemku.
- dom murovaný z pórobetonových YTONG tvárnic hr. 300mm,
- železobetónové stropy nad obidvoma podlažiami
- 2 parkovacie miesta pri dome
dom realizovaný spol. IDEÁLNE DOMY, s.r.o.
* PRÍPOJKY SIETÍ:
- NAPOJENIE NA IS aktuálne už zrealizované v prístupovej ceste rozšírenia sietí elektro a vodovod v cene podielu 1/6 medzi všetkými majiteľmi domov v IBV
* OKOLIE DOMU:
- oporné múry vybudované na pozemku a
- hrubé terénne úpravy pozemku
* PROJEKTY:
- vyhotovenie projektovej dokumentácie domu, prípojok inžinierskych sietí, cesty,
- vybavenie stavebného povolenia na dom, prípojky sietí, cestu
Možnosť dokončenia domu do štádia holodom, prípadne na kľúč.
Detaily ohľadom projektu, konštrukčných prvkov a parametrov domu nájdete na:
https://idealnebyvanie.sk/domy-na-predaj/dom-v-ziline-3-typ-c
Veľmi radi Vám predstavíme projekt a všetky detaily na osobnom stretnutí v našej
kancelárii, kontaktujte nás prosím: 0905 563 348, info@idealnedomy.sk
Lokalita umožňuje výbornú dostupnosť do Žiliny (7 minút autom, 8km od centra mesta), premáva sem aj MHD linka č. 29.
Prístup na pozemok je z mestskej asfaltovej cesty, v poslednej časti súkromná cesta (stavebné povolenie vyzískané). V okolí sú rodinné domy, veľa zelene, tiché prostredie, čo zaručí príjemné a pokojné rodinné bývanie. Celková výmera pozemku: 587 m2
Úžitková plocha domu: 130,7 m2
Obytné miestnosti: 4
Počet kúpeľní: 2
PREDAJNÁ CENA 227.838,- eur s DPH ZAHŔŇA:
* HRUBÚ STAVBU DOMU:
- dokončená hrubá stavba 4-izbového poschodového domu s 2 kúpeľňami a finálne ukončenou zateplenou strechou, založenie domu - staticky vypočítané potrebám daného pozemku.
- dom murovaný z pórobetonových YTONG tvárnic hr. 300mm,
- železobetónové stropy nad obidvoma podlažiami
- 2 parkovacie miesta pri dome
dom realizovaný spol. IDEÁLNE DOMY, s.r.o.
* PRÍPOJKY SIETÍ:
- NAPOJENIE NA IS aktuálne už zrealizované v prístupovej ceste rozšírenia sietí elektro a vodovod v cene podielu 1/6 medzi všetkými majiteľmi domov v IBV
* OKOLIE DOMU:
- oporné múry vybudované na pozemku a
- hrubé terénne úpravy pozemku
* PROJEKTY:
- vyhotovenie projektovej dokumentácie domu, prípojok inžinierskych sietí, cesty,
- vybavenie stavebného povolenia na dom, prípojky sietí, cestu
Možnosť dokončenia domu do štádia holodom, prípadne na kľúč.
Detaily ohľadom projektu, konštrukčných prvkov a parametrov domu nájdete na:
https://idealnebyvanie.sk/domy-na-predaj/dom-v-ziline-3-typ-c
Veľmi radi Vám predstavíme projekt a všetky detaily na osobnom stretnutí v našej
kancelárii, kontaktujte nás prosím: 0905 563 348, info@idealnedomy.sk
|
| |||||||||||||||||||||||||||||||
Kontaktovať inzerenta e-mailom
Kontaktovať e-mailom môže iba overený užívateľ.
Overenie je zadarmo.
Vaše telefónne číslo *
Kontaktovať e-mailom môže iba overený užívateľ.
Overenie je zadarmo.
Vaše telefónne číslo *






