KANCELÁRSKE- PRIESTORY-NA PRENÁJOM, UL. VOLGOGRADSKÁ, PREŠOV
- TOP - [28.10. 2025]Zmazať/ Upraviť/ Topovať






























Realitná kancelária RELCOM Vám ponúka na prenájom kancelárske priestory ,nachádzajúce sa na 3.nadzemnom podlaží. Administratívna budova sa nachádza na Volgogradskej ul. číslo 13 v Prešove prešla rekonštrukciou, ktorá zahŕňa kompletnú obnovu fasády so zateplením a nadštandardnou rekonštrukciou vstupnej recepcie.
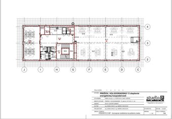
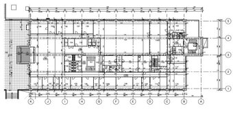
DISPOZÍCIA, VÝMERA A TECHNICKÉ PARAMETRE:
Podlahová plocha celej budovy - 8500 m2
Prenajímateľná plocha - 1300 m2
Vyhradené parkovanie na parkovisku priamo pred budovou za rampou
Možnosť prenájmu kancelárskych priestorov aj v nasledujúcich rozlohách: 424,08m2, 73,25m2, 25,76m2,56,65m2, 61,92m2, 300m2,700m2,2000,m2
IS:
-Eli - samostatné trafo
-Plyn - samostatná plynová kotolňa zabezpečujúca kúrenie
-Mestská voda
-TUV je riešená bojlermi
-Kanalizácia
Administratívna budova prešla rekonštrukciou:
-výmena plastových okien
-elektroinštalácia
-výmena výťahu
-zníženie stropov
-úprava sociálnych zariadení
-podlahy v kanceláriách
-dlažby na chodbách
-klimatizačné jednotky a pod.
LOKALITA A OBČIANSKA VYBAVENOSŤ
Poloha danej budovy je strategická z pohľadu napojenia na infraštruktúru, a teda diaľnicu D1 v smere na Bratislavu ako aj obchvatu, ktorý vedie k dialnici v smere na Košice a zároveň blízkosti hraníc Maďarska, Poľska a Ukrajiny. Vynikajúca je aj poloha vramci mesta Prešov, nakoľko sa nachádza vo frekventovanej časti v blízkosti centra mesta.
CENA
Od 10,90€ / m2 / mesiac bez DPH - v závislosti od veľkosti a finálneho štandardu kancelárie
V prípade záujmu o bližšie informácie ma neváhajte kontaktovať na tel. čísle +421 903 435 644 – Jana Jaššová, Realitná kancelária RELCOM – Licencovaná kancelária
Dodatok k cene: , +DPH
Obytná plocha: 1300m²
Celková rozloha: 1300m²
Úžitková plocha: 1300m²
Vlastníctvo: firemné
Stav: po rekonštrukcii
Internet: optika
Výťah: áno
Parkovanie: vlastné vyhradené
Zariadenie: nezariadený
Zateplený objekt: áno
Bezbariérový prístup : áno
Okná: plastové
DISPOZÍCIA, VÝMERA A TECHNICKÉ PARAMETRE:
Podlahová plocha celej budovy - 8500 m2
Prenajímateľná plocha - 1300 m2
Vyhradené parkovanie na parkovisku priamo pred budovou za rampou
Možnosť prenájmu kancelárskych priestorov aj v nasledujúcich rozlohách: 424,08m2, 73,25m2, 25,76m2,56,65m2, 61,92m2, 300m2,700m2,2000,m2
IS:
-Eli - samostatné trafo
-Plyn - samostatná plynová kotolňa zabezpečujúca kúrenie
-Mestská voda
-TUV je riešená bojlermi
-Kanalizácia
Administratívna budova prešla rekonštrukciou:
-výmena plastových okien
-elektroinštalácia
-výmena výťahu
-zníženie stropov
-úprava sociálnych zariadení
-podlahy v kanceláriách
-dlažby na chodbách
-klimatizačné jednotky a pod.
LOKALITA A OBČIANSKA VYBAVENOSŤ
Poloha danej budovy je strategická z pohľadu napojenia na infraštruktúru, a teda diaľnicu D1 v smere na Bratislavu ako aj obchvatu, ktorý vedie k dialnici v smere na Košice a zároveň blízkosti hraníc Maďarska, Poľska a Ukrajiny. Vynikajúca je aj poloha vramci mesta Prešov, nakoľko sa nachádza vo frekventovanej časti v blízkosti centra mesta.
CENA
Od 10,90€ / m2 / mesiac bez DPH - v závislosti od veľkosti a finálneho štandardu kancelárie
V prípade záujmu o bližšie informácie ma neváhajte kontaktovať na tel. čísle +421 903 435 644 – Jana Jaššová, Realitná kancelária RELCOM – Licencovaná kancelária
Dodatok k cene: , +DPH
Obytná plocha: 1300m²
Celková rozloha: 1300m²
Úžitková plocha: 1300m²
Vlastníctvo: firemné
Stav: po rekonštrukcii
Internet: optika
Výťah: áno
Parkovanie: vlastné vyhradené
Zariadenie: nezariadený
Zateplený objekt: áno
Bezbariérový prístup : áno
Okná: plastové
|
| |||||||||||||||||||||||||||||||
Kontaktovať inzerenta e-mailom
Kontaktovať e-mailom môže iba overený užívateľ.
Overenie je zadarmo.
Vaše telefónne číslo *
Kontaktovať e-mailom môže iba overený užívateľ.
Overenie je zadarmo.
Vaše telefónne číslo *









