NA PRENÁJOM, KANCELÁRSKE PRIESTORY č.220, UL. VOLGOGRADSKÁ,
- TOP - [28.10. 2025]Zmazať/ Upraviť/ Topovať



























Realitná kancelária RELCOM Vám ponúka na prenájom kancelárske priestory ,nachádzajúce sa na druhom nadzemnom podlaží. Administratívna budova sa nachádza na Volgogradskej ul. číslo 13 v Prešove.Prešla rekonštrukciou, ktorá zahŕňa kompletnú obnovu fasády so zateplením a nadštandardnou rekonštrukciou vstupnej recepcie.
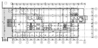
DISPOZÍCIA, VÝMERA A TECHNICKÉ PARAMETRE:
Podlahová plocha celej budovy - 8500 m2
Prenajímateľná plocha - 56,65 m2
Vyhradené parkovanie na parkovisku priamo pred budovou za rampou
V pôdoryse vyznačené pod č. 220
IS:
-Eli - samostatné trafo
-Plyn - samostatná plynová kotolňa zabezpečujúca kúrenie
-Mestská voda
-TUV je riešená bojlermi
-Kanalizácia
Administratívna budova prešla rekonštrukciou:
-výmena plastových okien
-elektroinštalácia
-výmena výťahu
-zníženie stropov
-úprava sociálnych zariadení
-podlahy v kanceláriách
-dlažby na chodbách
-klimatizačné jednotky a pod.
LOKALITA A OBČIANSKA VYBAVENOSŤ
Poloha danej budovy je strategická z pohľadu napojenia na infraštruktúru, a teda diaľnicu D1 v smere na Bratislavu ako aj obchvatu, ktorý vedie k diaľnici v smere na Košice a zároveň blízkosti hraníc Maďarska, Poľska a Ukrajiny. Vynikajúca je aj poloha vrámci mesta Prešov, nakoľko sa nachádza vo frekventovanej časti v blízkosti centra mesta.
CENA
Od 10,90€ / m2 / mesiac bez DPH - v závislosti od veľkosti a finálneho štandardu kancelárie
617,485 EUR
V prípade záujmu o bližšie informácie ma neváhajte kontaktovať na tel. čísle +421 903 435 644 – Jana Jaššová, Realitná kancelária RELCOM – Licencovaná kancelária NARKS
Obytná plocha: 56.65m²
Celková rozloha: 56.65m²
Úžitková plocha: 56.65m²
Vlastníctvo: firemné
Výťah: áno
Okná: plastové
DISPOZÍCIA, VÝMERA A TECHNICKÉ PARAMETRE:
Podlahová plocha celej budovy - 8500 m2
Prenajímateľná plocha - 56,65 m2
Vyhradené parkovanie na parkovisku priamo pred budovou za rampou
V pôdoryse vyznačené pod č. 220
IS:
-Eli - samostatné trafo
-Plyn - samostatná plynová kotolňa zabezpečujúca kúrenie
-Mestská voda
-TUV je riešená bojlermi
-Kanalizácia
Administratívna budova prešla rekonštrukciou:
-výmena plastových okien
-elektroinštalácia
-výmena výťahu
-zníženie stropov
-úprava sociálnych zariadení
-podlahy v kanceláriách
-dlažby na chodbách
-klimatizačné jednotky a pod.
LOKALITA A OBČIANSKA VYBAVENOSŤ
Poloha danej budovy je strategická z pohľadu napojenia na infraštruktúru, a teda diaľnicu D1 v smere na Bratislavu ako aj obchvatu, ktorý vedie k diaľnici v smere na Košice a zároveň blízkosti hraníc Maďarska, Poľska a Ukrajiny. Vynikajúca je aj poloha vrámci mesta Prešov, nakoľko sa nachádza vo frekventovanej časti v blízkosti centra mesta.
CENA
Od 10,90€ / m2 / mesiac bez DPH - v závislosti od veľkosti a finálneho štandardu kancelárie
617,485 EUR
V prípade záujmu o bližšie informácie ma neváhajte kontaktovať na tel. čísle +421 903 435 644 – Jana Jaššová, Realitná kancelária RELCOM – Licencovaná kancelária NARKS
Obytná plocha: 56.65m²
Celková rozloha: 56.65m²
Úžitková plocha: 56.65m²
Vlastníctvo: firemné
Výťah: áno
Okná: plastové
|
| |||||||||||||||||||||||||||||||
Kontaktovať inzerenta e-mailom
Kontaktovať e-mailom môže iba overený užívateľ.
Overenie je zadarmo.
Vaše telefónne číslo *
Kontaktovať e-mailom môže iba overený užívateľ.
Overenie je zadarmo.
Vaše telefónne číslo *






