Na predaj STAVEBNÝ POZEMOK s projektom a stavebným povolením
- TOP - [28.10. 2025]Zmazať/ Upraviť/ Topovať
























PREDAJ STAVEBNÝCH POZEMKOV S PROJEKTOM A STAVEBNÝM POVOLENÍM
Ponúkame na predaj 3 pozemky s rôznymi výmerami od 492 do 509 m² v obci Veľké Rovné - obec medzi Žilinou a Bytčou.
Pozemky sú určené na výstavbu rodinných domov. Sú mierne svahovité a ponúkajú nádherný výhľad na okolitú prírodu a dolinu. Výborná dostupnosť do Žiliny (26 minút autom) a do Bytče (12 minút).
Prístup na pozemky je z obecnej asfaltovej cesty.
+ BONUS V CENE:
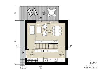
Ponúkame Vám bezplatný výber z našich dvoch alternatív katalógového projektu, ktorý bol navrhnutý architektonickým štúdiom OFFICE110 architekti na dané pozemky - za tento projekt domu nič nedoplácate a máte možnosť dom realizovať s nami alebo svojpomocne. V rámci ceny pozemku máte okrem projektu aj vybavené stavebné povolenie na tento dom.
PREDAJNÁ CENA POZEMKU P1 (615 m²) OBSAHUJE:
- POZEMOK: 496 m²
- PODIEL 1/3 NA SÚKROMNEJ PRÍSTUPOVEJ CESTE: 119 m²
- PROJEKT DOMU SO STAVEBNÝM POVOLENÍM
- PROJEKT ELEKTRO PRÍPOJKY A JEJ STAVEBNÉ POVOLENIE
Prosím RK volať len na obhliadku s konkrétnym záujemcom.
Pre bližšie informácie o projekte navštívne náš web: https://idealnebyvanie.sk/projekty/stavebne-pozemky-pri-ziline
Kontakt: 0905 563 348, info@idealnebyvanie.sk
Ponúkame na predaj 3 pozemky s rôznymi výmerami od 492 do 509 m² v obci Veľké Rovné - obec medzi Žilinou a Bytčou.
Pozemky sú určené na výstavbu rodinných domov. Sú mierne svahovité a ponúkajú nádherný výhľad na okolitú prírodu a dolinu. Výborná dostupnosť do Žiliny (26 minút autom) a do Bytče (12 minút).
Prístup na pozemky je z obecnej asfaltovej cesty.
+ BONUS V CENE:
Ponúkame Vám bezplatný výber z našich dvoch alternatív katalógového projektu, ktorý bol navrhnutý architektonickým štúdiom OFFICE110 architekti na dané pozemky - za tento projekt domu nič nedoplácate a máte možnosť dom realizovať s nami alebo svojpomocne. V rámci ceny pozemku máte okrem projektu aj vybavené stavebné povolenie na tento dom.
PREDAJNÁ CENA POZEMKU P1 (615 m²) OBSAHUJE:
- POZEMOK: 496 m²
- PODIEL 1/3 NA SÚKROMNEJ PRÍSTUPOVEJ CESTE: 119 m²
- PROJEKT DOMU SO STAVEBNÝM POVOLENÍM
- PROJEKT ELEKTRO PRÍPOJKY A JEJ STAVEBNÉ POVOLENIE
Prosím RK volať len na obhliadku s konkrétnym záujemcom.
Pre bližšie informácie o projekte navštívne náš web: https://idealnebyvanie.sk/projekty/stavebne-pozemky-pri-ziline
Kontakt: 0905 563 348, info@idealnebyvanie.sk
|
| |||||||||||||||||||||||||||||||
Kontaktovať inzerenta e-mailom
Kontaktovať e-mailom môže iba overený užívateľ.
Overenie je zadarmo.
Vaše telefónne číslo *
Kontaktovať e-mailom môže iba overený užívateľ.
Overenie je zadarmo.
Vaše telefónne číslo *
Podobné inzeráty
Pozemok 740m2 - [27.10. 2025]Ponúkam na predaj slnečný pozemok o výmere 740m2 určený na vystavbu rodinného domu. Pozemok sa nachádza v dobrej dostupnosti od mesta Žilina v prímestskej časti Žilinská Lehota spolu s komplet projektovou dokumnetáciou pre územné a stavebné konanie. Inžinierske siete elektrika na hranici pozemku. Ce ...
75 000 €
Žilina
010 01
010 01
113 x
Označiť zlý inzerát Chybnú kategóriu Ohodnotiť užívateľa Zmazať/Upraviť/Topovať
Exkluzívne na predaj slnečný rekreačný pozemok 1659 m2 Žilin - TOP - [28.10. 2025]Ponúkame Vám exkluzívne na predaj pekný a slnečný rekreačný pozemok, ktorý sa nachádza v prímestskej časti mesta Žilina - Strážov.
Pozemok s výmerou 1659 m2 sa nachádza v lokalite s chatovou výstavbou a krásnymi výhľadmi na mesto Žilina a okolitú prírodu. Pozemok sa skladá s dvoch častí. Prvá čas ...
65 000 €
Žilina
010 01
010 01
195 x
Označiť zlý inzerát Chybnú kategóriu Ohodnotiť užívateľa Zmazať/Upraviť/Topovať
Rekreačný Pozemok - Záhrada, Žilina - Strážov, 566 m2. - [27.10. 2025]Na predaj rekreačný pozemok v mestskej časti Žilina – Strážov
Ponúkame na predaj rekreačný pozemok o rozlohe 566 m², nachádzajúci sa v extraviláne Žiliny – Strážov. Tento pozemok je celodenne slnečný, svahovitý a ideálny pre oddych či výstavbu rekreačnej chaty.
Vlastnosti pozemku:
Prístup p ...
33 500 €
Žilina
010 01
010 01
136 x
Označiť zlý inzerát Chybnú kategóriu Ohodnotiť užívateľa Zmazať/Upraviť/Topovať
Rekreačný Pozemok - Záhrada, Žilina - Strážov, 693 m2. - [27.10. 2025]Na predaj rekreačný pozemok v mestskej časti Žilina – Strážov
Ponúkame na predaj rekreačný pozemok o rozlohe 693 m², nachádzajúci sa v extraviláne Žiliny – Strážov. Tento pozemok je celodenne slnečný, svahovitý a ideálny pre oddych či výstavbu rekreačnej chaty.
Vlastnosti pozemku:
Prístup p ...
40 500 €
Žilina
010 01
010 01
125 x
Označiť zlý inzerát Chybnú kategóriu Ohodnotiť užívateľa Zmazať/Upraviť/Topovať
Pozemok na Predaj - TOP - [28.10. 2025]Dobrý deň, predám pekný pozemok v obci Turie o výmere 1100 m2 plus podiel k prístupovej ceste 70 m2 na výstavbu rekreačnej chaty aj so stavebným povolením.
Pozemok je pekný, tichý s výhľadom na obec Turie.
Prístupová cesta až k pozemku.
Elektrická prípojka na hranici pozemku.
Vodu je nutné rieši ...
94 540 €
Žilina
010 01
010 01
136 x
Označiť zlý inzerát Chybnú kategóriu Ohodnotiť užívateľa Zmazať/Upraviť/Topovať
Pozemok na Predaj - TOP - [28.10. 2025]Dobrý deň,
predám pekný pozemok na budúcu výstavbu rekreačnej chaty ( pozemok je už zahrnutý už v územnom pláne obce ako výhľadovo-stavebný).
K pozemku vedie nová prístupová cesta, elektrická prípojka hotová na hranici pozemku.
Vodu treba riešiť studňou a odpad žumpou.
Na pozemku nie je možné ...
78 105 €
Žilina
010 01
010 01
136 x
Označiť zlý inzerát Chybnú kategóriu Ohodnotiť užívateľa Zmazať/Upraviť/Topovať
Predám stavebný pozemok pri Žiline - [26.10. 2025]Predám stavebný pozemok o veľkosti 700m2 pri Žiline v obci Snežnica. Rozmery sú 20x35m. Elektrina na pozemku. Asfaltová cesta pred pozemkom. Voda formou studne. Krásne výhľady.
Pri rýchlom jednaní dohoda možná.
Prosím volať po 15 hod.
84 000 €
Žilina
010 01
010 01
285 x
Označiť zlý inzerát Chybnú kategóriu Ohodnotiť užívateľa Zmazať/Upraviť/Topovať
Na predaj, pozemok, Rosina, 1500m2 - [21.10. 2025]Ponúkam na predaj pozemky vedené ako parcely typu E v obci Rosina.
Pozemky sa nachádzajú v bezprostrednej blízkosti zastavaného územia, rodinných domov a hlavnej cesty.
Možné využitie:
záhrada
pestovanie plodín
rekreačné účely
Výmera pozemkov:
952 m² (šírka cca 7 m, dĺžka cca 136 ...
27 000 €
Žilina
010 01
010 01
301 x
Označiť zlý inzerát Chybnú kategóriu Ohodnotiť užívateľa Zmazať/Upraviť/Topovať
Predaj | Slnečný pozemok s výhľadom, Trnové - [20.10. 2025]Typ: Poľnohospodárske a lesné pozemky
Ulica: Trnové
Mestská časť: Trnové
Obec: Žilina
F-one reality Vám ponúka na predaj rovinatý pozemok s krásnym výhľadom v mestskej časti Žilina – Trnové. Pozemok má pravidelný obdĺžnikový tvar a jeho celková výmera je 674 m². K pozemku vedie prístupová cest ...
53 450 €
Žilina
010 01
010 01
420 x
Označiť zlý inzerát Chybnú kategóriu Ohodnotiť užívateľa Zmazať/Upraviť/Topovať
Predaj 4 stavebné pozemky pre RD,staveb povolenie,Ovčiarsko - [20.10. 2025]Na predaj 4 stavebné pozemky určené na výstavbu rodinných domov v obci Ovčiarsko spolu s právoplatným stavebným povolením.
Ponúkame na predaj 4 atraktívne stavebné pozemky v tichej obci Ovčiarsko, ideálne pre výstavbu rodinných domov. Pozemky sú rôznej veľkosti:
471 m²
500 m²
581 m²
650 m²
...
71 292 €
Žilina
010 01
010 01
76 x
Označiť zlý inzerát Chybnú kategóriu Ohodnotiť užívateľa Zmazať/Upraviť/Topovať



