HR/PAG/MANDRE- Predaj luxusných apartmánov s terasami priamo
- [27.10. 2025]Zmazať/ Upraviť/ Topovať











Ak hľadáte úplne nový apartmán s priamym vstupom na pláž, ktorý bude k dispozícii už budúcu letnú sezónu, ktorý si môžete zariadiť podľa vašich predstáv - tak máme pre Vás skvelú ponuku pri ktorej neplatíte províziu za sprostredkovanie.
V exkluzívnom zastúpení od developera projektu máme mimoriadnu ponuku apartmánov v luxusnom apartmánovom dome Ghazal Mandre, ktorý je práve vo výstavbe - už dokončená hrubá stavba.
V bytovom dome sa nachádza8 apartmánov s výhľadom na more: 2 dvojizbové, 3 trojizbové a 2 štvorizbové apartmány (jeden trojizobový a jeden štvorizbový penthouse s veľkou terasou na najvyššom poschodí). Celý dom je postavený z kvalitných materiálov a každý z apartmánov bude dokončený do štandardu - kompletne vybavená kúpeľňa s toaletou, obklady, dlažba, keramické podlahy, dvere, podlahové kúrenie, klimatizácia, predpríprava na kuchyňu a vírivku, hliníkové okná a sklenené zábradlia, bezpečnostné a protipožiarne dvere, elektrický vrátnik na otváranie vchodu. Ku každému z apartmánov je v cene zahrnuté už aj vyhradené parkovacie státie.V prípade záujmu možnosť zmeny štandardu v bytoch za príplatok. Stavba je plánová na kompletné dokončenie v Decembri 2025. Prislúcha k nemu vlastná bio čistička odpadových vôd.
Spodné apartmány disponujú terasou, navyše svojou predzáhradkou, ktorá bude oplotená a budú spravené prípojky na vodu z vonkajšej časti domu. K ostatným prislúchajú balkóny, terasy a najvyššie disponujú priestrannou terasou s priamym výhľadom na more.
Všetky apartmány budú plne klimatizované, na oknách budú inštalované vonkajšie elektrické rolety a na terasách a balkónoch vonkajšie elektrické žalúzie.
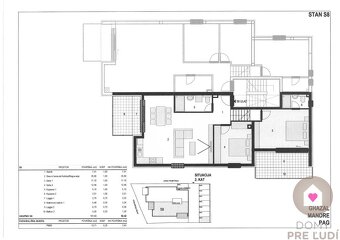
Výmery jednotlivých apartmánov spolu s cenami nájdete na na našej web stránke domypreludi.sk
Výmery apartmánov sú od 54,38 m2 - 233,50 m2.
Cena: od 250 500€ - 790 300€ .
APARTMÁNY:
Prízemie :
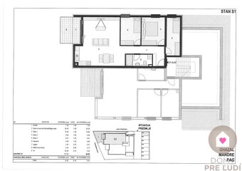
S1 - 4izbový apartmán s kúpeľňou a pozemkom o celkovej výmere 137,06 m2 z čoho 52,95 m2 tvorí predzáhradka a 5,44 m2 terasa - 516 000 €.
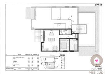
S2 - 3izbový apartmán s kúpeľňou a pozemkom o celkovej výmere 111,16 m2 z čoho 42,62 m2 tvorí predzáhradka a 6,48 m2 terasa - 413 340 €.
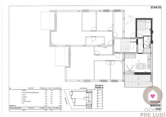
S3 - 2izbový apartmán s kúpeľňou a pozemkom o celkovej výmere 54,38 m2 z čoho 9,25 m2 tvorí predzáhradka a 5,2 m2 terasa - 250 560 €.
1.poschodie:
S4 - 3izbový apartmán s kúpeľňou, balkónom a terasou o celkovej výmere 85,23 m2 z čoho 3,35 m2 tvorí balkón a 5,44 m2 terasa - 490 000 €.
S5 - 3izbový apartmán s kúpeľňou, balkónom a terasou o celkovej výmere 68,53 m2 z čoho 2,7 m2 tvorí balkón a 6,48 m2 terasa - 388 000€.
S6 - 2izbový apartmán s kúpeľňou, balkónom a terasou o celkovej výmere 53,14m2 z čoho 6,79 m2 tvorí balkón a 5,2 m2 terasa - 293 000 €.
2. poschodie:
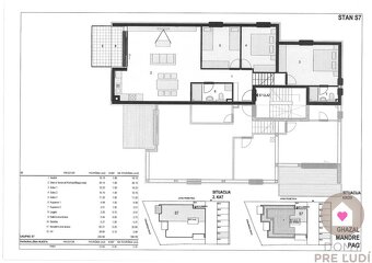
S7 - 4izbový penthouse s 2 kúpeľňami, balkónom, 2 terasami a záhradkou o celkovej výmere 233,50 m2 z čoho 3,35 m2 tvorí balkón, 88,68 m2 terasy a 39,8 m2 tvorí záhrada na terase - 790 320 €.
S8 - 3izbový apartmán s 2 kúpeľňami, 2 ba
V exkluzívnom zastúpení od developera projektu máme mimoriadnu ponuku apartmánov v luxusnom apartmánovom dome Ghazal Mandre, ktorý je práve vo výstavbe - už dokončená hrubá stavba.
V bytovom dome sa nachádza8 apartmánov s výhľadom na more: 2 dvojizbové, 3 trojizbové a 2 štvorizbové apartmány (jeden trojizobový a jeden štvorizbový penthouse s veľkou terasou na najvyššom poschodí). Celý dom je postavený z kvalitných materiálov a každý z apartmánov bude dokončený do štandardu - kompletne vybavená kúpeľňa s toaletou, obklady, dlažba, keramické podlahy, dvere, podlahové kúrenie, klimatizácia, predpríprava na kuchyňu a vírivku, hliníkové okná a sklenené zábradlia, bezpečnostné a protipožiarne dvere, elektrický vrátnik na otváranie vchodu. Ku každému z apartmánov je v cene zahrnuté už aj vyhradené parkovacie státie.V prípade záujmu možnosť zmeny štandardu v bytoch za príplatok. Stavba je plánová na kompletné dokončenie v Decembri 2025. Prislúcha k nemu vlastná bio čistička odpadových vôd.
Spodné apartmány disponujú terasou, navyše svojou predzáhradkou, ktorá bude oplotená a budú spravené prípojky na vodu z vonkajšej časti domu. K ostatným prislúchajú balkóny, terasy a najvyššie disponujú priestrannou terasou s priamym výhľadom na more.
Všetky apartmány budú plne klimatizované, na oknách budú inštalované vonkajšie elektrické rolety a na terasách a balkónoch vonkajšie elektrické žalúzie.
Výmery jednotlivých apartmánov spolu s cenami nájdete na na našej web stránke domypreludi.sk
Výmery apartmánov sú od 54,38 m2 - 233,50 m2.
Cena: od 250 500€ - 790 300€ .
APARTMÁNY:
Prízemie :
S1 - 4izbový apartmán s kúpeľňou a pozemkom o celkovej výmere 137,06 m2 z čoho 52,95 m2 tvorí predzáhradka a 5,44 m2 terasa - 516 000 €.
S2 - 3izbový apartmán s kúpeľňou a pozemkom o celkovej výmere 111,16 m2 z čoho 42,62 m2 tvorí predzáhradka a 6,48 m2 terasa - 413 340 €.
S3 - 2izbový apartmán s kúpeľňou a pozemkom o celkovej výmere 54,38 m2 z čoho 9,25 m2 tvorí predzáhradka a 5,2 m2 terasa - 250 560 €.
1.poschodie:
S4 - 3izbový apartmán s kúpeľňou, balkónom a terasou o celkovej výmere 85,23 m2 z čoho 3,35 m2 tvorí balkón a 5,44 m2 terasa - 490 000 €.
S5 - 3izbový apartmán s kúpeľňou, balkónom a terasou o celkovej výmere 68,53 m2 z čoho 2,7 m2 tvorí balkón a 6,48 m2 terasa - 388 000€.
S6 - 2izbový apartmán s kúpeľňou, balkónom a terasou o celkovej výmere 53,14m2 z čoho 6,79 m2 tvorí balkón a 5,2 m2 terasa - 293 000 €.
2. poschodie:
S7 - 4izbový penthouse s 2 kúpeľňami, balkónom, 2 terasami a záhradkou o celkovej výmere 233,50 m2 z čoho 3,35 m2 tvorí balkón, 88,68 m2 terasy a 39,8 m2 tvorí záhrada na terase - 790 320 €.
S8 - 3izbový apartmán s 2 kúpeľňami, 2 ba
| 
 | 
 | |||||||||||||||||||||||||||||||
Kontaktovať inzerenta e-mailom
Kontaktovať e-mailom môže iba overený užívateľ.
Overenie je zadarmo.
Vaše telefónne číslo *
Kontaktovať e-mailom môže iba overený užívateľ.
Overenie je zadarmo.
Vaše telefónne číslo *









