FINREA│Rodinný dom v Blažovciach, okres Turčianske Teplice
- [27.10. 2025]Zmazať/ Upraviť/ Topovať










Na predaj ponúkame rodinný dom v obci Blažovce, okres Turčianske Teplice, v tichej a príjemnej lokalite s výborným prístupom a potenciálom na bývanie aj investíciu.
Lokalita a výhody
Obec Blažovce sa nachádza v malebnom prostredí Turčianskej kotliny, s rýchlou dostupnosťou do Martina (cca 15 minút autom). Ide o pokojné vidiecke prostredie s krásnou prírodou, ideálne pre milovníkov turistiky, cykloturistiky a oddychu. V okolí sa nachádza viacero rekreačných oblastí, turistických trás a lyžiarskych stredísk, čo robí túto lokalitu zaujímavou aj z hľadiska investičného využitia – napríklad ako rekreačný dom alebo chalupa.
Nehnuteľnosť
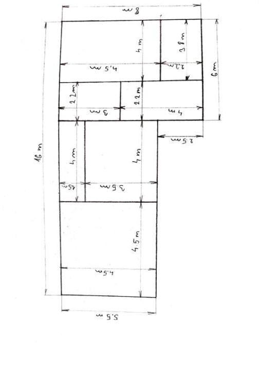
Dom je v pôvodnom, zachovalom stave, postavený z tehly a kvádra, so sedlovou strechou s eternitom.
Dispozícia ponúka možnosť úprav podľa vlastných predstáv – či už na trvalé bývanie, alebo na rekreačné účely.
Pozemok: rovinatý, výmera 711 m²
Podpivničenie: čiastočné
Steny: omietky
Podlahy: drevená dlážkovica
Okná: pôvodné drevené
Kúpeľňa: klasická vaňa
Vchodové dvere: pôvodné drevené
Kúrenie: ústredné
IS: inžinierske siete - elektrika, voda na pozemku
Odpad: dvojitá žumpa
Prístup: asfaltová obecná cesta
Na pozemku sa nachádza garáž s montážnou jamou, dielňa, kurník a poľnohospodárska budova, čo ponúka praktické využitie pre remeselníkov, chovateľov či ako úložný priestor. Pred garážou sú k dispozícii 2 prekryté parkovacie miesta
Výhody nehnuteľnosti
Pokojná lokalita s krásnym výhľadom na okolitú prírodu
Dobrá dopravná dostupnosť
Potenciál na rekonštrukciu podľa vlastných predstáv
Vhodné na trvalé bývanie aj rekreáciu
Kompletné inžinierske siete
Pre viac informácií alebo dohodnutie obhliadky ma neváhajte kontaktovať.
Lokalita a výhody
Obec Blažovce sa nachádza v malebnom prostredí Turčianskej kotliny, s rýchlou dostupnosťou do Martina (cca 15 minút autom). Ide o pokojné vidiecke prostredie s krásnou prírodou, ideálne pre milovníkov turistiky, cykloturistiky a oddychu. V okolí sa nachádza viacero rekreačných oblastí, turistických trás a lyžiarskych stredísk, čo robí túto lokalitu zaujímavou aj z hľadiska investičného využitia – napríklad ako rekreačný dom alebo chalupa.
Nehnuteľnosť
Dom je v pôvodnom, zachovalom stave, postavený z tehly a kvádra, so sedlovou strechou s eternitom.
Dispozícia ponúka možnosť úprav podľa vlastných predstáv – či už na trvalé bývanie, alebo na rekreačné účely.
Pozemok: rovinatý, výmera 711 m²
Podpivničenie: čiastočné
Steny: omietky
Podlahy: drevená dlážkovica
Okná: pôvodné drevené
Kúpeľňa: klasická vaňa
Vchodové dvere: pôvodné drevené
Kúrenie: ústredné
IS: inžinierske siete - elektrika, voda na pozemku
Odpad: dvojitá žumpa
Prístup: asfaltová obecná cesta
Na pozemku sa nachádza garáž s montážnou jamou, dielňa, kurník a poľnohospodárska budova, čo ponúka praktické využitie pre remeselníkov, chovateľov či ako úložný priestor. Pred garážou sú k dispozícii 2 prekryté parkovacie miesta
Výhody nehnuteľnosti
Pokojná lokalita s krásnym výhľadom na okolitú prírodu
Dobrá dopravná dostupnosť
Potenciál na rekonštrukciu podľa vlastných predstáv
Vhodné na trvalé bývanie aj rekreáciu
Kompletné inžinierske siete
Pre viac informácií alebo dohodnutie obhliadky ma neváhajte kontaktovať.
|
| |||||||||||||||||||||||||||||||
Kontaktovať inzerenta e-mailom
Kontaktovať e-mailom môže iba overený užívateľ.
Overenie je zadarmo.
Vaše telefónne číslo *
Kontaktovať e-mailom môže iba overený užívateľ.
Overenie je zadarmo.
Vaše telefónne číslo *