Rekonštrukcia podľa vašich predstáv? Tento dom vám dá voľnos
- [26.10. 2025]Zmazať/ Upraviť/ Topovať
























Hľadáte priestranný pozemok a dom s charakterom, ktorý si môžete prerobiť podľa seba? Toto je vaša príležitosť!
Realitná kancelária RE/MAX exkluzívne ponúka na predaj rodinný dom na výnimočne veľkom pozemku o rozlohe 1048 m² v obľúbenej obci Veľké Úľany – ideálnej pre rodinný život, ale aj investíciu.
Dom s dušou a potenciálom
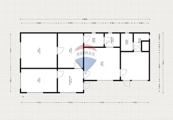
Jednopodlažný rodinný dom so sedlovou strechou ponúka úžitkovú plochu cca 140 m², je čiastočne podpivničený a jeho dispozícia je vhodná na rekonštrukciu podľa vlastných predstáv. Na pozemku sa nachádza samostatne stojaca garáž (20 m²) a dielňa (31 m²) – ideálne pre domácich majstrov, podnikateľov alebo hobby nadšencov.
Dispozícia domu
- Vstupná chodba
- 4 samostatné izby
- Kuchyňa so špajzou
- Šatník
- Kúpeľňa a samostatná toaleta
Technický stav a IS
Dom je v pôvodnom stave – ideálny na rekonštrukciu podľa vlastných predstáv. V roku 2015 bolo komplet vymenené ústredné kúrenie (nové radiátory a kotol). Nehnuteľnosť je napojená na verejný vodovod, kanalizáciu, elektrinu a plyn. Na pozemku sa nachádza aj vlastná studňa.
Skvelá lokalita – Veľké Úľany
Obec ponúka kompletnú občiansku vybavenosť – materské a základné školy, obchody, lekáreň, reštaurácie, zdravotné stredisko. Výborná dopravná dostupnosť do Bratislavy, Senca, Galanty aj Sládkovičova z nej robí výhodné miesto pre bývanie či podnikanie.
Dom je kúpou ihneď k dispozícii.
Cena zahŕňa aj kompletný právny servis a províziu realitnej kancelárie RE/MAX.
Táto nehnuteľnosť je skvelou voľbou pre tých, ktorí hľadajú pokojné bývanie s veľkým pozemkom, alebo vidia investičný potenciál v rekonštrukcii. Urobte si z tohto miesta domov snov!
Realitná kancelária RE/MAX exkluzívne ponúka na predaj rodinný dom na výnimočne veľkom pozemku o rozlohe 1048 m² v obľúbenej obci Veľké Úľany – ideálnej pre rodinný život, ale aj investíciu.
Dom s dušou a potenciálom
Jednopodlažný rodinný dom so sedlovou strechou ponúka úžitkovú plochu cca 140 m², je čiastočne podpivničený a jeho dispozícia je vhodná na rekonštrukciu podľa vlastných predstáv. Na pozemku sa nachádza samostatne stojaca garáž (20 m²) a dielňa (31 m²) – ideálne pre domácich majstrov, podnikateľov alebo hobby nadšencov.
Dispozícia domu
- Vstupná chodba
- 4 samostatné izby
- Kuchyňa so špajzou
- Šatník
- Kúpeľňa a samostatná toaleta
Technický stav a IS
Dom je v pôvodnom stave – ideálny na rekonštrukciu podľa vlastných predstáv. V roku 2015 bolo komplet vymenené ústredné kúrenie (nové radiátory a kotol). Nehnuteľnosť je napojená na verejný vodovod, kanalizáciu, elektrinu a plyn. Na pozemku sa nachádza aj vlastná studňa.
Skvelá lokalita – Veľké Úľany
Obec ponúka kompletnú občiansku vybavenosť – materské a základné školy, obchody, lekáreň, reštaurácie, zdravotné stredisko. Výborná dopravná dostupnosť do Bratislavy, Senca, Galanty aj Sládkovičova z nej robí výhodné miesto pre bývanie či podnikanie.
Dom je kúpou ihneď k dispozícii.
Cena zahŕňa aj kompletný právny servis a províziu realitnej kancelárie RE/MAX.
Táto nehnuteľnosť je skvelou voľbou pre tých, ktorí hľadajú pokojné bývanie s veľkým pozemkom, alebo vidia investičný potenciál v rekonštrukcii. Urobte si z tohto miesta domov snov!
|
| |||||||||||||||||||||||||||||||
Kontaktovať inzerenta e-mailom
Kontaktovať e-mailom môže iba overený užívateľ.
Overenie je zadarmo.
Vaše telefónne číslo *
Kontaktovať e-mailom môže iba overený užívateľ.
Overenie je zadarmo.
Vaše telefónne číslo *
Podobné inzeráty
4 izbovy rodinny dom - [30.10. 2025]ZÁKLADNÉ ÚDAJE:
* lokalita: Veľké Úľany
* veľkosť pozemku: 400 m2
* obytná plocha domu: 105 m2
* počet izieb: 4
* mesto Senec: 15 km
* mesto Galanta: 15 km
POPIS NEHNUTEĽNOSTI:
* Prízemie: chodba, veľká obývacia izba spojená s kuchyňou a jedálňou a s výstupom na terasu, štý ...
259 000 €
Galanta
925 22
925 22
362 x
Označiť zlý inzerát Chybnú kategóriu Ohodnotiť užívateľa Zmazať/Upraviť/Topovať
Priestranný 4-izbový rodinný dom v centre obce Veľké Úľany - [28.10. 2025]Ponúkame na predaj priestranný 4-rodinný dom v centre v obci Veľké Úľany na Dlhej ulici. Lokalita ponúka ideálne bývanie pre rodinu s atraktívnou dostupnosťou do centra obce.
VYHODY DOMU:
- výborná lokalita blízko centra obce
- priestranný a slnečný dom
- nízke náklady na energie
- veľká zas ...
180 000 €
Galanta
925 22
925 22
208 x
Označiť zlý inzerát Chybnú kategóriu Ohodnotiť užívateľa Zmazať/Upraviť/Topovať
4-izbový RD v peknom prostredí na predaj - [27.10. 2025]Ponúkam na predaj krásny skolaudovaný 4izbový RD pri lese z jazierkom.
Lokalita: Nové Osady čast Veľké Úľany
Zastavaná plocha 170m2
Úžitková plocha 117m2
Terasa 20m2
Pozemok 930 m2
Dom sa predáva dokončený v štandarde , je oplotený zo všetkých strán.
- zámková dlažba
- pripojený na el ...
249 000 €
Galanta
925 22
925 22
115 x
Označiť zlý inzerát Chybnú kategóriu Ohodnotiť užívateľa Zmazať/Upraviť/Topovať
Moderný 5 izbový rodinný dom & bazén a altánok - Veľké Úľany - TOP - [28.10. 2025]Moderný a priestranný rodinný dom (kolaudovaný v 12/2019) s vonkajším krytým bazénom, okrasnou a úžitkovou záhradou, altánkom, parkovacím priestorom, 4 izbami, obývacou izbou, technickou miestnosťou s posilňovňou na pozemku o rozlohe 1.383 m2 priamo v tichej lokalite obce Veľké Úľany.
Dom má 3 samo ...
379 000 €
Galanta
925 22
925 22
325 x
Označiť zlý inzerát Chybnú kategóriu Ohodnotiť užívateľa Zmazať/Upraviť/Topovať
Reality KOMPLEX s.r.o. Vám ponúka NA PREDAJ rodinný dom vo V - [20.10. 2025]Typ: Rodinný dom
Ulica: Veľké Úľany
Obec: Veľké Úľany
Reality KOMPLEX s.r.o. Vám ponúka NA PREDAJ rodinný dom vo Veľkých Úľanoch!
Celková plocha pozemku: 1062 m2
Dom je v pôvodnom stave, postavený v roku 1970 a je ideálny na rekonštrukciu podľa vlastných preds ...
165 000 €
Galanta
925 22
925 22
431 x
Označiť zlý inzerát Chybnú kategóriu Ohodnotiť užívateľa Zmazať/Upraviť/Topovať
Moderný dom pri Bratislave - Skvelá investícia aj domov - [19.10. 2025]B10 Vám ponúka na predaj moderný 4-izbový rodinný dom nachádzajúci sa v pokojnej a vyhľadávanej lokalite Veľké Úľany, v novovybudovanej štvrti Ekoosada. Táto kvalitná tehlová novostavba bola skolaudovaná v roku 2023 a je ideálnou voľbou pre rodinu, ktorá hľadá komfortné bývanie v príjemnom a tichom ...
Dohodou
Galanta
925 22
925 22
415 x
Označiť zlý inzerát Chybnú kategóriu Ohodnotiť užívateľa Zmazať/Upraviť/Topovať
4 izbový rodinný dom- Veľké Úľany - [18.10. 2025]NA PREDAJ –posledný voľný 4-izbový rodinný dom vo Veľkých Úľanoch – EKOOSADA
✨ Novostavba | Holodom s možnosťou dokončenia do štandardu
📍 Len 18 km od Senca | 35 km od Bratislavy
Hľadáte moderné a pokojné bývanie s dobrou dostupnosťou do mesta? Máme pre vás samostatne stojaci 4-izbový dom v obľ ...
214 900 €
Galanta
925 22
925 22
489 x
Označiť zlý inzerát Chybnú kategóriu Ohodnotiť užívateľa Zmazať/Upraviť/Topovať
Rodinny dom - [18.10. 2025]🏡 Na predaj – Novostavba rodinného domu v štýlovej Ekoosade Veľké Úľany
Cena: 215 000 €
Pozemok: 453 m²
Zastavaná plocha: 136 m² (vrátane terasy)
Lokalita: Veľké Úľany – Ekoosada
Vzdialenosť: 20 km od Senca, 40 km od Bratislavy
---
🧱 POPIS NEHNUTEĽNOSTI:
Ponúkame na predaj moderný 4- ...
215 000 €
Galanta
925 22
925 22
523 x
Označiť zlý inzerát Chybnú kategóriu Ohodnotiť užívateľa Zmazať/Upraviť/Topovať
Rodinný dom na predaj - [14.10. 2025]Ponúkam na predaj rodinný dom vo Veľkých Úľanoch na ulici kpt. Nálepku
Plocha pozemku je 879 m2 z toho dom má 152 m2 záhrada 638m2
Dom je v pôvodnom stave, postavený z tehál, čiastočne podpivničený, má vymenené okná za plastové, je ihneď obývateľný alebo aj ideálny na rekonštrukciu podľa vlastných p ...
165 000 €
Galanta
925 22
925 22
564 x
Označiť zlý inzerát Chybnú kategóriu Ohodnotiť užívateľa Zmazať/Upraviť/Topovať
4I -RD Veľké Úľany na pozemku 926m2 - TOP - [2.11. 2025]Typ: Rodinný dom
Ulica: sladkovičovská
Obec: Veľké Úľany
SaleA váš partner v realitách vám exkluzívne prináša do ponuky
Na predaj rodinný dom 130m2 s veľkým pozemkom 926m2 a hospodárskymi budovami vo Veľkých Úľanoch
Predstavujem vám dom, ktorý má skutočne veľký potenciál. Je to miesto, kde sa ...
188 000 €
Galanta
925 22
925 22
615 x
Označiť zlý inzerát Chybnú kategóriu Ohodnotiť užívateľa Zmazať/Upraviť/Topovať



