🏡 Na predaj nový 3-izbový byt s parkovacím státím – Brezno,
- [26.10. 2025]Zmazať/ Upraviť/ Topovať
























Na predaj krásny, nový 3-izbový byt s kuchynskou linkou na mieru, vstavanými spotrebičmi (umývačka riadu, varná doska, rúra, chladnička) a vstavanými skriňami v spálni aj vo vstupnej chodbe.
Byt je okamžite k nasťahovaniu a nachádza sa v ňom všetko, čo človek potrebuje na pohodlné bývanie.
Súčasťou predaja je aj parkovacie státie v novej, modernej štvrti Kasárne v Brezne.
Byt sa nachádza na 4. poschodí zo 6 a má výbornú dispozíciu, kvalitné materiály a moderné zariadenie.
🏠 Dispozícia a vybavenie:
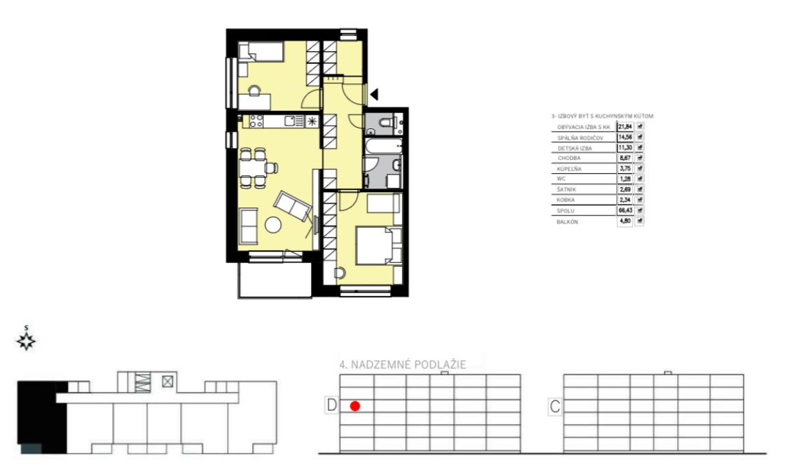
Obývacia izba s kuchynským kútom: 21,54 m²
– kuchynská linka na mieru so vstavanými spotrebičmi Samsung a Bosch
– priamy vstup na veľký balkón (4,80 m²)
Spálňa rodičov: 14,56 m²
Detská izba: 11,30 m²
Chodba: 8,67 m²
Kúpeľňa s vaňou: 3,75 m²
Samostatné WC: 1,27 m²
Šatník: 2,69 m²
Kobka (vedľa bytu): 2,34 m²
📏 Celková výmera bytu: 71,23 m² (vrátane balkóna a kobky)
✨ Výhody bytu:
okamžite k nasťahovaniu
kuchynská linka na mieru s kvalitnými spotrebičmi (Samsung, Bosch)
vstavané skrine v spálni aj na chodbe
samostatné WC a priestranná kúpeľňa s vaňou
veľký balkón s výhľadom
výťah v dome
vlastné parkovacie miesto
📍 Lokalita:
Novovybudovaná štvrť Kasárne – Brezno ponúka pokojné a bezpečné bývanie s dobrou dostupnosťou do centra mesta.
V blízkosti sa nachádzajú obchody, škola, škôlka, ihriská aj športové areály.
Byt je okamžite k nasťahovaniu a nachádza sa v ňom všetko, čo človek potrebuje na pohodlné bývanie.
Súčasťou predaja je aj parkovacie státie v novej, modernej štvrti Kasárne v Brezne.
Byt sa nachádza na 4. poschodí zo 6 a má výbornú dispozíciu, kvalitné materiály a moderné zariadenie.
🏠 Dispozícia a vybavenie:
Obývacia izba s kuchynským kútom: 21,54 m²
– kuchynská linka na mieru so vstavanými spotrebičmi Samsung a Bosch
– priamy vstup na veľký balkón (4,80 m²)
Spálňa rodičov: 14,56 m²
Detská izba: 11,30 m²
Chodba: 8,67 m²
Kúpeľňa s vaňou: 3,75 m²
Samostatné WC: 1,27 m²
Šatník: 2,69 m²
Kobka (vedľa bytu): 2,34 m²
📏 Celková výmera bytu: 71,23 m² (vrátane balkóna a kobky)
✨ Výhody bytu:
okamžite k nasťahovaniu
kuchynská linka na mieru s kvalitnými spotrebičmi (Samsung, Bosch)
vstavané skrine v spálni aj na chodbe
samostatné WC a priestranná kúpeľňa s vaňou
veľký balkón s výhľadom
výťah v dome
vlastné parkovacie miesto
📍 Lokalita:
Novovybudovaná štvrť Kasárne – Brezno ponúka pokojné a bezpečné bývanie s dobrou dostupnosťou do centra mesta.
V blízkosti sa nachádzajú obchody, škola, škôlka, ihriská aj športové areály.
|
| |||||||||||||||||||||||||||||||
Kontaktovať inzerenta e-mailom
Kontaktovať e-mailom môže iba overený užívateľ.
Overenie je zadarmo.
Vaše telefónne číslo *
Kontaktovať e-mailom môže iba overený užívateľ.
Overenie je zadarmo.
Vaše telefónne číslo *
Podobné inzeráty
Veľkometrážny 4-izbový byt 126 m2 s predzáhradkou 70 m2 a ga - [31.10. 2025]RE/MAX Joy dáva do pozornosti nadštandardný 4-izbový byt s výmerou 126 m2 v Brezne. K bytu patrí predzáhradka 70 m2, garážové státie 25 m2 v suteréne a pivnica 20 m2. Nehnuteľnosť z roku 2000 sa nachádza v uzavretom bytovom komplexe.
Areál je oplotený, so vstupnou bránou len pre rezidentov. Súčas ...
249 000 €
Brezno
977 01
977 01
441 x
Označiť zlý inzerát Chybnú kategóriu Ohodnotiť užívateľa Zmazať/Upraviť/Topovať
Na predaj pekný 3 izbový byt po rekonšt.aj so zariadením BR - [31.10. 2025]Pekné bývanie realitná kancelária Vám exkluzívne ponúka na predaj 3 izbový pekný, slnečný a zrekonštruovaný byt aj so zariadením v širšom centre Brezna.
Byt sa nachádza na 1 vyvýšenom poschodí z 10, s výťahom a balkónom,podlahová plocha bytu je 62,5 m2, orientácia na SZ.
Byt je po kompletnej r ...
119 000 €
Brezno
977 01
977 01
305 x
Označiť zlý inzerát Chybnú kategóriu Ohodnotiť užívateľa Zmazať/Upraviť/Topovať
Krásny zariadený byt v novostavbe GEMINI I - Kasárne Brezno - [29.10. 2025]Nové Bývanie realitná kancelária Vám ponúka na predaj krásny 2 izbový byt v novovybudovanej štvrti Kasárne. Nachádza sa na druhom poschodí o rozlohe 51,67 m2..
Byt je úplne nový prešiel rekonštrukciou z pôvodného štandardu, kvalitný nábytok na mieru v celom byte chodba s vešiakovou skriňou, spálen ...
173 970 €
Brezno
977 01
977 01
277 x
Označiť zlý inzerát Chybnú kategóriu Ohodnotiť užívateľa Zmazať/Upraviť/Topovať
Rezervovaný - Krásny 1 izbový byt na predaj ZARIADENIE V CEN - [28.10. 2025]Hľadáte štýlové, komfortné a úplne nové bývanie so skvelou polohou? Ponúkame na predaj úplne nový 1-izbový byt v prestížnej lokalite Brezno - Kasárne.
Tento byt sa nachádza v novostavbe na prvom poschodí v centre, no zároveň nad mestom, čo Vám zaručuje pokojné bývanie s vynikajúcou dostupnosťo ...
Dohodou
Brezno
977 01
977 01
481 x
Označiť zlý inzerát Chybnú kategóriu Ohodnotiť užívateľa Zmazať/Upraviť/Topovať
Predaj 3 izbového bytu Brezno, ul. Nálepkova. - [26.10. 2025]V TeEq Reality v zastúpení majiteľov ponúkame na predaj pekný 3 izbový byt vo vyhľadávanej lokalite - Brezno,Nálepkova ulica.
Byt sa nachádza na 10.poschodí zatepleného bytového domu. Bytový dom prešiel rekonštrukciou vrátane nového priestranného
výťahu, spoločných priestorov a strechy.
Byt je v ...
115 000 €
Brezno
977 01
977 01
522 x
Označiť zlý inzerát Chybnú kategóriu Ohodnotiť užívateľa Zmazať/Upraviť/Topovať
Predaj 3-izbového bytu v Brezne – balkón, pivnica - [26.10. 2025]Predaj 3-izbového bytu v Brezne – balkón, pivnica, výborná lokalita
Ponúkame na predaj priestranný 3-izbový byt nachádzajúci sa v obci Brezno na adrese Nálepkova 1192/9 v pokojnej lokalite v blízkosti centra mesta.
Byt sa nachádza na 10. poschodí a jeho celková výmera je 63 m².
Dispozícia a ...
110 000 €
Brezno
977 01
977 01
568 x
Označiť zlý inzerát Chybnú kategóriu Ohodnotiť užívateľa Zmazať/Upraviť/Topovať
Investičný plne zariadený apartmán v rekreačnom stredisku - [23.10. 2025]Na predaj: Štýlový 2-izbový apartmán v srdci Nízkych Tatier – Tále pod Chopkom
Ponúkame Vám jedinečnú príležitosť stať sa majiteľom komfortného 2-izbového apartmánu v atraktívnej lokalite Tále, priamo pod majestátnym Chopkom. Apartmán sa nachádza na 3. poschodí moderného rekreačného komplexu v uz ...
235 000 €
Brezno
977 01
977 01
335 x
Označiť zlý inzerát Chybnú kategóriu Ohodnotiť užívateľa Zmazať/Upraviť/Topovať
TÁLE, Chopok, Tatry - 2-izbový apartmán s veľkou terasou - [20.10. 2025]Ponúkam na predaj krásny 2 izbový rekreačný byt s veľkou terasou a s celkovou plochou 71 m2 (byt 51,38 + 20 m2 terasa) nachádzajúci sa na 1.nadzemnom podlaží apartmánového domu v Nízkych Tatrách na Táloch na južnej strane Chopku, v uzavretom stráženom areáli, obkolesený ihličnatými lesmi, v blízkost ...
164 000 €
Brezno
977 01
977 01
530 x
Označiť zlý inzerát Chybnú kategóriu Ohodnotiť užívateľa Zmazať/Upraviť/Topovať
PREDANÉ Veľký dvojizbový byt - Brezno, centrum - [16.10. 2025]Ponúkame Vám na predaj pekný veľký dvojizbový byt v centre Brezna. Plocha: úžitková 64 m2.
Tieto typy bytov sú žiadané pre ich vhodné dispozičné riešenie a rozlohu. Byt prešiel rekonštrukciou a to : murované jadro, kúpeľňa so sprchovým kútom, nová sanita, kuchynská linka, plávajúca podlaha, dlažba ...
Dohodou
Brezno
977 01
977 01
411 x
Označiť zlý inzerát Chybnú kategóriu Ohodnotiť užívateľa Zmazať/Upraviť/Topovať
HALO reality - Predaj, trojizbový byt Brezno, Štvrť Ladislav - TOP - [2.11. 2025]Ponúkame exkluzívne na predaj priestranný 3-izbový byt s balkónom a nádherným výhľadom o výmere 75 m2, ktorý sa nachádza na 4. poschodí z 8 v zrekonštruovanom bytovom dome na ulici Štvrť Ladislava Novomeského v Brezne.
Byt je orientovaný na severovýchod a juhozápad, čo mu zabezpečuje dostatok svet ...
135 200 €
Brezno
977 01
977 01
905 x
Označiť zlý inzerát Chybnú kategóriu Ohodnotiť užívateľa Zmazať/Upraviť/Topovať



