Svetlý 2-izbový byt s vlastným parkovaním – Trenčín
- [26.10. 2025]Zmazať/ Upraviť/ Topovať














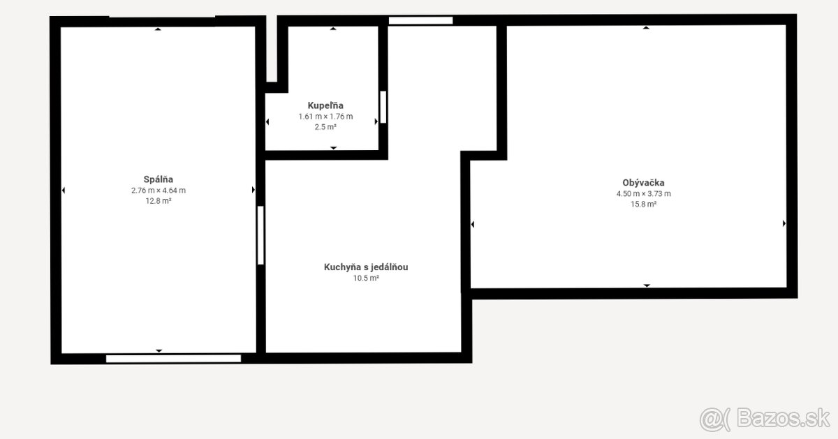
Na najvyššom poschodí štvorpodlažného bytového domu z roku 2012 sa nachádza tento útulný a svetlý 2-izbový byt s výmerou 42 m2, ktorý pôsobí ako čerstvo po rekonštrukcii. Jeho výhodou je vlastné plynové kúrenie – samostatný kotol prináša nielen komfort, ale aj kontrolu nad spotrebou. K bytu patrí balkón s výmerou približne 4 m2, ktorý poskytuje priestor na rannú kávu alebo večerné svetlo mesta, a tiež pivnica s výmerou cca 2 m2.
Byt je súčasťou menšieho bytového domu bez výťahu, na prízemí ktorého sa nachádza polyfunkcia – lekáreň, predaj ovocia a obľúbený kebab. Obyvatelia majú k dispozícii vlastné parkovisko na uzavretom pozemku s rampou, čo v tejto lokalite predstavuje veľké plus – parkovanie bez poplatkov a bez stresu. Navyše je možné dokúpiť parkovacie miesto v podzemnej garáži alebo samostatnú garáž podľa potreby.
Byt je v súčasnosti prepojený s vedľajším 3-izbovým bytom (tiež dostupný na predaj), čím spolu vytvárajú priestranný 5-izbový celok. Pred predajom bude však priečka opäť zamurovaná a byt sa vráti do pôvodnej samostatnej dispozície.
Lokalita je jednou z najžiadanejších – centrálna časť sídliska Juh v Trenčíne, priamo oproti OC Južanka, s kompletnou občianskou vybavenosťou v pešom dosahu. Praktické bývanie pre tých, ktorí hľadajú spojenie pohodlia, dostupnosti a dobrej energie miesta.
Ak hľadáte novú nehnuteľnosť a zároveň potrebujete predať tú svoju, spýtajte sa nás nezáväzne za koľko ju od vás vieme okamžite odkúpiť:
https://riesimebyvanie.sk/vymente-svoje-stare-byvanie/
3D obhliadka: https://my.matterport.com/show/?m=bo5LJYXgR4J
(link je potrebné označiť myšou, kopírovať Ctrl+C, vložiť Ctrl+V do adresového riadku prehliadača a stlačiť ENTER)
RIEŠIME BÝVANIE - realitná kancelária Martina Čapa
realitný maklér - Mgr. Vladimír Gábor, 0903 618 307, gabor@riesimebyvanie.sk
Viac info: https://riesimebyvanie.sk/makler/gabor/
Byt je súčasťou menšieho bytového domu bez výťahu, na prízemí ktorého sa nachádza polyfunkcia – lekáreň, predaj ovocia a obľúbený kebab. Obyvatelia majú k dispozícii vlastné parkovisko na uzavretom pozemku s rampou, čo v tejto lokalite predstavuje veľké plus – parkovanie bez poplatkov a bez stresu. Navyše je možné dokúpiť parkovacie miesto v podzemnej garáži alebo samostatnú garáž podľa potreby.
Byt je v súčasnosti prepojený s vedľajším 3-izbovým bytom (tiež dostupný na predaj), čím spolu vytvárajú priestranný 5-izbový celok. Pred predajom bude však priečka opäť zamurovaná a byt sa vráti do pôvodnej samostatnej dispozície.
Lokalita je jednou z najžiadanejších – centrálna časť sídliska Juh v Trenčíne, priamo oproti OC Južanka, s kompletnou občianskou vybavenosťou v pešom dosahu. Praktické bývanie pre tých, ktorí hľadajú spojenie pohodlia, dostupnosti a dobrej energie miesta.
Ak hľadáte novú nehnuteľnosť a zároveň potrebujete predať tú svoju, spýtajte sa nás nezáväzne za koľko ju od vás vieme okamžite odkúpiť:
https://riesimebyvanie.sk/vymente-svoje-stare-byvanie/
3D obhliadka: https://my.matterport.com/show/?m=bo5LJYXgR4J
(link je potrebné označiť myšou, kopírovať Ctrl+C, vložiť Ctrl+V do adresového riadku prehliadača a stlačiť ENTER)
RIEŠIME BÝVANIE - realitná kancelária Martina Čapa
realitný maklér - Mgr. Vladimír Gábor, 0903 618 307, gabor@riesimebyvanie.sk
Viac info: https://riesimebyvanie.sk/makler/gabor/
|
| |||||||||||||||||||||||||||||||
Kontaktovať inzerenta e-mailom
Kontaktovať e-mailom môže iba overený užívateľ.
Overenie je zadarmo.
Vaše telefónne číslo *
Kontaktovať e-mailom môže iba overený užívateľ.
Overenie je zadarmo.
Vaše telefónne číslo *