Predaj 4-izb. bytu – Šamorín, 123 m² + záhradka, 2x park.
- [26.10. 2025]Zmazať/ Upraviť/ Topovať





























Hľadáte moderné bývanie so súkromím? Ponúkame priestranný 4-izbový byt (123 m²) v kvalitnom štandarde s vlastnou oplotenou záhradkou a 2 parkovacími miestami v cene.
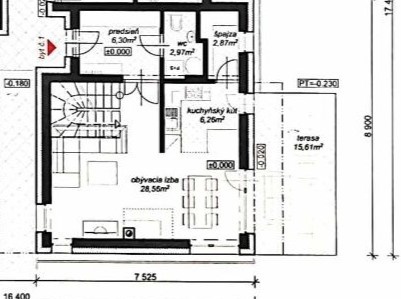
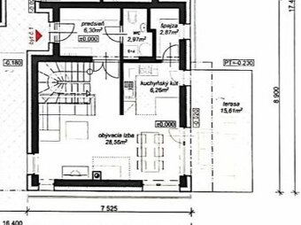
Dispozícia:
Prízemie – obývacia izba s kuchyňou, špajza, vstupná chodba, technická miestnosť + WC.
Poschodie – 3 samostatné spálne (2 s balkónom, 1 s francúzskym), kúpeľňa s vaňou aj sprchou, šatník.
Materiál a vyhotovenie:
- tehla LEIER, zateplenie 20 cm, energetický certifikát A
- plastové okná s elektrickými roletami
- elektrické podlahové kúrenie s termostatom v každej miestnosti
- oplotená záhradka, zámková dlažba, 2 parkovacie miesta
Bonus:
- znalecký posudok v cene
- návrh a vizualizácia kuchynskej linky na mieru
- k dispozícii 3 podobné byty – možnosť výberu
Lokalita: Šamorín – kompletná občianska vybavenosť, športový rezort x-bionic sphere, výborná dostupnosť do BA (23 km).
Cena: 259 500 € vrátane parkovania, posudku a kuchyne
Kontakt: Patrícia Vargová 0904490941
Celý inzerát vrátane virtuálnej obhliadky a videa si môžete pozrieť TU - https://realityds.sk/a/novy-4-izbovy-byt-so-zahradkou-a-parkovanim-na-predaj-bucuhaza-samorin_JuMfGgo4s8N
Dispozícia:
Prízemie – obývacia izba s kuchyňou, špajza, vstupná chodba, technická miestnosť + WC.
Poschodie – 3 samostatné spálne (2 s balkónom, 1 s francúzskym), kúpeľňa s vaňou aj sprchou, šatník.
Materiál a vyhotovenie:
- tehla LEIER, zateplenie 20 cm, energetický certifikát A
- plastové okná s elektrickými roletami
- elektrické podlahové kúrenie s termostatom v každej miestnosti
- oplotená záhradka, zámková dlažba, 2 parkovacie miesta
Bonus:
- znalecký posudok v cene
- návrh a vizualizácia kuchynskej linky na mieru
- k dispozícii 3 podobné byty – možnosť výberu
Lokalita: Šamorín – kompletná občianska vybavenosť, športový rezort x-bionic sphere, výborná dostupnosť do BA (23 km).
Cena: 259 500 € vrátane parkovania, posudku a kuchyne
Kontakt: Patrícia Vargová 0904490941
Celý inzerát vrátane virtuálnej obhliadky a videa si môžete pozrieť TU - https://realityds.sk/a/novy-4-izbovy-byt-so-zahradkou-a-parkovanim-na-predaj-bucuhaza-samorin_JuMfGgo4s8N
|
| |||||||||||||||||||||||||||||||
Kontaktovať inzerenta e-mailom
Kontaktovať e-mailom môže iba overený užívateľ.
Overenie je zadarmo.
Vaše telefónne číslo *
Kontaktovať e-mailom môže iba overený užívateľ.
Overenie je zadarmo.
Vaše telefónne číslo *
Podobné inzeráty
Na predaj pekný 3-izbový byt Šamorín – Rybárska ulica - [14.11. 2025]Ponúkame Vám príjemný 3-izbový byt s výmerou 70 m² nachádzajúci sa na 6. poschodí z 9 v zateplenom bytovom dome na Rybárskej ulici v Šamoríne.
Byt prešiel rekonštrukciou – nové plastové okná, stierky, plávajúce podlahy, dlažby, PVC, kuchynská linka, kúpeľňa so sprchovým kútom a samostatné WC. K b ...
164 800 €
Dunajská Streda
931 01
931 01
26 x
Označiť zlý inzerát Chybnú kategóriu Ohodnotiť užívateľa Zmazať/Upraviť/Topovať
Pinky Real - Štýlový mezonet s potenciálom 4 izieb - Šamorín - [10.11. 2025]Hľadáte moderné bývanie so skvelou polohou a flexibilnou dispozíciou? Tento 3-izbový mezonetový byt v Šamoríne je presne to, čo potrebujete.
‣ celková plocha: 82 m²
‣ dispozícia: 3 izby, možnosť prerobiť na 4 izbový byt
‣ nízke náklady: do 150 € mesačne vďaka vlastnému plynovému kotlu
‣ balkón ...
179 000 €
Dunajská Streda
931 01
931 01
77 x
Označiť zlý inzerát Chybnú kategóriu Ohodnotiť užívateľa Zmazať/Upraviť/Topovať
3 izbový byt v novostavbe Vojka nad Dunajom - [10.11. 2025]Na predaj 3 izbový byt s park. miestom a pivnicou v krásnom prostredí Lužných lesov pri ramene Dunaja v obci Vojka s dostupnosťou 15 minút do mesta Šamorín a 30 minút do mesta Bratislava.
Poschodie: 2/3 – pod bytom sa nachádza prízemný byt.
Celková výmera: 60 m2 + plocha balkóna 3 m2, + pivnic ...
164 900 €
Dunajská Streda
931 01
931 01
76 x
Označiť zlý inzerát Chybnú kategóriu Ohodnotiť užívateľa Zmazať/Upraviť/Topovať
MODERNÉ 4-IZBOVÉ BYTY S VLASTNOU ZÁHRADOU A PARKOVANÍM - [7.11. 2025]Hľadáte bývanie, ktoré spája výhody rodinného domu a bytu? Tento priestranný 4-izbový byt s úžitkovou plochou 123 m² a vlastnou oplotenou záhradkou v kvalitnom ŠTANDARDE vám poskytne súkromie, priestor aj pohodlie, ktoré si vaša rodina zaslúži.
MATERIÁL A VYHOTOVENIE
• Strecha: odľahčená plochá ...
259 500 €
Dunajská Streda
931 01
931 01
2102 x
Označiť zlý inzerát Chybnú kategóriu Ohodnotiť užívateľa Zmazať/Upraviť/Topovať
PREDAJ - priestranný 3-izbový byt s loggiou v Šamoríne, Čili - [2.11. 2025]Typ: 3-izbový byt
Ulica: Čilistovská
Mestská časť: Čilistov
Obec: Šamorín
Ak hľadáte miesto, kde sa budete cítiť ako doma, možno ste ho práve našli :)
Realitná kancelária Xpert Reality ponúka na predaj priestranný, krásne presvetlený 3-izbový byt s výmerou 68 m2 ...
165 000 €
Dunajská Streda
931 01
931 01
529 x
Označiť zlý inzerát Chybnú kategóriu Ohodnotiť užívateľa Zmazať/Upraviť/Topovať
Nestor Capital - Priestranný 4-izbový byt v Šamoríne - [29.10. 2025]Gazdovský Rad, Šamorín, okres Dunajská Streda
Ponúkame na predaj veľký 4-izbový byt nachádzajúci sa v jednej z najvyhľadávanejších častí Šamorína. Byt s úžitkovou plochou 85 m² a loggiou o výmere 3 m² je v pôvodnom stave, čo predstavuje skvelú príležitosť pre tých, ktorí túžia po bývaní vytvorenom ...
164 900 €
Dunajská Streda
931 01
931 01
587 x
Označiť zlý inzerát Chybnú kategóriu Ohodnotiť užívateľa Zmazať/Upraviť/Topovať
Útulný 3 izbový byt na ulici Rybárska, Šamorín- veľká loggia - [22.10. 2025]Exkluzívne Vám ponúkame 3 izbový byt na ulici Rybárska v Šamoríne. Byt sa nachádza na 7.poschodí( z 8.) zatepleného bytového domu, je vo výmere 64m2 plus 4m2 loggia. Dispozičné riešenie je výborné: vstupná chodba, kuchyňa so vstavanými spotrebičmi, priestranná obývacia izba s výstupom na loggiu. Spá ...
165 000 €
Dunajská Streda
931 01
931 01
596 x
Označiť zlý inzerát Chybnú kategóriu Ohodnotiť užívateľa Zmazať/Upraviť/Topovať
Štýlový 2-izbový byt s priestrannou terasou v centre Šamorín - [22.10. 2025]Ponúkame na predaj útulný a vkusne zariadený 2-izbový byt v úplnom centre Šamorína, na Hlavnej ulici. Byt sa nachádza na 3. poschodí trojposchodového tehlového domu bez výťahu (kolaudácia v roku 2007). Na poschodí sa nachádza iba tento jeden byt, čo zaručuje maximálne súkromie a pokoj.
Celková výme ...
225 505 €
Dunajská Streda
931 01
931 01
436 x
Označiť zlý inzerát Chybnú kategóriu Ohodnotiť užívateľa Zmazať/Upraviť/Topovať
VYMEŇ SUSEDA - Výnimočný 4-izbový byt v krásnej tichej loka - TOP - [10.11. 2025]Typ: 4-izbový byt
Obec: Šamorín
Ponúkame na predaj výnimočný 4 izbový byt v jedinečnom koncepte výstavby s tromi jednotkami s vlastným vchodom a záhradou v novo-vybudovanej lokalite, Šamorín časť Bučuháza.
Novostavba je umiestnená priamo na konci ulice, čo poskytu ...
259 500 €
Dunajská Streda
931 01
931 01
543 x
Označiť zlý inzerát Chybnú kategóriu Ohodnotiť užívateľa Zmazať/Upraviť/Topovať
VYMEŇ SUSEDA - Výnimočný 4-izbový byt v krásnej tichej loka - TOP - [29.10. 2025]Typ: 4-izbový byt
Obec: Šamorín
Ponúkame na predaj výnimočný 4 izbový byt v jedinečnom koncepte výstavby s tromi jednotkami s vlastným vchodom a záhradou v novo-vybudovanej lokalite, Šamorín časť Bučuháza.
Novostavba je umiestnená priamo na konci ulice, čo poskytu ...
259 500 €
Dunajská Streda
931 01
931 01
500 x
Označiť zlý inzerát Chybnú kategóriu Ohodnotiť užívateľa Zmazať/Upraviť/Topovať








