HALO reality - Predaj, trojizbový byt Lučenec - EXKLUZÍVNE H
- TOP - [11.11. 2025]Zmazať/ Upraviť/ Topovať














Ponúkame na predaj trojizbový byt 71,6m2 v osobnom vlastníctve.
Nachádza sa na siedmom poschodí z ôsmich bez balkóna ale s výťahom.
Orientácia bytu je západ východ
K bytu prislúcha pivnica na prízemí bytového domu.
Vchod slušný, udržiavaný.
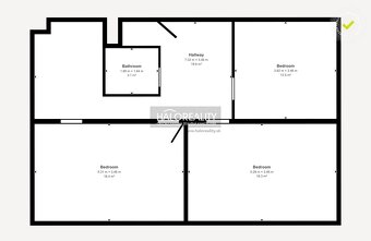
DISPOZÍCIA:
Do bytu sa vchádza cez bezpečnostné dvere do vstupnej chodby s rozlohou 10m2.
Od vstupu do pravá je samostatné WC z rozlohou cca 1,0m2.
Následne je kúpelňa s vaňou s rozlohou cca 3,1m2.
Okolo bytového jadra je vstup do priestrannej kuchyne s orientáciou na západ.
Rozloha kuchyne je cca 9m2m2.
Oproti vstupným dverám troška v pravo je samostatný vstup do obytnej miestnosti, slúžiaca a obývacia miestnosť s orientáciou na západ.
Rozloha miestnosti je 18,4m2.
Z obývacej miestnosti je vstup priamo aj do kuchyne.
Oproti dverám troška vľavo je vstup do obytnej miestnosti s výhľadom na východ s celkovou rozlohou 18,4m2.
Miestnosť slúžila ako spálňa.
Posledná obytná miestnosť úplne na ľavo bola používaná ako pracovňa..
Orientácia je na východ.
Rozloha miestnosti je 12,5m.
V prípade nejasnosti si pozrite moje 3D video.
Môžte sa v ňom pohybovať ako by ste tam priamo boli.
Máte tam viacero funkcii ako je meranie, pôdorys, 3D pôdorys.
Ak vám to nepôjde kľudne ma kontaktujte.
STAV NEHNUTEĽNOSTI:
Bytové jadro je pôvodné, zachovalé.
Kuchyňa na mieru, kuchynská linka zánovná.
Podlahy pôvodne.
V celom byte sú vymenené kvalitné plastové okná.
Prešiel rekonštrukciou.
Okolo bytového domu je dostatok zelene.
Dostatok parkovacích miest.
VÝHODY:
Veľkou výhodou je možnosť prerobiť si ho podľa vlastných predstav.
Dobre dispozične riešený.
Nádherný výhľad.
MESAČNÉ NÁKLADY:
Mesačné náklady cca 140€, plus energie.
Správca stavebné bytové družstvo.
LOKALITA:
Je špecifická, niekto ho vyhľadáva, niekto ho nemusí.
.
Bližšie informácie Vám radi poskytneme na telefónnom čísle 0911 776 676 alebo na janbela@haloreality.sk. ID ponuky: LC-70477.
Cena za nehnuteľnosť je KONEČNÁ, vrátane provízie, právneho servisu zabezpečeného advokátom, poradenstva, základného správneho poplatku na katastri a hypotekárnych služieb (viac na našej webovej stránke).
U NÁS MÁTE ISTOTU: --------------------------------------------------------
- sme JEDNOTKA na SLOVENSKOM REALITNOM TRHU, predávame 1 000 nehnuteľností ročne
- prvotriedny servis a služby po celom Slovensku, predávali sme už viac ako 70 000 NEHNUTEĽNOSTÍ
- na našom webe nájdete už viac ako 5500 recenzií aj s fotkami našich spokojných klientov
- pre vašu bezpečnosť sme nestranná strana pri prevode nehnuteľnosti
- profesionálne obhliadky s pravidelne preškolovanými profesionálnymi maklérmi
- už vo väčšine lokalít robíme aj 3D skeny, videoobhliadky a pôdorysy nehnuteľnosti
- zmluvy garantované právnikom, dohľad nad prevodom nehnuteľnosti podľa zákona
- poradíme vám
|
| |||||||||||||||||||||||||||||||
Kontaktovať inzerenta e-mailom
Kontaktovať e-mailom môže iba overený užívateľ.
Overenie je zadarmo.
Vaše telefónne číslo *
Kontaktovať e-mailom môže iba overený užívateľ.
Overenie je zadarmo.
Vaše telefónne číslo *