HALO reality - Predaj, rodinný dom Rimavská Sobota, Bakta -
- [26.10. 2025]Zmazať/ Upraviť/ Topovať




























Ponúkame na predaj rodinný 4-izbový dom v mestskej časti Rimavskej Soboty - v Bakte (6km od centra RS).
Stavba v inzerovanej cene 144 000€ bude dokončená do štádia HOLODOM.
(nie aktuálne štádium rozostavanej stavby).
Dom je aktuálne vo výstavbe.
Dom bude napojený na obecný vodovod a elektrinu.
Odpad bude riešený septikom, plyn je dosahu (na ceste).
ŠTÁDIUM HOLODOM :
Okná, omietky steny, 2x náter, vnútorné rozvody elektriny bez svietidiel a vypínačov, na podlahe betonový poter, trubky a rozdelovače , predpríprava na tepelné čerpadlo alebo elektrický kotol, zateplenie domu polystyrén 20cm , farba domu podľa výberu.
Pozemok bude bez oplotenia a ďalších úprav.
Pozemok má rozlohu 1504m2, rozmery cca 19x79m, a jeho približné hranice sú vyznačené na fotografiách bielou líniou
Pri kúpe domu na hypotekárny úver sa odkúpi pozemok z vlastných zdrojov kúpujúceho, a stavba v jej aktuálnom stupni rozostavania sa po vypracovaní znaleckého posudku a geometrickom zameraní založí do banky.
Znalecký posudok a geometrické zameranie si hradí a zabezpečuje kupujúci.
Pri kúpe stavby a pozemku na hypotekárny úver je potrebné mať cca 35 000€ pripravených z vlastných zdrojov, v závysloti od štádia rozostavanosti stavby.
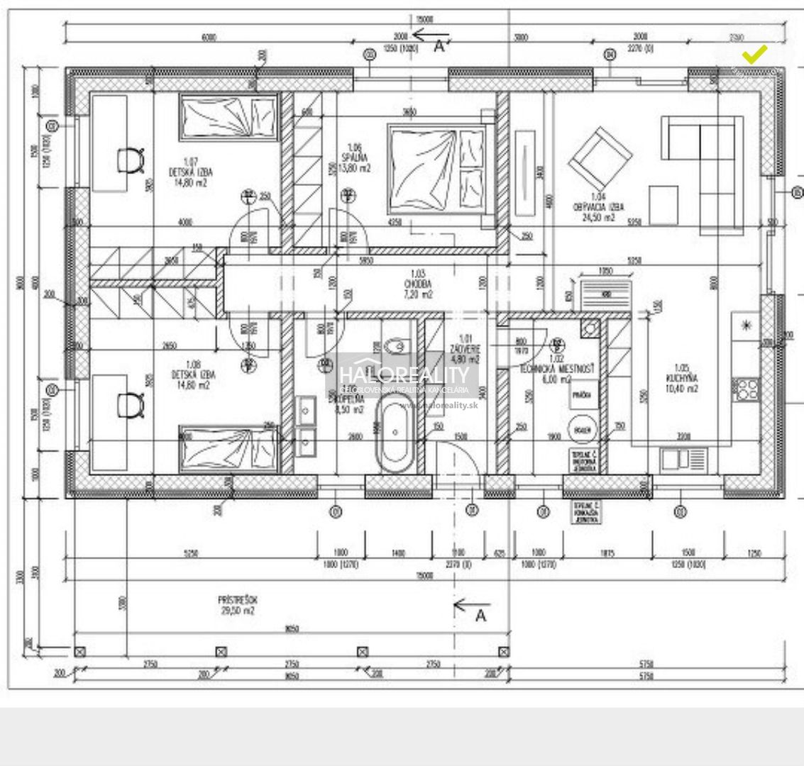
Dispozícia domu :
Vchod / zádverie, chodba, obývacia izba s kuchyňou, 2x detská izba, spálňa, kúpelňa s WC, technická miestnosť.
Zastavaná plocha domu : 125,5m2, úžitková plocha : 104,8m2
Vo fotogalérii sa nachádza 3D vizualizácia domu podľa skutočných rozmerov.
Pri rezervácii stavby je možné za príplatky upraviť vybavenia a príslušenstvo domu podľa vlastných požiadaviek.
Kúrenie - predprírava na tepelné čerpadlo alebo elektrický kotol.
Stavba sa nachádza na rozľahlom slnečnom pozemku v okrajovej tichej časti Bakty - mimo hlavnej cesty.
V prípade záujmu výstavba plotov, prístreškov a ďalších príplatkových stavieb nieje počítaná do doby stavby domu a nieje ani v inzerovanej cene.
Približná vizualizácia je vo fotografiách, vizualizácie, detailný pôdorys a nákres taktiež nájdete medzi fotografiami.
Stavebný materiál použitý na stavbu domu :
Obvodové múry tehla 30cm, priečky porfix 12,5cm , zateplenie polystyrén 20cm, strecha polystyrén 40cm + Fatra For folia.
Okná : 3sklo, 7 komorové Drutex.
.
Bližšie informácie Vám radi poskytneme na telefónnom čísle 0948 128 501 alebo na jansvinciak@haloreality.sk. ID ponuky: RI-66122.
Cena za nehnuteľnosť je KONEČNÁ, vrátane provízie, právneho servisu zabezpečeného advokátom, poradenstva, základného správneho poplatku na katastri a hypotekárnych služieb (viac na našej webovej stránke).
U NÁS MÁTE ISTOTU: --------------------------------------------------------
- sme JEDNOTKA na SLOVENSKOM REALITNOM TRHU, predávame 1 000 nehnuteľností ročne
- prvotriedny servis a služby po celom Slovensku, predávali sme už viac ako 70 000 NEHNUTEĽNOSTÍ
- na našom webe ná
|
| |||||||||||||||||||||||||||||||
Kontaktovať inzerenta e-mailom
Kontaktovať e-mailom môže iba overený užívateľ.
Overenie je zadarmo.
Vaše telefónne číslo *
Kontaktovať e-mailom môže iba overený užívateľ.
Overenie je zadarmo.
Vaše telefónne číslo *







