HALO reality - Predaj, trojizbový byt s pozemkom 200m2, Nová
- [25.10. 2025]Zmazať/ Upraviť/ Topovať


























https://my.vpromo.sk/sk/tour/tdfhb4fhj7
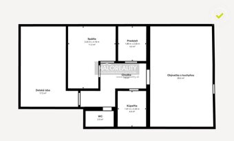
Ponúkame na predaj trojizbový byt v rodinnom dome na Bernolákovej ulici v Novej Dedinke, okr. Senec. Byt s úžitkovou výmerou 77m2 sa nachádza na prízemí.
DISPOZÍCIA:
-vstupná chodba, kuchyňa s jedálenským kútom a obývacou miestnosťou s východom na terasu a záhradu, detská izba, spálňa, kúpeľňa s vaňou a samostatné WC.
STAV NEHNUTEĽNOSTI:
-rodinný dom s dvomi bytovými jednotkami bol skolaudovaný v roku 2020
-postavený z tehál 300 mm, zateplenie 150 mm
-klimatizácia v dennej časti
-okná plastové trojsklo
-na oknách v izbách vonkajšie rolety
-v izbách sú laminátové podlahy, v ostatných miestnostiach kvalitná keramická dlažba
-v izbách sú vstavané skrine
-kvalitná drevená kuchynská linka na mieru so zabudovanými spotrebičmi
-byt je napojený na elektriku a obecnú vodu
-odpad je riešený do žumpy (12m3)
-kúrenie je podlahové elektrické, termostat v každej miestnosti
-ohrev TUV je elektrickým bojlerom so zásobníkom (80l)
Možnosť parkovania pre 4 autá (2 vo dvore a 2 na vlastnom prístupovom pozemku vo výmere 27m2 pred domom).
ZÁHRADA:
-výmera 173 m2
-prístrešok 20m2
-studňa 12m
VÝHODY:
-novovybudovaná lokalita
-bývanie na konci ulice
MESAČNÉ NÁKLADY:
-elektrika 105 €
-voda cca 10 €
LOKALITA:
-v blízkosti sa nachádza materská a základná škola, zdravotné stredisko s lekárom pre deti a dospelých, stomatológ, lekáreň, pošta, základná umelecká škola, kultúrny dom, obchody s potravinami, detské ihriská, autobusová stanica, železničná stanica 5 min autom.
Obec Nová Dedinka sa nachádza cca 25 kilometrov od Bratislavy a 6 km od okresného mesta Senec.
.
Bližšie informácie Vám radi poskytneme na telefónnom čísle 0944 936 425 alebo na tatjanacapanda@haloreality.sk. ID ponuky: SC-70826.
Cena za nehnuteľnosť je KONEČNÁ, vrátane provízie, právneho servisu zabezpečeného advokátom, poradenstva, základného správneho poplatku na katastri a hypotekárnych služieb (viac na našej webovej stránke).
U NÁS MÁTE ISTOTU: --------------------------------------------------------
- sme JEDNOTKA na SLOVENSKOM REALITNOM TRHU, predávame 1 000 nehnuteľností ročne
- prvotriedny servis a služby po celom Slovensku, predávali sme už viac ako 70 000 NEHNUTEĽNOSTÍ
- na našom webe nájdete už viac ako 5500 recenzií aj s fotkami našich spokojných klientov
- pre vašu bezpečnosť sme nestranná strana pri prevode nehnuteľnosti
- profesionálne obhliadky s pravidelne preškolovanými profesionálnymi maklérmi
- už vo väčšine lokalít robíme aj 3D skeny, videoobhliadky a pôdorysy nehnuteľnosti
- zmluvy garantované právnikom, dohľad nad prevodom nehnuteľnosti podľa zákona
- poradíme vám ako najlepšie predať/kúpiť nehnuteľnosť
- bezplatné hypotekárne služby našich partnerov
- sme členom ZDRUŽENIA REALITNÝCH KANCELÁRIÍ SLOVENSKA - ZRKS
---------------------------------------------------
Ponúkame na predaj trojizbový byt v rodinnom dome na Bernolákovej ulici v Novej Dedinke, okr. Senec. Byt s úžitkovou výmerou 77m2 sa nachádza na prízemí.
DISPOZÍCIA:
-vstupná chodba, kuchyňa s jedálenským kútom a obývacou miestnosťou s východom na terasu a záhradu, detská izba, spálňa, kúpeľňa s vaňou a samostatné WC.
STAV NEHNUTEĽNOSTI:
-rodinný dom s dvomi bytovými jednotkami bol skolaudovaný v roku 2020
-postavený z tehál 300 mm, zateplenie 150 mm
-klimatizácia v dennej časti
-okná plastové trojsklo
-na oknách v izbách vonkajšie rolety
-v izbách sú laminátové podlahy, v ostatných miestnostiach kvalitná keramická dlažba
-v izbách sú vstavané skrine
-kvalitná drevená kuchynská linka na mieru so zabudovanými spotrebičmi
-byt je napojený na elektriku a obecnú vodu
-odpad je riešený do žumpy (12m3)
-kúrenie je podlahové elektrické, termostat v každej miestnosti
-ohrev TUV je elektrickým bojlerom so zásobníkom (80l)
Možnosť parkovania pre 4 autá (2 vo dvore a 2 na vlastnom prístupovom pozemku vo výmere 27m2 pred domom).
ZÁHRADA:
-výmera 173 m2
-prístrešok 20m2
-studňa 12m
VÝHODY:
-novovybudovaná lokalita
-bývanie na konci ulice
MESAČNÉ NÁKLADY:
-elektrika 105 €
-voda cca 10 €
LOKALITA:
-v blízkosti sa nachádza materská a základná škola, zdravotné stredisko s lekárom pre deti a dospelých, stomatológ, lekáreň, pošta, základná umelecká škola, kultúrny dom, obchody s potravinami, detské ihriská, autobusová stanica, železničná stanica 5 min autom.
Obec Nová Dedinka sa nachádza cca 25 kilometrov od Bratislavy a 6 km od okresného mesta Senec.
.
Bližšie informácie Vám radi poskytneme na telefónnom čísle 0944 936 425 alebo na tatjanacapanda@haloreality.sk. ID ponuky: SC-70826.
Cena za nehnuteľnosť je KONEČNÁ, vrátane provízie, právneho servisu zabezpečeného advokátom, poradenstva, základného správneho poplatku na katastri a hypotekárnych služieb (viac na našej webovej stránke).
U NÁS MÁTE ISTOTU: --------------------------------------------------------
- sme JEDNOTKA na SLOVENSKOM REALITNOM TRHU, predávame 1 000 nehnuteľností ročne
- prvotriedny servis a služby po celom Slovensku, predávali sme už viac ako 70 000 NEHNUTEĽNOSTÍ
- na našom webe nájdete už viac ako 5500 recenzií aj s fotkami našich spokojných klientov
- pre vašu bezpečnosť sme nestranná strana pri prevode nehnuteľnosti
- profesionálne obhliadky s pravidelne preškolovanými profesionálnymi maklérmi
- už vo väčšine lokalít robíme aj 3D skeny, videoobhliadky a pôdorysy nehnuteľnosti
- zmluvy garantované právnikom, dohľad nad prevodom nehnuteľnosti podľa zákona
- poradíme vám ako najlepšie predať/kúpiť nehnuteľnosť
- bezplatné hypotekárne služby našich partnerov
- sme členom ZDRUŽENIA REALITNÝCH KANCELÁRIÍ SLOVENSKA - ZRKS
---------------------------------------------------
|
| |||||||||||||||||||||||||||||||
Kontaktovať inzerenta e-mailom
Kontaktovať e-mailom môže iba overený užívateľ.
Overenie je zadarmo.
Vaše telefónne číslo *
Kontaktovať e-mailom môže iba overený užívateľ.
Overenie je zadarmo.
Vaše telefónne číslo *





