Predaj-stavebný pozemok Detva Piešť II
- [24.10. 2025]Zmazať/ Upraviť/ Topovať








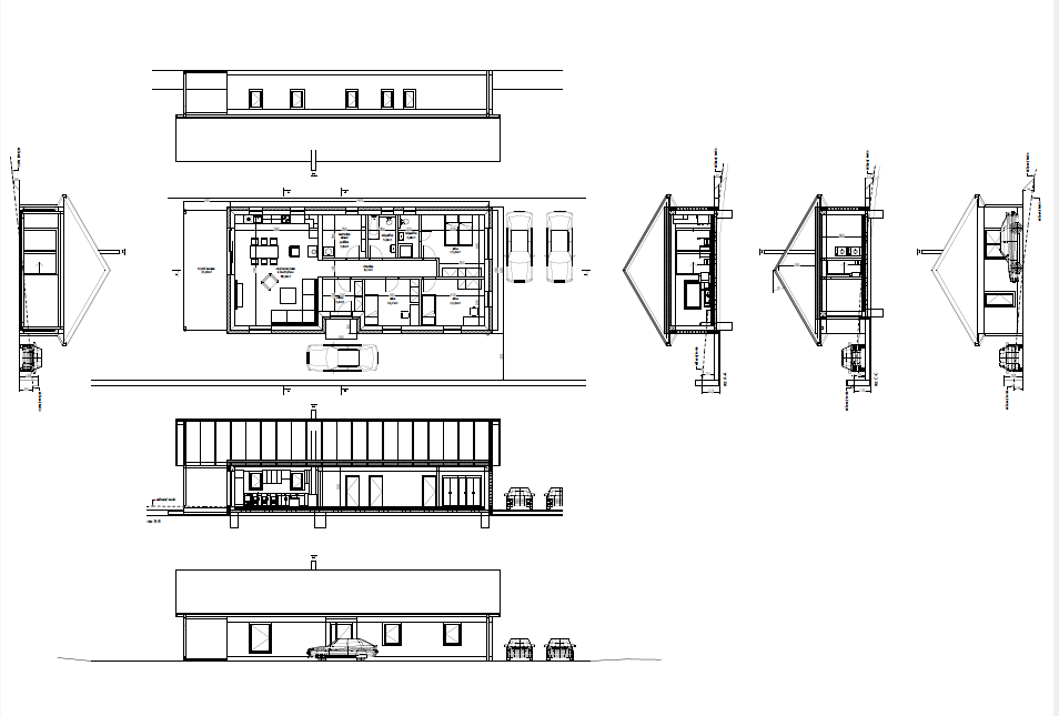
Predám stavebný pozemok o výmere 1600m2. Nachádza sa v Detve-Piešť II, 10m od autobusovej zastávky-odbočka k ústavu ss. Na pozemku je schválená stavba rodinného domu typu prízemný bungalov s podlahovou plochou 107m2 - platné stavebné povolenie. Cez pozemok prechádza obecný vodovod, bod pripojenia na elektriku je 15m od hranice pozemku. Bližšie informácie podám telefonicky. Prosím realitných maklérov, aby ma nekontaktovali.
|
| |||||||||||||||||||||||||||||||
Kontaktovať inzerenta e-mailom
Kontaktovať e-mailom môže iba overený užívateľ.
Overenie je zadarmo.
Vaše telefónne číslo *
Kontaktovať e-mailom môže iba overený užívateľ.
Overenie je zadarmo.
Vaše telefónne číslo *