INVESTIČNÝ 1izbový byt S BALKÓNOM A NÁJOMCOM - REZIDENCIA HL
- TOP - [27.10. 2025]Zmazať/ Upraviť/ Topovať






























REWIN reality Vám EXKLUZÍVNE ponúka INVESTIČNÝ 1-IZBOVÝ BYT S BALKÓNOM A NÁJOMCOM v projekte REZIDENCIA HLINY
CENA PLATÍ PRE ŠTANDARDNÉ VYHOTOVENIE, NIŽŠIE OPIS ŠTANDARDU.
LIMITOVANÁ PONUKA: Využite možnosť zakúpenia bytu s nájomcom. Bez starosti s hľadaním nájomcu, stabilný mesačný príjem z prenájmu od prvého dňa. Informujte sa viac o tejto ponuke u predajcu.
Základné parametre:
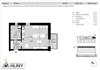
• Výmera bytu: 41,27 m²
• Dispozícia: 1-izbový byt s praktickou dispozíciou
• Balkón: 3,80 m²
• Pivnica: 1,12 m² priamo na poschodí
• Stav: novostavba – projekt REZIDENCIA HLINY, skolaudovaný v roku 2025
• Energetický štandard: A0 – primárna energia
• Byt sa predáva s nájomcom – okamžitý výnos od prvého dňa vlastníctva
• Virtuálna obhliadka, pôdorys a fotogaléria: dostupné na vyžiadanie
Prečo je tento byt ideálny ako investícia?
Už prenajatý – garantovaný výnos bez potreby hľadania nájomcu
Novostavba s nadštandardným technickým riešením:
- predpríprava na klimatizáciu, externé rolety a smart domácnosť
- pasívna rekuperácia na vetranie
- 6-komorové okná s izolačným trojsklom
- bezpečnostné viacbodové dvere
- Komfortné bývanie v projekte s vlastným supermarketom Billa a lekárňou Benu
- Možnosť kúpy v štandarde, holobyte alebo kompletne zariadený cez partnera projektu
Lokalita – Nová Dubnica
Rezidencia Hliny sa nachádza v modernej a rýchlo sa rozvíjajúcej časti mesta Nová Dubnica. Lokalita ponúka kompletnú občiansku vybavenosť – potraviny, reštaurácie, kino, športoviská, kúpalisko aj krytú plaváreň. V blízkosti sú tiež obchodné reťazce LIDL, Coop Jednota, Tesco či známa zmrzlina Velice.
Výborná dopravná dostupnosť:
- pešia dostupnosť do centra Novej Dubnice
- 5 min. napojenie na diaľnicu D1
- 15 min. do Trenčína, 5 min. do Dubnice nad Váhom
V prípade záujmu o viac informácií alebo obhliadku ma neváhajte kontaktovať aj počas víkendov na tel.č.: 0914 345 313
Cena: od 114.980 € s DPH
Aj vďaka našej novej službe dokážete kúpiť novú nehnuteľnosť skôr, ako predáte tú svoju. Zistite viac informácií u makléra.
Obytná plocha: 41.27m²
Úžitková plocha: 41.27m²
Stav: úplne prerobený
Postavené z: tehla
Energetický certifikát: A
CENA PLATÍ PRE ŠTANDARDNÉ VYHOTOVENIE, NIŽŠIE OPIS ŠTANDARDU.
LIMITOVANÁ PONUKA: Využite možnosť zakúpenia bytu s nájomcom. Bez starosti s hľadaním nájomcu, stabilný mesačný príjem z prenájmu od prvého dňa. Informujte sa viac o tejto ponuke u predajcu.
Základné parametre:
• Výmera bytu: 41,27 m²
• Dispozícia: 1-izbový byt s praktickou dispozíciou
• Balkón: 3,80 m²
• Pivnica: 1,12 m² priamo na poschodí
• Stav: novostavba – projekt REZIDENCIA HLINY, skolaudovaný v roku 2025
• Energetický štandard: A0 – primárna energia
• Byt sa predáva s nájomcom – okamžitý výnos od prvého dňa vlastníctva
• Virtuálna obhliadka, pôdorys a fotogaléria: dostupné na vyžiadanie
Prečo je tento byt ideálny ako investícia?
Už prenajatý – garantovaný výnos bez potreby hľadania nájomcu
Novostavba s nadštandardným technickým riešením:
- predpríprava na klimatizáciu, externé rolety a smart domácnosť
- pasívna rekuperácia na vetranie
- 6-komorové okná s izolačným trojsklom
- bezpečnostné viacbodové dvere
- Komfortné bývanie v projekte s vlastným supermarketom Billa a lekárňou Benu
- Možnosť kúpy v štandarde, holobyte alebo kompletne zariadený cez partnera projektu
Lokalita – Nová Dubnica
Rezidencia Hliny sa nachádza v modernej a rýchlo sa rozvíjajúcej časti mesta Nová Dubnica. Lokalita ponúka kompletnú občiansku vybavenosť – potraviny, reštaurácie, kino, športoviská, kúpalisko aj krytú plaváreň. V blízkosti sú tiež obchodné reťazce LIDL, Coop Jednota, Tesco či známa zmrzlina Velice.
Výborná dopravná dostupnosť:
- pešia dostupnosť do centra Novej Dubnice
- 5 min. napojenie na diaľnicu D1
- 15 min. do Trenčína, 5 min. do Dubnice nad Váhom
V prípade záujmu o viac informácií alebo obhliadku ma neváhajte kontaktovať aj počas víkendov na tel.č.: 0914 345 313
Cena: od 114.980 € s DPH
Aj vďaka našej novej službe dokážete kúpiť novú nehnuteľnosť skôr, ako predáte tú svoju. Zistite viac informácií u makléra.
Obytná plocha: 41.27m²
Úžitková plocha: 41.27m²
Stav: úplne prerobený
Postavené z: tehla
Energetický certifikát: A
|
| |||||||||||||||||||||||||||||||
Kontaktovať inzerenta e-mailom
Kontaktovať e-mailom môže iba overený užívateľ.
Overenie je zadarmo.
Vaše telefónne číslo *
Kontaktovať e-mailom môže iba overený užívateľ.
Overenie je zadarmo.
Vaše telefónne číslo *









