Šikovný pozemok pod Lesom v obci Staré
- [24.10. 2025]Zmazať/ Upraviť/ Topovať








REALITY HOUSE Vám ponúka:
- šikovný pozemok v peknej obci Staré, v obci obklopenej Lesom
- parcela má 1200 m2, predná šírka pozemku 12m
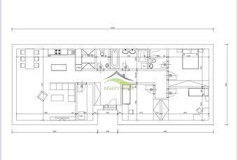
- v inzeráte je pôdorys plánovaného domu o šírke 8m
- inžinierske siete sú priamo na hranici pozemku
verejný vodovod, elektrina aj plyn.
- kanalizácia v obci nie je
- prístup na pozemok je priamo z asfaltovej cesty
- pozemok je vedený na liste vlastníctva ako zastavaná plocha a záhrada
CENA: v RK
Ak hľadáte pozemok pre svoje bývanie v peknom
prostredí, je to pozemok ideálny pre Vás.
V obci sa nachádza materská škola, potraviny a pošta a blízko obce je mesto Strážske 4 km a
tiež Michalovce.
V cene sú zahrnuté kompletné realitné a právne služby spojené s
kúpou nehnuteľnosti.
Obhliadka je možná kedykoľvek, zavolajte na č. 0915377087
Kontakt:
REALITY HOUSE
MICHALOVCE
Štefánikova 10
0915 377 087
makler1@realityhouse.sk
Rozloha pozemku: 1200m²
El. napätie: 230V
Plyn: áno
Kanalizácia: nie
Terén: rovina
- šikovný pozemok v peknej obci Staré, v obci obklopenej Lesom
- parcela má 1200 m2, predná šírka pozemku 12m
- v inzeráte je pôdorys plánovaného domu o šírke 8m
- inžinierske siete sú priamo na hranici pozemku
verejný vodovod, elektrina aj plyn.
- kanalizácia v obci nie je
- prístup na pozemok je priamo z asfaltovej cesty
- pozemok je vedený na liste vlastníctva ako zastavaná plocha a záhrada
CENA: v RK
Ak hľadáte pozemok pre svoje bývanie v peknom
prostredí, je to pozemok ideálny pre Vás.
V obci sa nachádza materská škola, potraviny a pošta a blízko obce je mesto Strážske 4 km a
tiež Michalovce.
V cene sú zahrnuté kompletné realitné a právne služby spojené s
kúpou nehnuteľnosti.
Obhliadka je možná kedykoľvek, zavolajte na č. 0915377087
Kontakt:
REALITY HOUSE
MICHALOVCE
Štefánikova 10
0915 377 087
makler1@realityhouse.sk
Rozloha pozemku: 1200m²
El. napätie: 230V
Plyn: áno
Kanalizácia: nie
Terén: rovina
|
| |||||||||||||||||||||||||||||||
Kontaktovať inzerenta e-mailom
Kontaktovať e-mailom môže iba overený užívateľ.
Overenie je zadarmo.
Vaše telefónne číslo *
Kontaktovať e-mailom môže iba overený užívateľ.
Overenie je zadarmo.
Vaše telefónne číslo *