4-izbový byt blízko centra
- [24.10. 2025]Zmazať/ Upraviť/ Topovať

























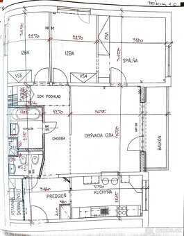
Ponúkame Vám na predaj pekný slnečný 4 – izbový byt s balkónom v Trenčíne, s výhľadom na Trenčiansky hrad. Nachádza sa vo vyhľadávanej mestskej štvrti Kvetná. Byt v osobnom vlastníctve, panel, na 6.p./ 7.p., o výmere 76,87 m2. Byt prešiel v roku 2010 rekonštrukciou. Kuchyňa nová kuchynská linka – umývačka riadu, elektrický sporák, elektrická varná doska na 400V, digestor, podlaha dlažba. Kuchyňa prepojená s obývacou izbou otvorom – možnosť využitia ako pult. Obývacia izba priestranná, podlaha koberec. Z izby vstup na balkón – dlažba, elektrická zásuvka. Spálňa, dve detské izby so vstavanými skriňami, podlahy koberec, jedna detská izba plávajúca podlaha. Na chodbe vstavaná skriňa, podlaha dlažba. Za kúpeľňou menší šatník. Jadro murované. Kúpeľňa vaňa. WC samostatné, s bidetom. V celom byte plastové okná, merače tepla, bezpečnostné dvere, nová elektroinštalácia – v kuchyni, kúpeľni, WC, chodbe a obývacej izbe, do bytu dovedené 400 V, plyn momentálne odpojený ( v prípade záujmu možnosť pripojenia). K bytu patrí aj pivnica o výmere 2,6m. V suteréne domu sa nachádza aj bicykláreň a miestnosť využívaná na cvičenie ( fitness). Bytový dom kolaudovaný v roku 1982, zateplený, výťah. V roku 2022 vymenené stupačky ( nerez), nové vchodové dvere. Momentálne schválená ďalšia obnova bytového domu – strecha, balkóny, výťah a vonkajšie schody. Predpokladaný termín v roku 2026. Vykurovanie centrálne plynové. Energetický certifikát bytový dom nemá. Byt bude k dispozícii v priebehu augusta 2025. V blízkom okolí domu sa nachádza kompletná občianska vybavenosť – základná škola, materská škola, stredné školy, detské ihrisko, obchody, pošta. Kontakt Pavol Kosík, tel. 0917 430 673, email: kosik@mojebyvanie.net
|
| |||||||||||||||||||||||||||||||
Kontaktovať inzerenta e-mailom
Kontaktovať e-mailom môže iba overený užívateľ.
Overenie je zadarmo.
Vaše telefónne číslo *
Kontaktovať e-mailom môže iba overený užívateľ.
Overenie je zadarmo.
Vaše telefónne číslo *




