RADO |Investičná príležitosť pre developera | Vrakuňa Hrušov
- [23.10. 2025]Zmazať/ Upraviť/ Topovať






























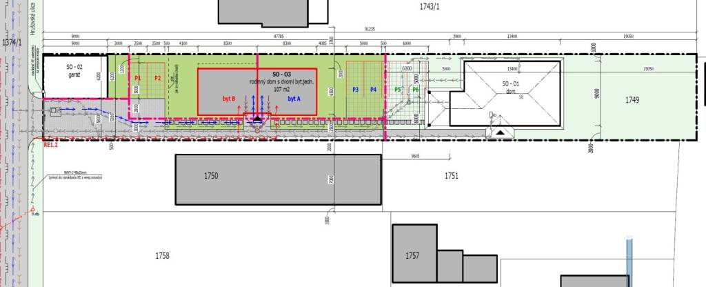
NA PREDAJ PROJEKT DVOJDOMU spolu s už existujúcim 4 izbovým domom (114 m²) a samostatnou dvojgarážou (55 m²)na veľkom pozemku o výmere 1 083 m² v mestskej časti Bratislava – Hrušov.
Investičná príležitosť pre developera– veľký pozemok s rodinným domom a projektom na výstavbu dvojdomu
Investičný potenciál tejto nehnuteľnosti :
- PROJKET na nový DVOJDOM s úžitkovou plochou spolu180 m²
- vydané ÚZEMNÉ ROZHODNUTIE
- vďaka napojeniu na kompletné inžinierske siete (okrem plynu) je pozemok pripravený na okamžitú realizáciu
- Tichá mestská lokalita s dobrou dostupnosťou a stabilnou dopytovou cenou za novostavby
Vhodné využitie:
- investícia s okamžitým výnosom – prenájom existujúceho domu počas výstavby
- rezidenčný projekt s vlastným zázemím
Lokalita Hrušov – Vrakuňa:
- pokojná mestská časť s charakterom vidieckej zástavby
- výborná dostupnosť do centra Bratislavy aj na diaľničný obchvat
- v blízkosti plánovaných rozvojových zón
- ideálne prostredie pre rezidenčné projekty s dôrazom na súkromie a zeleň
Kolaudácia existujúceho domu prebehla v roku 2014 – nehnuteľnosť je v dobrom technickom stave, okamžite obývateľná alebo vhodná ako zázemie pre realizáciu nového projektu.
Hlavné parametre existujúceho domu:
-Pozemok: 1 083 m² (rovinatý, prístup cez elektrickú bránu)
-Rodinný dom: 114 m², tepelné čerpadlo, všetky IS okrem plynu
-Dvojgaráž: 55 m²
-Kolaudácia: 2014
- 4 izby + Kuchyňa, dve kúpeľne
Cena: 759 000 € za celok.
V prípade záujmu o detailnejšie informácie alebo obhliadku pozemku ma neváhajte kontaktovať:
Mário Baláž
RADO Reality Group
Tel.: +421 907 750 421
E-mail: balaz@radoreality.sk
Uvedená cena je konečná, pokiaľ sa zmluvné strany nedohodnú inak a nenavyšuje sa o odmenu sprostredkovateľa, v cene je zahrnuté právne poradenstvo, vyhotovenie kúpnych zmlúv, hypotekárne poradenstvo a uhradenie správneho poplatku za návrh na vklad do katastra nehnuteľností.
RADO Reality Group je ocenená Realitnou úniou ako najlepšia realitná kancelária na Slovensku za rok 2022. Okrem iného sme držiteľmi ďalších 6 prestížnych ocenení.
Zastavaná plocha: 345m²
Obytná plocha: 294m²
Rozloha pozemku: 1083m²
Úžitková plocha: 294m²
Vlastníctvo: osobné
Odvoz odpadu: áno
Voda: studňa a vodovod
El. napätie: 230/400V
Plyn: nie
Kanalizácia: áno
Internet: optika
Kúpeľňa: vaňa a sprchovací kút
Vykurovanie: vlastné - elektrické
Terasa: áno
Garáž: áno - 2 autá
Inžinierske siete: áno
Postavené z: tehla
Zariadenie: zariadený
Zateplený objekt: áno
Krb: nie
Káblová televízia: áno
Energetický certifikát: nie
Predzáhradka: neuvedené
Bezbariérový prístup : áno
Okná: plastové
Terén: rovina
Pripravené na výstavbu: vydané územné rozhodnutie
Investičná príležitosť pre developera– veľký pozemok s rodinným domom a projektom na výstavbu dvojdomu
Investičný potenciál tejto nehnuteľnosti :
- PROJKET na nový DVOJDOM s úžitkovou plochou spolu180 m²
- vydané ÚZEMNÉ ROZHODNUTIE
- vďaka napojeniu na kompletné inžinierske siete (okrem plynu) je pozemok pripravený na okamžitú realizáciu
- Tichá mestská lokalita s dobrou dostupnosťou a stabilnou dopytovou cenou za novostavby
Vhodné využitie:
- investícia s okamžitým výnosom – prenájom existujúceho domu počas výstavby
- rezidenčný projekt s vlastným zázemím
Lokalita Hrušov – Vrakuňa:
- pokojná mestská časť s charakterom vidieckej zástavby
- výborná dostupnosť do centra Bratislavy aj na diaľničný obchvat
- v blízkosti plánovaných rozvojových zón
- ideálne prostredie pre rezidenčné projekty s dôrazom na súkromie a zeleň
Kolaudácia existujúceho domu prebehla v roku 2014 – nehnuteľnosť je v dobrom technickom stave, okamžite obývateľná alebo vhodná ako zázemie pre realizáciu nového projektu.
Hlavné parametre existujúceho domu:
-Pozemok: 1 083 m² (rovinatý, prístup cez elektrickú bránu)
-Rodinný dom: 114 m², tepelné čerpadlo, všetky IS okrem plynu
-Dvojgaráž: 55 m²
-Kolaudácia: 2014
- 4 izby + Kuchyňa, dve kúpeľne
Cena: 759 000 € za celok.
V prípade záujmu o detailnejšie informácie alebo obhliadku pozemku ma neváhajte kontaktovať:
Mário Baláž
RADO Reality Group
Tel.: +421 907 750 421
E-mail: balaz@radoreality.sk
Uvedená cena je konečná, pokiaľ sa zmluvné strany nedohodnú inak a nenavyšuje sa o odmenu sprostredkovateľa, v cene je zahrnuté právne poradenstvo, vyhotovenie kúpnych zmlúv, hypotekárne poradenstvo a uhradenie správneho poplatku za návrh na vklad do katastra nehnuteľností.
RADO Reality Group je ocenená Realitnou úniou ako najlepšia realitná kancelária na Slovensku za rok 2022. Okrem iného sme držiteľmi ďalších 6 prestížnych ocenení.
Zastavaná plocha: 345m²
Obytná plocha: 294m²
Rozloha pozemku: 1083m²
Úžitková plocha: 294m²
Vlastníctvo: osobné
Odvoz odpadu: áno
Voda: studňa a vodovod
El. napätie: 230/400V
Plyn: nie
Kanalizácia: áno
Internet: optika
Kúpeľňa: vaňa a sprchovací kút
Vykurovanie: vlastné - elektrické
Terasa: áno
Garáž: áno - 2 autá
Inžinierske siete: áno
Postavené z: tehla
Zariadenie: zariadený
Zateplený objekt: áno
Krb: nie
Káblová televízia: áno
Energetický certifikát: nie
Predzáhradka: neuvedené
Bezbariérový prístup : áno
Okná: plastové
Terén: rovina
Pripravené na výstavbu: vydané územné rozhodnutie
|
| |||||||||||||||||||||||||||||||
Kontaktovať inzerenta e-mailom
Kontaktovať e-mailom môže iba overený užívateľ.
Overenie je zadarmo.
Vaše telefónne číslo *
Kontaktovať e-mailom môže iba overený užívateľ.
Overenie je zadarmo.
Vaše telefónne číslo *









