2-PODLAŽNÝ DOM S POZEMKOM V PEKNOM PROSTREDÍ
- [23.10. 2025]Zmazať/ Upraviť/ Topovať




















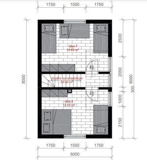
Realitná kancelária REG4U Vám ponúka na PREDAJ novostavby dvojpodlažných rekreačných domov v tichej, rezidenčnej lokalite - osada JELENIA LÚKA v obci Streženice, okres Púchov. V súkromnom, oplotenom, rozľahlom, rekreačnom areáli, výstavba ktorého už prebieha sa bude nachádzať 7 domov, ktoré svojím nadštandardným vyhotovením a umiestnením v sebe spájajú možnosti rekreácie, chalupárčenia aj záhradkárčenia s možnosťou celoročného bývania.
Video obhliadka tu: https://youtu.be/tYNX8mImjME
Rekreačné domy sú umiestnené na menších rovinatých pozemkoch o výmere:
RD 1: rozloha pozemku 367 m2 - PREDANÝ
RD 2: rozloha pozemku 367 m2 - VYHOTOVENÁ HRUBÁ STAVBA
RD 3: rozloha pozemku 368 m2 - VYHOTOVENÁ ZÁKLADOVÁ DOSKA
RD 4: rozloha pozemku 368 m2
RD 5: rozloha pozemku 369 m2
RD 6: rozloha pozemku 367 m2
RD 7: rozloha pozemku 348 m2
HRUBÁ STAVBA OBSAHUJE:
vytýčenie geodetom
založenie stavby – základy vrátane výstuže, ležatej kanalizácie, uzemnenia stavby, hydroizolácie
prípojky vody, elektriky a internetu privedené k pozemku
murivo – obvodové nosné murivo - tvárnice YTONG
nenosné murivo – tvárnice YTONG, preklady, vencový systém, stropná doska železobetónová
strecha – drevený tesársky krov, krytina lakoplastový falcovaný plech, klampiarske prvky
HRUBÚ STAVBU JE MOŽNÉ PO DOHODE DOKONČIŤ DO ŠTÁDIA HOLODOMU.
Cena novostavby RD vrátane pozemku a prístupovej cesty:
HRUBÁ STAVBA: 139 900,- €
HOLODOM: 169 900,- €
VÝHODY PONUKY:
rovinatý, slnečný pozemok s výhľadmi na okolitú prírodu
podiel na spoločnej prístupovej ceste
útulný, presvetlený obytný priestor s výbornou dispozíciou
príjemná, romantická klíma zabezpečená zdravým, sálavým teplom z krbu
z obývacej izby výstup na terasu
napojenie na obecný vodovod
parkovacie miesto pre 2 autá ku každému domčeku
zabezpečená aj parkovacia politika pre návštevy rezidentov - externé parkovacie miesta v areáli
oplotený pozemok rezidencie so vstupnou hlavnou bránou
Call centrum: 0911 175 510
Video obhliadka tu: https://youtu.be/tYNX8mImjME
Rekreačné domy sú umiestnené na menších rovinatých pozemkoch o výmere:
RD 1: rozloha pozemku 367 m2 - PREDANÝ
RD 2: rozloha pozemku 367 m2 - VYHOTOVENÁ HRUBÁ STAVBA
RD 3: rozloha pozemku 368 m2 - VYHOTOVENÁ ZÁKLADOVÁ DOSKA
RD 4: rozloha pozemku 368 m2
RD 5: rozloha pozemku 369 m2
RD 6: rozloha pozemku 367 m2
RD 7: rozloha pozemku 348 m2
HRUBÁ STAVBA OBSAHUJE:
vytýčenie geodetom
založenie stavby – základy vrátane výstuže, ležatej kanalizácie, uzemnenia stavby, hydroizolácie
prípojky vody, elektriky a internetu privedené k pozemku
murivo – obvodové nosné murivo - tvárnice YTONG
nenosné murivo – tvárnice YTONG, preklady, vencový systém, stropná doska železobetónová
strecha – drevený tesársky krov, krytina lakoplastový falcovaný plech, klampiarske prvky
HRUBÚ STAVBU JE MOŽNÉ PO DOHODE DOKONČIŤ DO ŠTÁDIA HOLODOMU.
Cena novostavby RD vrátane pozemku a prístupovej cesty:
HRUBÁ STAVBA: 139 900,- €
HOLODOM: 169 900,- €
VÝHODY PONUKY:
rovinatý, slnečný pozemok s výhľadmi na okolitú prírodu
podiel na spoločnej prístupovej ceste
útulný, presvetlený obytný priestor s výbornou dispozíciou
príjemná, romantická klíma zabezpečená zdravým, sálavým teplom z krbu
z obývacej izby výstup na terasu
napojenie na obecný vodovod
parkovacie miesto pre 2 autá ku každému domčeku
zabezpečená aj parkovacia politika pre návštevy rezidentov - externé parkovacie miesta v areáli
oplotený pozemok rezidencie so vstupnou hlavnou bránou
Call centrum: 0911 175 510
|
| |||||||||||||||||||||||||||||||
Kontaktovať inzerenta e-mailom
Kontaktovať e-mailom môže iba overený užívateľ.
Overenie je zadarmo.
Vaše telefónne číslo *
Kontaktovať e-mailom môže iba overený užívateľ.
Overenie je zadarmo.
Vaše telefónne číslo *