Pozemok v centre mesta
- [23.10. 2025]Zmazať/ Upraviť/ Topovať





















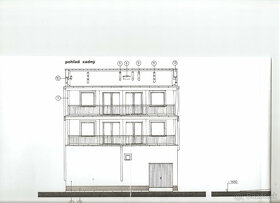
Ponúkam rozostavaný polyfunkčný dom s pôdorysom 22m x 12m na pozemku s rozlohou 504m2, ktorý sa nachádza v EXTRA zóne centra Nových Zámkov, na Ulici Michalská Bašta, pod vodojemom. Stavba má plánovanú podlažnosť: pivnica (skladové priestory), prízemie (komerčné využite), 1 poschodie (bytové priestory), 2 poschodie (bytové priestory), je ju však možné zmeniť na viac bytových jednotiek, keďže podlažia majú veľkorysých 264m2. Jedná sa o započatú stavbu tak, ako je vidieť na fotografiách, s PLATNÝM STAVEBNÝM POVOLENÍM, bez tiarch a záväzkov, s jasným vlastníctvom - fyzickou osobou. Nie som realitná kancelária. V cene je oceľ na armovanie prízemia.
Cena 190.000,-€.
Cena 190.000,-€.
|
| |||||||||||||||||||||||||||||||
Kontaktovať inzerenta e-mailom
Kontaktovať e-mailom môže iba overený užívateľ.
Overenie je zadarmo.
Vaše telefónne číslo *
Kontaktovať e-mailom môže iba overený užívateľ.
Overenie je zadarmo.
Vaše telefónne číslo *
