Predaj: Stavebné pozemky pre výstavbu RD v Bošáci
- [23.10. 2025]Zmazať/ Upraviť/ Topovať




















Sme AVILA. Už roky spájame ľudí s ich novým domovom. Kontaktujte nás.
Exkluzívne ponúkame na predaj priestranný a výnimočný stavebný pozemok v pokojnej lokalite obce Bošáca vhodný na výstavbu rodinných domov. Pozemok je možné rozdeliť na 5 samostatných pozemkov s prístupovou cestou pre individuálnu výstavbu rodinných domov.
Ide o rovinatý, slnečný pozemok s romantickým potokom na jeho konci, ktorý vytvára jedinečnú atmosféru tejto nehnuteľnosti.
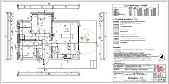
Architektonická koncepcia:
Celkom na parcele je navrhnutých 5 RD, všetky rodinné domy sú hmotovo rovnaké. Rodinné domy sú navrhované ako jednopodlažné bez podpivničenia. Každý rodinný dom má vlastný vstup do objektu, vjazd a výjazd na pozemok. Rodinný dom je navrhovaný obdĺžnikového tvaru s rozmermi 11,00x8,5 m, strešná konštrukcia je riešená ako sedlová. Dispozícia rodinného domu pozostáva: vstupná chodba, wc, spálňa, kúpeľňa, detská izba, obývacia izba s kuchyňou a špajza.
Charakteristika územia a výber staveniska:
Lokalita územia navrhovanej výstavby 5 Rodinných domov sa nachádza v katastri obce Bošáca. Parcely sa nachádzajú mimo zastaveného územia obce. Záujmovú parcelu tvoria parcely KNC 3447/5, 3447/7 celkovou výmerov 3743,00 m2. Parcela je rovinatá Lokalita je prístupná z asfaltovej komunikácie cesta III/1223. Na parcele bude vyhotovená súkromná obslužná komunikácia pre jednotlivé RD s napojením na cestu III/1223. Záujmová parcela je v súčasnosti pripojená na zdroj NN. EL. energie existujúcou prípojkou. Z existujúcej prípojky a jej rozšírenia v zmysle pripojovacích podmienok ZSDIS budú napojené všetky RD. Vodovodná prípojka bude vyhotovená s novým napojením na existujúci verejný vodovod, každý RD bude napojený samostatne. Splašková kanalizácia je navrhnutá do žumpy samostatne pre každý RD. Dažďová vody budú odvádzané cez dažďovú kanalizáciu do podzemných vsakov samostatne pre každý RD. Dažďové vody zo súkromnej komunikácie budú odvádzané na pozemok investora.
Pred rodinnými domami je navrhnutá súkromná obslužná komunikácia s napojením na cestu III/1223. Každý rodinný dom je samostatne napojený na súkromná obslužnú komunikáciu a všetky ing. siete.
Špecifikácia:
- Celková plocha pozemku: 3743 m²
- Rovinatý terén
- Potok na konci pozemku
Pozemok je svojou rozlohou ideálny aj na:
- Developerský projekt
- Investičnú príležitosť
Výhody:
- Slnečná orientácia
- Rovinatý terén
- Atraktívna lokalita
- Potok ako prírodný prvok
- Výborná investičná príležitosť
Inžinierske siete:
- Elektrina: áno
- Plyn: áno
- Voda: áno
- Kanalizácia: nie
Lokalita poskytuje príjemné vidiecke prostredie s dobrou dostupnosťou do okolitých miest.
Neváhajte nás kontaktovať pre bližšie informácie a osobnú obhliadku. Radi Vám predstavíme všetky možnosti tohto výnimočného pozemku.
Cena: 173 500 €
Cena je konečná a zahŕňa všetko, čo k bezpečnému predaju patrí.
Pre viac informácií a dohodnutie obhliadky kontaktujte:
Andrej Pakan
Tel.: 0908 11891
Exkluzívne ponúkame na predaj priestranný a výnimočný stavebný pozemok v pokojnej lokalite obce Bošáca vhodný na výstavbu rodinných domov. Pozemok je možné rozdeliť na 5 samostatných pozemkov s prístupovou cestou pre individuálnu výstavbu rodinných domov.
Ide o rovinatý, slnečný pozemok s romantickým potokom na jeho konci, ktorý vytvára jedinečnú atmosféru tejto nehnuteľnosti.
Architektonická koncepcia:
Celkom na parcele je navrhnutých 5 RD, všetky rodinné domy sú hmotovo rovnaké. Rodinné domy sú navrhované ako jednopodlažné bez podpivničenia. Každý rodinný dom má vlastný vstup do objektu, vjazd a výjazd na pozemok. Rodinný dom je navrhovaný obdĺžnikového tvaru s rozmermi 11,00x8,5 m, strešná konštrukcia je riešená ako sedlová. Dispozícia rodinného domu pozostáva: vstupná chodba, wc, spálňa, kúpeľňa, detská izba, obývacia izba s kuchyňou a špajza.
Charakteristika územia a výber staveniska:
Lokalita územia navrhovanej výstavby 5 Rodinných domov sa nachádza v katastri obce Bošáca. Parcely sa nachádzajú mimo zastaveného územia obce. Záujmovú parcelu tvoria parcely KNC 3447/5, 3447/7 celkovou výmerov 3743,00 m2. Parcela je rovinatá Lokalita je prístupná z asfaltovej komunikácie cesta III/1223. Na parcele bude vyhotovená súkromná obslužná komunikácia pre jednotlivé RD s napojením na cestu III/1223. Záujmová parcela je v súčasnosti pripojená na zdroj NN. EL. energie existujúcou prípojkou. Z existujúcej prípojky a jej rozšírenia v zmysle pripojovacích podmienok ZSDIS budú napojené všetky RD. Vodovodná prípojka bude vyhotovená s novým napojením na existujúci verejný vodovod, každý RD bude napojený samostatne. Splašková kanalizácia je navrhnutá do žumpy samostatne pre každý RD. Dažďová vody budú odvádzané cez dažďovú kanalizáciu do podzemných vsakov samostatne pre každý RD. Dažďové vody zo súkromnej komunikácie budú odvádzané na pozemok investora.
Pred rodinnými domami je navrhnutá súkromná obslužná komunikácia s napojením na cestu III/1223. Každý rodinný dom je samostatne napojený na súkromná obslužnú komunikáciu a všetky ing. siete.
Špecifikácia:
- Celková plocha pozemku: 3743 m²
- Rovinatý terén
- Potok na konci pozemku
Pozemok je svojou rozlohou ideálny aj na:
- Developerský projekt
- Investičnú príležitosť
Výhody:
- Slnečná orientácia
- Rovinatý terén
- Atraktívna lokalita
- Potok ako prírodný prvok
- Výborná investičná príležitosť
Inžinierske siete:
- Elektrina: áno
- Plyn: áno
- Voda: áno
- Kanalizácia: nie
Lokalita poskytuje príjemné vidiecke prostredie s dobrou dostupnosťou do okolitých miest.
Neváhajte nás kontaktovať pre bližšie informácie a osobnú obhliadku. Radi Vám predstavíme všetky možnosti tohto výnimočného pozemku.
Cena: 173 500 €
Cena je konečná a zahŕňa všetko, čo k bezpečnému predaju patrí.
Pre viac informácií a dohodnutie obhliadky kontaktujte:
Andrej Pakan
Tel.: 0908 11891
|
| |||||||||||||||||||||||||||||||
Kontaktovať inzerenta e-mailom
Kontaktovať e-mailom môže iba overený užívateľ.
Overenie je zadarmo.
Vaše telefónne číslo *
Kontaktovať e-mailom môže iba overený užívateľ.
Overenie je zadarmo.
Vaše telefónne číslo *