Staromestský 4 - izbový byt s terasou Žilina - centrum
- [23.10. 2025]Zmazať/ Upraviť/ Topovať



























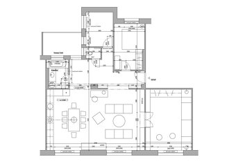
na predaj 4-izbový staromestský byt v centre Žiliny na ulici Jána Milca. Byt s výmerou 116m2 + 7m2 terasa a vlastným plynovým kúrením prešiel kompletnou rekonštrukciou a nevyžaduje ďalšie investície. Nachádza sa na 1./3 poschodí, orientácia JZ/SV. Srdcom bytu je 47m2 veľká obývacia izba s jedálňou a kuchynským kútom, ostatné 3 izby sú nepriechodné. Dispozícia viď pôdorys. K bytu patrí veľká pivnica na prízemí bytového domu.
VÝHODY:
- pokojná lokalita v centre mesta mimo hlavného ťahu, na skok od autobusej a železničnej stanice (križovatka s Dlabačovou ulicou)
- dostatok parkovacích miest
- jedinečná atmosféra staromestského bytu s vysokými stropmi
- kompletná rekonštrukcia s dipozičnou zmenou pod dohľadom architekta v roku 2018
- terasa s komfortom súkromia orientovaná do dvora
- podlahové kúrenie v kúpeľni s vaňou a oknom
- nízke mesačné náklady
- dostatok úložného priestoru
Znalecká hodnota 320.000€. V prípade záujmu o bližšie info či obhliadku nás neváhajte kontaktovať.
video: https://www.youtube.com/watch?v=yUL5Hjrtti0
VÝHODY:
- pokojná lokalita v centre mesta mimo hlavného ťahu, na skok od autobusej a železničnej stanice (križovatka s Dlabačovou ulicou)
- dostatok parkovacích miest
- jedinečná atmosféra staromestského bytu s vysokými stropmi
- kompletná rekonštrukcia s dipozičnou zmenou pod dohľadom architekta v roku 2018
- terasa s komfortom súkromia orientovaná do dvora
- podlahové kúrenie v kúpeľni s vaňou a oknom
- nízke mesačné náklady
- dostatok úložného priestoru
Znalecká hodnota 320.000€. V prípade záujmu o bližšie info či obhliadku nás neváhajte kontaktovať.
video: https://www.youtube.com/watch?v=yUL5Hjrtti0
|
| |||||||||||||||||||||||||||||||
Kontaktovať inzerenta e-mailom
Kontaktovať e-mailom môže iba overený užívateľ.
Overenie je zadarmo.
Vaše telefónne číslo *
Kontaktovať e-mailom môže iba overený užívateľ.
Overenie je zadarmo.
Vaše telefónne číslo *






