PRENÁJOM kancelárske priestory od 15 m2 do 27 m2, Piešťany
- [23.10. 2025]Zmazať/ Upraviť/ Topovať






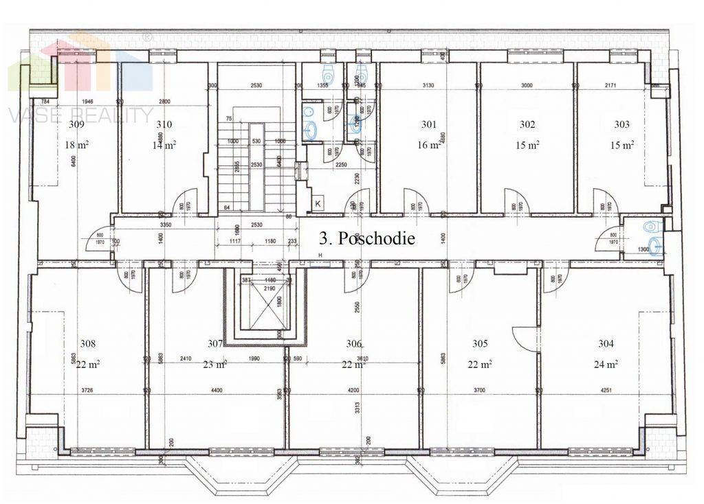
179954 - V novozrekonštruovanej budove v priamom centre kúpeľného mesta Piešťany Vám ponúkame na prenájom kancelárske priestory vhodné ako reprezentatívne sídlo spoločnosti, medicínskych zariadení, poradenských centier, notárskych úradov, advokátskych firiem, auditorských spoločností a podobne. Kancelárie sú situované na 2. a 3. poschodí s výťahom a disponujú výmerou od 15m2 do 27 m2.
V budove je kamerový systém a ozvučenie spoločných priestorov, videovrátnik, prístup na kartu 24/7, LED osvetlenie, úsporné kondenzačné plynové kotle, štruktúrovaná kabeláž, internetové pripojenie – Metalické, T mobile sieť, do budúcna príprava na optiku, kapacita pripojení 30 (jedno na každú miestnosť).
Meranie energií: podružné elektromery pre každý priestor, kondenzačný plynový kotol na každom poschodí, prepočet spotreby podľa plochy
Budova je situovaná v absolútnom centre Piešťan, oproti nákupnému centru Aupark, kde je bezproblémové parkovanie. Výborná dostupnosť bánk, úradov, pošty, obchodov, kaviarní, reštaurácií.
Výhodou je dobrá dostupnosť do Piešťan – autom, vlakom, lietadlom (letisko v PN).
Kancelárie sú voľné ihneď.
CENA: 15 €/m2/mesiac + energie
Viac informácií vám radi poskytneme na telefónnom čísle 0910 115 888 alebo mail adrese moravcikova@vasereality.sk
Pri kontaktovaní emailom, Vás prosíme uvádzať na Vás i telefonický kontakt.
V prípade záujmu Vám zabezpečíme BEZPLATNÝ kompletný hypotekárny servis.
Energetická certifikácia podľa zákona č. 555/2005 Z.z. o energetickej hospodárnosti budov bude vykonaná v zmysle zákona pri predaji nehnuteľnosti. Podľa súčasného konštrukčného vyhotovenia a vybavenia domu je možné predpokladať zatriedenie do energetickej triedy "B "
Ďalších viac ako 400 nehnuteľností nájdete na vasereality.sk
Na skoré stretnutie s Vami sa teší náš tím - VAŠE REALITY s.r.o. - člen Realitnej Únie Slovenskej republiky
V budove je kamerový systém a ozvučenie spoločných priestorov, videovrátnik, prístup na kartu 24/7, LED osvetlenie, úsporné kondenzačné plynové kotle, štruktúrovaná kabeláž, internetové pripojenie – Metalické, T mobile sieť, do budúcna príprava na optiku, kapacita pripojení 30 (jedno na každú miestnosť).
Meranie energií: podružné elektromery pre každý priestor, kondenzačný plynový kotol na každom poschodí, prepočet spotreby podľa plochy
Budova je situovaná v absolútnom centre Piešťan, oproti nákupnému centru Aupark, kde je bezproblémové parkovanie. Výborná dostupnosť bánk, úradov, pošty, obchodov, kaviarní, reštaurácií.
Výhodou je dobrá dostupnosť do Piešťan – autom, vlakom, lietadlom (letisko v PN).
Kancelárie sú voľné ihneď.
CENA: 15 €/m2/mesiac + energie
Viac informácií vám radi poskytneme na telefónnom čísle 0910 115 888 alebo mail adrese moravcikova@vasereality.sk
Pri kontaktovaní emailom, Vás prosíme uvádzať na Vás i telefonický kontakt.
V prípade záujmu Vám zabezpečíme BEZPLATNÝ kompletný hypotekárny servis.
Energetická certifikácia podľa zákona č. 555/2005 Z.z. o energetickej hospodárnosti budov bude vykonaná v zmysle zákona pri predaji nehnuteľnosti. Podľa súčasného konštrukčného vyhotovenia a vybavenia domu je možné predpokladať zatriedenie do energetickej triedy "B "
Ďalších viac ako 400 nehnuteľností nájdete na vasereality.sk
Na skoré stretnutie s Vami sa teší náš tím - VAŠE REALITY s.r.o. - člen Realitnej Únie Slovenskej republiky
|
| |||||||||||||||||||||||||||||||
Kontaktovať inzerenta e-mailom
Kontaktovať e-mailom môže iba overený užívateľ.
Overenie je zadarmo.
Vaše telefónne číslo *
Kontaktovať e-mailom môže iba overený užívateľ.
Overenie je zadarmo.
Vaše telefónne číslo *