Moderné bývanie za minimálne ceny
- [22.10. 2025]Zmazať/ Upraviť/ Topovať






Bývajte moderne, štýlovo a DOSTUPNE – kontajnerové domy na mieru!
Predstavte si domov, ktorý je ekologický, cenovo výhodný a postavený za pár týždňov. Kontajnerové domy prinášajú spojenie praktickosti, dizajnu a komfortu – ideálne ako celoročné bývanie, rekreačná chata, kancelária či štýlový apartmán.
✔ Rýchla výstavba a okamžité bývanie
✔ Plne prispôsobiteľný dizajn a dispozícia
✔ Ekologické a úsporné riešenie
Či už hľadáte trvalý domov, víkendový únik do prírody alebo modernú investíciu, naše kontajnerové domy sú odpoveďou.
Vytvorte si svoj vysnívaný priestor – jednoducho, rýchlo a dostupne.
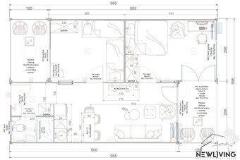
VÝMERA: 9,85 x 5,96 x 3,00 m (DxŠxV)
V CENE SANITA, BOJLER, OBKLADY, PODLAHY aj INTERIÉROVÉ DVERE!
KONŠTRUKCIA:
Obytný kontajner: 9,85 x 5,96 x 3,00 m (DxŠxV)
Zvárané celoocelové profily, rozmery 120x40, hrúbka steny rúry 3 mm, s
podperami zo celoocelových profilov 60x40, hrúbka steny 3 mm, lakovaná 3 x
ochranná a 3 x finálna v RAL 7016. Tesniaca hmota v dolnej zóne na spoji
podlahového profilu a panelu.
STENY:
CP: 1944/2025
Tepelná izolačná sendvičová panely s PUR výplňou hrúbky 50 mm
s hrúbkou plechu 0,4/0,5 RAL WOOD/9002.
V sanitárnej časti sú steny obložené keramikou.
PODLAHA:
Vyrobená z oceľovej konštrukcie s hrúbkou 3 mm s nosnou roštovou konštrukciou
pokrytou dreveným obkladom s hrúbkou 25 mm. Natretá ochranným náterom a
recyklovateľnými PVC - OSB doskami s paro-zábranou, s finálnym laminátom s
hrúbkou 7 mm, v sanitárnej časti je PVC podlaha a v spálni je ETISON.
STRECHA:
Obkladanie stropu sendvičovým panelom PUR s hrúbkou 50 mm a hrúbkou
plechu 0,4/0,5 RAL 7016/9002. Tesnenie hmotou na streche a v dolnej zóne na
spoji podlahového profilu a panelu Zwaluw Hybriseal
DVERE:
- 1 ks PVC dvere, rozmer 0,99 x 2,30 m RAL 7016/7016
-1 ks PVC sklenené dvere, rozmer 0,70 x 2,30 m RAL 7016/7016
-1 ks PVC dvere, rozmer 0,70 x 2,30 m RAL 7016/7016
-2 ks PVC dvere, rozmer 0,80 x 2,30 m RAL 7016/7016
-1 ks PVC dvoj krídlové sklenené dvere, rozmer 1,60 x 2,15
+ svetlík 1,60 x 0,40 m RAL 7016/7016
-1 ks PVC segmentový sklenený otvor, rozmer 1,70 x 2,56 m s balkónovými
dverami 0,90 x 2,00 m RAL 7016/7016
-1 ks sklenené posuvné dvere - v kúpeľni
*vonkajšie rozmery rámu
OKNÁ:
- 1 ks PVC okno s IZO zasklením, rozmer 0,60 x 0,60 m RAL 7016/7016
- 1 ks PVC fixný otvor, rozmer 1,70 x 2,56 m RAL 7016/7016
- 1 ks PVC fixný otvor, rozmer 0,70 x 2,30 m RAL 7016/7016
* vonkajšie rozmery rámu
ELEKTROINŠTALÁCIE:
Štandard na kontajner, vyrobený s nástennými PVC kanálmi:
- 5 ks LED osvetlenie 1x24 W s vypínačom
- 1 ks LED osvetlenie 1x18 W s vypínačom
- 4 ks nástenná lampa - vnútorná
- 2 ks nástenná lampa - vonkajšia
- 8 ks dvojitá OG zásuvka
- 2 ks bežná OG zásuvka (pre klimatizačnú jednotku)
- rozvodná doska s automatickými poistkami a FID vypínačom
Napájanie elektriny cez priemy
Predstavte si domov, ktorý je ekologický, cenovo výhodný a postavený za pár týždňov. Kontajnerové domy prinášajú spojenie praktickosti, dizajnu a komfortu – ideálne ako celoročné bývanie, rekreačná chata, kancelária či štýlový apartmán.
✔ Rýchla výstavba a okamžité bývanie
✔ Plne prispôsobiteľný dizajn a dispozícia
✔ Ekologické a úsporné riešenie
Či už hľadáte trvalý domov, víkendový únik do prírody alebo modernú investíciu, naše kontajnerové domy sú odpoveďou.
Vytvorte si svoj vysnívaný priestor – jednoducho, rýchlo a dostupne.
VÝMERA: 9,85 x 5,96 x 3,00 m (DxŠxV)
V CENE SANITA, BOJLER, OBKLADY, PODLAHY aj INTERIÉROVÉ DVERE!
KONŠTRUKCIA:
Obytný kontajner: 9,85 x 5,96 x 3,00 m (DxŠxV)
Zvárané celoocelové profily, rozmery 120x40, hrúbka steny rúry 3 mm, s
podperami zo celoocelových profilov 60x40, hrúbka steny 3 mm, lakovaná 3 x
ochranná a 3 x finálna v RAL 7016. Tesniaca hmota v dolnej zóne na spoji
podlahového profilu a panelu.
STENY:
CP: 1944/2025
Tepelná izolačná sendvičová panely s PUR výplňou hrúbky 50 mm
s hrúbkou plechu 0,4/0,5 RAL WOOD/9002.
V sanitárnej časti sú steny obložené keramikou.
PODLAHA:
Vyrobená z oceľovej konštrukcie s hrúbkou 3 mm s nosnou roštovou konštrukciou
pokrytou dreveným obkladom s hrúbkou 25 mm. Natretá ochranným náterom a
recyklovateľnými PVC - OSB doskami s paro-zábranou, s finálnym laminátom s
hrúbkou 7 mm, v sanitárnej časti je PVC podlaha a v spálni je ETISON.
STRECHA:
Obkladanie stropu sendvičovým panelom PUR s hrúbkou 50 mm a hrúbkou
plechu 0,4/0,5 RAL 7016/9002. Tesnenie hmotou na streche a v dolnej zóne na
spoji podlahového profilu a panelu Zwaluw Hybriseal
DVERE:
- 1 ks PVC dvere, rozmer 0,99 x 2,30 m RAL 7016/7016
-1 ks PVC sklenené dvere, rozmer 0,70 x 2,30 m RAL 7016/7016
-1 ks PVC dvere, rozmer 0,70 x 2,30 m RAL 7016/7016
-2 ks PVC dvere, rozmer 0,80 x 2,30 m RAL 7016/7016
-1 ks PVC dvoj krídlové sklenené dvere, rozmer 1,60 x 2,15
+ svetlík 1,60 x 0,40 m RAL 7016/7016
-1 ks PVC segmentový sklenený otvor, rozmer 1,70 x 2,56 m s balkónovými
dverami 0,90 x 2,00 m RAL 7016/7016
-1 ks sklenené posuvné dvere - v kúpeľni
*vonkajšie rozmery rámu
OKNÁ:
- 1 ks PVC okno s IZO zasklením, rozmer 0,60 x 0,60 m RAL 7016/7016
- 1 ks PVC fixný otvor, rozmer 1,70 x 2,56 m RAL 7016/7016
- 1 ks PVC fixný otvor, rozmer 0,70 x 2,30 m RAL 7016/7016
* vonkajšie rozmery rámu
ELEKTROINŠTALÁCIE:
Štandard na kontajner, vyrobený s nástennými PVC kanálmi:
- 5 ks LED osvetlenie 1x24 W s vypínačom
- 1 ks LED osvetlenie 1x18 W s vypínačom
- 4 ks nástenná lampa - vnútorná
- 2 ks nástenná lampa - vonkajšia
- 8 ks dvojitá OG zásuvka
- 2 ks bežná OG zásuvka (pre klimatizačnú jednotku)
- rozvodná doska s automatickými poistkami a FID vypínačom
Napájanie elektriny cez priemy
|
| |||||||||||||||||||||||||||||||
Kontaktovať inzerenta e-mailom
Kontaktovať e-mailom môže iba overený užívateľ.
Overenie je zadarmo.
Vaše telefónne číslo *
Kontaktovať e-mailom môže iba overený užívateľ.
Overenie je zadarmo.
Vaše telefónne číslo *