1+kk byt v dev. projekte Watsonova
- TOP - [22.10. 2025]Zmazať/ Upraviť/ Topovať





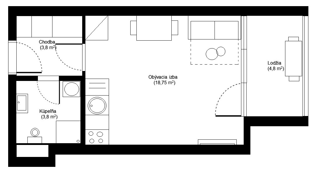
Predáme, resp. postúpime 1 izb. byt v žiadanej lokalite pri amfiteátri v Košiciach v I. etape developerského projektu WatsoNova Košice, ktorá má byť ukončená v roku 2027. Jedná sa o byt typu 1+kk s celkovou výmerou 33.75m2, z toho podlahová plocha bytu predstavuje 26.35m2 + lodžia 4.8m2 + pivnica 2.6m2. Tento byt sa bude nachádzať na 7./8. poschodí bytového domu s označením A2, s orientáciou na východ a bude developerom odovzdaný v stave štandardu, to znamená, že budú už urobené komplet sádrové omietky, jadro a sanita, interiérové dvere s obložkami, podlahy, dlažba, bezpečnostné vchodové dvere a podlahové kúrenie. Cena nehnuteľnosti je (pri aktuálnej sadzbe DPH) : byt+ pivnica 150.000€ s DPH + vnútorne parkovacie státie 18.450€ s DPH. Spôsob platby - pri podpise zmluvy o postúpení práv treba zaplatiť 24.027,5€, pri podpise zmluvy o budúcej zmluve - cca do konca novembra 2025 - 24.084,5€ a pri podpise kúpnej zmluvy - po ukončení a skolaudovaní stavby - zvyšných 120.338€. Veľkou výhodou je kompletná občianska vybavenosť celého projektu a lokality - obchody, potraviny, banky, lekárne, školy, škôlky, reštaurácie, atď. ako aj pešia dostupnosť do centra mesta, preto bude byt vhodný aj ako výborná investícia na prenajímanie.
Kontakt: 0911 210 579
Kontakt: 0911 210 579
|
|
Kontaktovať inzerenta e-mailom
Kontaktovať e-mailom môže iba overený užívateľ.
Overenie je zadarmo.
Vaše telefónne číslo *
Kontaktovať e-mailom môže iba overený užívateľ.
Overenie je zadarmo.
Vaše telefónne číslo *