4 IZBOVÝ BYT V RD, 88M2,MILOSRDENSTVA, KOŠICE-JUH
- [20.10. 2025]Zmazať/ Upraviť/ Topovať

























Typ: 4-izbový byt
Ulica: Milosrdenstva
Mestská časť: Juh
Obec: Košice-Juh
Doležel reality ponúka so súhlasom majiteľa na predaj veľkorysý 4 izbový byt v rodinnom dome s pozemkom v mestskej časti Košice – JUH, ulica Milosrdenstva. K bytu je možné dokúpiť garáž na pozemku.
Rodinný dom je právne vysporiadaný na 2 samostatné byty, každý s jedným majiteľom, čiastočne rekonštruovaný a kúpou ihneď voľný.
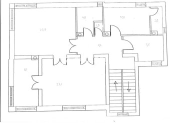
Byt na 1 poschodí o výmere 88 m2 s príslúchajúcou pivnicou 19 m2.
Pozostáva zo 4 izieb, predizby, kuchyne, komory, WC, kúpeľne. V byte boli menené pôvodné okná za plastové –3 sklo.
.
K bytu prislúcha spoločný pozemok o rozlohe 320 m2.
Je prístupný samostatným vstupom priamo z nádvoria domu, cez spoločné schodisko, ktoré vedie tiež k pivniciam a povale.
Každý byt má samostatné vykurovanie s prípravou teplej vody.
Samostatné merače elektrickej energie, vody a plynu sú samozrejmosťou.
K bytu je možné dokúpiť samostatú garáž s pozemkom 20 m2 čiastočne rekonštruovanú so zavedenou elektrinou, ktorá má prístup z ulice.
Rodinný dom je tehlový, zateplený, odizolovaný, krov zdravý drevený, pôjd a strecha renovované, menené okná na spoločných priestoroch.
Je napojený na všetky inžinierske siete.
Bližšie informácie záujemcom pri obhliadke uvedenej nehnuteľnosti
Výhody domu:
Rodinný dom je situovaný v lokalite s výbornou občianskou vybavenosťou (nemocnica Rastislavova, poliklinika, obchody, školy, kostol -Kráľovnej pokoja), výbornou dopravnou dostupnosťou, do centra 10 min. pešej chôdze, blízkym Kulturparkom.
V blízskosti Aupark, Steel Aréna
Momentálny stav rodinného domu vyžaduje len rekonštrukciu bytu podľa vlastných predstáv napr. s využitím viacerých a úsporných druhov vykurovania, nakoľko dom má funkčné komíny.
Bližšie informácie záujemcom pri obhliadke uvedenej nehnuteľnosti
Financovanie kúpy: vlastné zdroje, hypotekárny úver, stavebné sporenie.
Predaj zahŕňa: KOMPLETNÝ SERVIS, prehlásenie odberu médií ako elektrina, plyn, voda, finančné poradenstvo a sprostredkovanie hypotekárneho úveru.
Všetko Vám zabezpečíme kvalitne na základe viac ako 15 ROČNÝCH SKÚSENOSTÍ s prácou v realitnej kancelárii.
Neváhajte ma kontaktovať: Jana Mitalčáková: 0907 970 851
Status: aktívne
Vlastníctvo: osobné
Úžitková plocha: 107 m2
Podlahová plocha: 88 m2
Skladová plocha: 19 m2
Stav: pôvodný stav
Počet izieb: 4
Energetický certifikát: žiadne
Typ budovy: tehla
Typ výbavy: nevybavený
Garáž: áno
Pivnica: áno
Špajza: áno
Sklad: áno
Počet poschodí od prízemia vyššie: 1
Pozícia: vyššie poschodie
Poschodie: 1
Celková plocha: 107 m2
Pivnica plocha: 19 m2
Počet pivníc: 1
Vykurovanie - lokálne: áno
Internet: áno
Ulica: Milosrdenstva
Mestská časť: Juh
Obec: Košice-Juh
Doležel reality ponúka so súhlasom majiteľa na predaj veľkorysý 4 izbový byt v rodinnom dome s pozemkom v mestskej časti Košice – JUH, ulica Milosrdenstva. K bytu je možné dokúpiť garáž na pozemku.
Rodinný dom je právne vysporiadaný na 2 samostatné byty, každý s jedným majiteľom, čiastočne rekonštruovaný a kúpou ihneď voľný.
Byt na 1 poschodí o výmere 88 m2 s príslúchajúcou pivnicou 19 m2.
Pozostáva zo 4 izieb, predizby, kuchyne, komory, WC, kúpeľne. V byte boli menené pôvodné okná za plastové –3 sklo.
.
K bytu prislúcha spoločný pozemok o rozlohe 320 m2.
Je prístupný samostatným vstupom priamo z nádvoria domu, cez spoločné schodisko, ktoré vedie tiež k pivniciam a povale.
Každý byt má samostatné vykurovanie s prípravou teplej vody.
Samostatné merače elektrickej energie, vody a plynu sú samozrejmosťou.
K bytu je možné dokúpiť samostatú garáž s pozemkom 20 m2 čiastočne rekonštruovanú so zavedenou elektrinou, ktorá má prístup z ulice.
Rodinný dom je tehlový, zateplený, odizolovaný, krov zdravý drevený, pôjd a strecha renovované, menené okná na spoločných priestoroch.
Je napojený na všetky inžinierske siete.
Bližšie informácie záujemcom pri obhliadke uvedenej nehnuteľnosti
Výhody domu:
Rodinný dom je situovaný v lokalite s výbornou občianskou vybavenosťou (nemocnica Rastislavova, poliklinika, obchody, školy, kostol -Kráľovnej pokoja), výbornou dopravnou dostupnosťou, do centra 10 min. pešej chôdze, blízkym Kulturparkom.
V blízskosti Aupark, Steel Aréna
Momentálny stav rodinného domu vyžaduje len rekonštrukciu bytu podľa vlastných predstáv napr. s využitím viacerých a úsporných druhov vykurovania, nakoľko dom má funkčné komíny.
Bližšie informácie záujemcom pri obhliadke uvedenej nehnuteľnosti
Financovanie kúpy: vlastné zdroje, hypotekárny úver, stavebné sporenie.
Predaj zahŕňa: KOMPLETNÝ SERVIS, prehlásenie odberu médií ako elektrina, plyn, voda, finančné poradenstvo a sprostredkovanie hypotekárneho úveru.
Všetko Vám zabezpečíme kvalitne na základe viac ako 15 ROČNÝCH SKÚSENOSTÍ s prácou v realitnej kancelárii.
Neváhajte ma kontaktovať: Jana Mitalčáková: 0907 970 851
Status: aktívne
Vlastníctvo: osobné
Úžitková plocha: 107 m2
Podlahová plocha: 88 m2
Skladová plocha: 19 m2
Stav: pôvodný stav
Počet izieb: 4
Energetický certifikát: žiadne
Typ budovy: tehla
Typ výbavy: nevybavený
Garáž: áno
Pivnica: áno
Špajza: áno
Sklad: áno
Počet poschodí od prízemia vyššie: 1
Pozícia: vyššie poschodie
Poschodie: 1
Celková plocha: 107 m2
Pivnica plocha: 19 m2
Počet pivníc: 1
Vykurovanie - lokálne: áno
Internet: áno
|
| |||||||||||||||||||||||||||||||
Kontaktovať inzerenta e-mailom
Kontaktovať e-mailom môže iba overený užívateľ.
Overenie je zadarmo.
Vaše telefónne číslo *
Kontaktovať e-mailom môže iba overený užívateľ.
Overenie je zadarmo.
Vaše telefónne číslo *




