Prenájom priestorov v centre Zvolena - námestie SNP
- [20.10. 2025]Zmazať/ Upraviť/ Topovať






Ponúkame Vám na prenájom priestory nachádzajúce sa na Námestí SNP vo Zvolene, ktoré sú vhodné ako obchodný alebo skladový priestor, ale aj pre služby, kaviareň a pod. V ponuke sú 3 priestory v suteréne budovy:
Priestor č.1
- podlahová plocha: 64,23 m2
- prívod vody: NIE (možnosť zavedenia v prípade potreby)
- využitie: skladový priestor prípadne služby
- Nájom: 300 Eur/mesiac + energie + DPH
Priestor č.2
- podlahová plocha: 163,06 m2
- prívod vody: ÁNO
- využitie: obchod, služby a pod. ...
- Nájom: 700 Eur/mesiac + energie + DPH
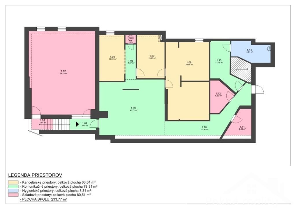
Priestor č.3
- podlahová plocha: 233,77 m2
- prívod vody: ÁNO
- využitie: obchodné aj služby, možnosť dispozičnej úpravy podľa požiadaviek klienta
- Nájom: 900 Eur/mesiac + energie + DPH
Suma presnej výšky mesačnej zálohy za energie bude poskytnutá pri obhliadke.
Možnosť prenájmu parkovacieho státia pri budove za poplatok 300 €/mesiac + DPH.
Pre viac informácií neváhajte kontaktovať našu realitnú kanceláriu.
Priestor č.1
- podlahová plocha: 64,23 m2
- prívod vody: NIE (možnosť zavedenia v prípade potreby)
- využitie: skladový priestor prípadne služby
- Nájom: 300 Eur/mesiac + energie + DPH
Priestor č.2
- podlahová plocha: 163,06 m2
- prívod vody: ÁNO
- využitie: obchod, služby a pod. ...
- Nájom: 700 Eur/mesiac + energie + DPH
Priestor č.3
- podlahová plocha: 233,77 m2
- prívod vody: ÁNO
- využitie: obchodné aj služby, možnosť dispozičnej úpravy podľa požiadaviek klienta
- Nájom: 900 Eur/mesiac + energie + DPH
Suma presnej výšky mesačnej zálohy za energie bude poskytnutá pri obhliadke.
Možnosť prenájmu parkovacieho státia pri budove za poplatok 300 €/mesiac + DPH.
Pre viac informácií neváhajte kontaktovať našu realitnú kanceláriu.
|
| |||||||||||||||||||||||||||||||
Kontaktovať inzerenta e-mailom
Kontaktovať e-mailom môže iba overený užívateľ.
Overenie je zadarmo.
Vaše telefónne číslo *
Kontaktovať e-mailom môže iba overený užívateľ.
Overenie je zadarmo.
Vaše telefónne číslo *