Na predaj – priemyselný pozemok v areáli TAZ, TRNAVA
- [20.10. 2025]Zmazať/ Upraviť/ Topovať














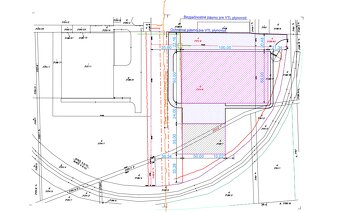
Ponúkame na predaj rozsiahly pozemok s výmerou 20 842 m², ktorý sa nachádza v priemyselnej zóne TAZ – kataster Hrnčiarovce nad Parnou v tesnej blizkosti Trnavy.
Pozemok určený na ťažký priemysel, ideálny pre výstavbu výrobnej haly alebo priemyselného areálu.
Základné informácie:
• Výmera: 20 842 m²
• Účel využitia: ťažký priemysel, výrobné haly, logistické centrum, skladovanie
• Územný plán: Schválený pre priemyselné využitie
• Dopravná dostupnosť: priame napojenie na diaľnicu D1 cez križovatku Voderady, plánovaný južný obchvat Trnavy
• Pozdĺž pozemku vedie železničná vlečka – možnosť napojenia
• Oplotenie: pozemok je kompletne oplotený (z dvoch strán betónovým plotom)
• Inžinierske siete: vodovod, elektrina, plyn, kanalizácia (hlavné kanalizačné potrubie DN 1000)
• Čistička odpadových vôd a elektro rozvodňa v tesnom susedstve pozemku
K dispozícii je návrh na umiestnenie výrobnej haly, ktorý môže slúžiť ako podklad pre budúcu realizáciu.
Táto lokalita ponúka výborné podmienky pre priemyselnú výrobu, logistiku či skladovanie – s priamym napojením na dopravnú a technickú infraštruktúru.
Cena: 100€/m²
V prípade záujmu, alebo otázok ma neváhajte kontaktovať.
Petra Šarmírová | ... 0903 250 311 | ... sarmirova@neoreal.sk
Pozemok určený na ťažký priemysel, ideálny pre výstavbu výrobnej haly alebo priemyselného areálu.
Základné informácie:
• Výmera: 20 842 m²
• Účel využitia: ťažký priemysel, výrobné haly, logistické centrum, skladovanie
• Územný plán: Schválený pre priemyselné využitie
• Dopravná dostupnosť: priame napojenie na diaľnicu D1 cez križovatku Voderady, plánovaný južný obchvat Trnavy
• Pozdĺž pozemku vedie železničná vlečka – možnosť napojenia
• Oplotenie: pozemok je kompletne oplotený (z dvoch strán betónovým plotom)
• Inžinierske siete: vodovod, elektrina, plyn, kanalizácia (hlavné kanalizačné potrubie DN 1000)
• Čistička odpadových vôd a elektro rozvodňa v tesnom susedstve pozemku
K dispozícii je návrh na umiestnenie výrobnej haly, ktorý môže slúžiť ako podklad pre budúcu realizáciu.
Táto lokalita ponúka výborné podmienky pre priemyselnú výrobu, logistiku či skladovanie – s priamym napojením na dopravnú a technickú infraštruktúru.
Cena: 100€/m²
V prípade záujmu, alebo otázok ma neváhajte kontaktovať.
Petra Šarmírová | ... 0903 250 311 | ... sarmirova@neoreal.sk
|
| |||||||||||||||||||||||||||||||
Kontaktovať inzerenta e-mailom
Kontaktovať e-mailom môže iba overený užívateľ.
Overenie je zadarmo.
Vaše telefónne číslo *
Kontaktovať e-mailom môže iba overený užívateľ.
Overenie je zadarmo.
Vaše telefónne číslo *