Na predaj rozostavaný rodinný dom v Detve - Exkluzívne
- [20.10. 2025]Zmazať/ Upraviť/ Topovať




















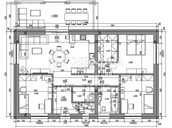
XEMAR ( jozef.kret@xemar.sk alebo 0915 142 544 ) ekluzívne ponúka na predaj holostavbu rodinného domu v Detve, časť Krné. Jedná sa o prízemný rodinný dom o rozmeroch 14,40m x 8,70m a obytnej ploche 125 m². Pozostáva zo vstupnej chodby, chodby, obývačky s kuchyňou a východom na terasu, 3 obytných miestností ( 1 so šatníkom ), kúpeľne s WC, samostatného WC, technickej miestnosti a vonkajšej podpivničenej terasy. IS: nutné vybudovať el. prípojka, pre vodu potrebné vŕtať studňu, kanalizácia žumpa. Rodinný dom sa predáva v štádiu hrubej stavby - betónová platňa, betónové základy, obvodové múry Ytong 30 cm, vnútorné priečky, sedlová strecha ( vezníkový krov ) a tmavá betónová škridľa KM Beta čierny Briliant. V cene je materiál na dokončenie prác 2 palety škridiel na zakrytie terasy. Rodinný dom sa nachádza na mierne svahovitom pozemku o výmere 1172 m². Viac informácií na tel. čísle 0915 142 544
|
| |||||||||||||||||||||||||||||||
Kontaktovať inzerenta e-mailom
Kontaktovať e-mailom môže iba overený užívateľ.
Overenie je zadarmo.
Vaše telefónne číslo *
Kontaktovať e-mailom môže iba overený užívateľ.
Overenie je zadarmo.
Vaše telefónne číslo *