Predaj novostavby samostatne stojaceho 4 izb. bungalovu v Mo
- [20.10. 2025]Zmazať/ Upraviť/ Topovať











Typ: Rodinný dom
Ulica: Tramínová
Obec: Modra
Ponúkame Vám na predaj novostavbu samostatne stojaceho rodinného domu na pozemku s výmerou 518 m² v novovzniknutej lokalite mesta Modra, Malé hliny.
Dom s úžitkovou plochou 102 m² bude dokončený do štádia holodom v lete 2025.
Predávať sa bude so zarovnaným pozemkom oploteným z 3 strán pletivovým plotom a z prednej strany s plotom z okrasných betónových tvárnic s predprípravou na bráničku a na el. bránu. V záhrade bude umiestnená 4 m³ retenčná nádrž na dažďovú vodu. Pred domom bude vydláždené parkovacie stojisko pre 2 autá (parkovanie pre tretie auto zo zatrávňovacích tvárnic), stojisko na smetné nádoby a chodník k domu. Na fasáde bude vyvedená voda a elektrina na nabíjanie elektromobilu.
Interiér – steny sadrové omietky, vymaľované na bielo, osadené vypínače a zásuvky, sadrokartónový strop vymaľovaný na bielo, predpríprava rozvodov vody, kanalizácie a elektriky v kúpeľniach, technickej časti a kuchyni. Podlahy zakončené poterom, kúrenie teplovodné podlahové s osadeným tepelným čerpadlom. V každej obytnej izbe je predpríprava na klimatizáciu so zabudovaným kastlíkom, predpríprava na vonkajšie elektrické žalúzie s podomietkovými kastlíkmi a predpríprava na alarm. V obývacej izbe je predpríprava na krb systém Schiedel. Podkrovie s úložným priestorom je dostupné výsuvným schodiskom.
Dom bol projektovaný na mieru a preto je jeho dispozícia premyslená do posledného detailu. Rozdelený je na dennú a nočnú časť. Výstup na JZ orientovanú záhradu je zo spálne a obývacej izby, SZ orientovaná časť záhrady je prístupná z kuchyne a posuvnými dverami z obývacej izby.
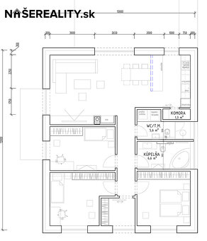
Dispozícia (viď. pôdorys vo fotografiách)
- vstup so zádverím (4,2 m²)
- 3 izby (13,5 m², 12,8 m² a 13 m²)
- obývacia izba s krbom a jedálenskou časťou (30,9 m²)
- kuchyňa (8,4 m²)
- komora (1,2 m²)
- chodba (5,7 m²)
- kúpeľňa (6,6 m²)
- kúpeľňa s tech. časťou (5,6 m²)
Na stavbu boli použité klasické materiály:
- tehla (obvodová 300 mm)
- zateplenie fasády 200 mm polystyrén
- betónová škridla BRAMAC
- izolácia strechy Nobasil
- plastové okná Rakystav s izolačným trojsklom a predprípravou na vonkajšie el. žalúzie
- podlahové teplovodné kúrenie s tepelným čerpadlom a zásobníkom na teplú vodu
- zámková dlažba
Inžinierske siete: elektrina, voda, kanalizácia, optický kábel, plyn pri pozemku
Mesto Modra známe nielen svojou históriou ale taktiež výborným vínkom ponúka svojim obyvateľom plnohodnotné bývanie v každom smere. Obyvatelia majú zabezpečenú kompletnú občiansku vybavenosť (materské a základné školy, gymnázium, odborné školy, potraviny, reštaurácie, športoviská, kúpalisko..) a zároveň sú obklopení krásnou prírodou Malých Karpát s možnosťou turistiky, cykloturistiky, lyžovačky na neďalekej Zochovej chate a množstva ďalších športových aktivít. V Bratislave i v Trnave ste autom za 20 minút jazdy. Novovzniknutá lokalita Malé hliny ponúka krásne výhľady na okolitú prírodu a s cent
Ulica: Tramínová
Obec: Modra
Ponúkame Vám na predaj novostavbu samostatne stojaceho rodinného domu na pozemku s výmerou 518 m² v novovzniknutej lokalite mesta Modra, Malé hliny.
Dom s úžitkovou plochou 102 m² bude dokončený do štádia holodom v lete 2025.
Predávať sa bude so zarovnaným pozemkom oploteným z 3 strán pletivovým plotom a z prednej strany s plotom z okrasných betónových tvárnic s predprípravou na bráničku a na el. bránu. V záhrade bude umiestnená 4 m³ retenčná nádrž na dažďovú vodu. Pred domom bude vydláždené parkovacie stojisko pre 2 autá (parkovanie pre tretie auto zo zatrávňovacích tvárnic), stojisko na smetné nádoby a chodník k domu. Na fasáde bude vyvedená voda a elektrina na nabíjanie elektromobilu.
Interiér – steny sadrové omietky, vymaľované na bielo, osadené vypínače a zásuvky, sadrokartónový strop vymaľovaný na bielo, predpríprava rozvodov vody, kanalizácie a elektriky v kúpeľniach, technickej časti a kuchyni. Podlahy zakončené poterom, kúrenie teplovodné podlahové s osadeným tepelným čerpadlom. V každej obytnej izbe je predpríprava na klimatizáciu so zabudovaným kastlíkom, predpríprava na vonkajšie elektrické žalúzie s podomietkovými kastlíkmi a predpríprava na alarm. V obývacej izbe je predpríprava na krb systém Schiedel. Podkrovie s úložným priestorom je dostupné výsuvným schodiskom.
Dom bol projektovaný na mieru a preto je jeho dispozícia premyslená do posledného detailu. Rozdelený je na dennú a nočnú časť. Výstup na JZ orientovanú záhradu je zo spálne a obývacej izby, SZ orientovaná časť záhrady je prístupná z kuchyne a posuvnými dverami z obývacej izby.
Dispozícia (viď. pôdorys vo fotografiách)
- vstup so zádverím (4,2 m²)
- 3 izby (13,5 m², 12,8 m² a 13 m²)
- obývacia izba s krbom a jedálenskou časťou (30,9 m²)
- kuchyňa (8,4 m²)
- komora (1,2 m²)
- chodba (5,7 m²)
- kúpeľňa (6,6 m²)
- kúpeľňa s tech. časťou (5,6 m²)
Na stavbu boli použité klasické materiály:
- tehla (obvodová 300 mm)
- zateplenie fasády 200 mm polystyrén
- betónová škridla BRAMAC
- izolácia strechy Nobasil
- plastové okná Rakystav s izolačným trojsklom a predprípravou na vonkajšie el. žalúzie
- podlahové teplovodné kúrenie s tepelným čerpadlom a zásobníkom na teplú vodu
- zámková dlažba
Inžinierske siete: elektrina, voda, kanalizácia, optický kábel, plyn pri pozemku
Mesto Modra známe nielen svojou históriou ale taktiež výborným vínkom ponúka svojim obyvateľom plnohodnotné bývanie v každom smere. Obyvatelia majú zabezpečenú kompletnú občiansku vybavenosť (materské a základné školy, gymnázium, odborné školy, potraviny, reštaurácie, športoviská, kúpalisko..) a zároveň sú obklopení krásnou prírodou Malých Karpát s možnosťou turistiky, cykloturistiky, lyžovačky na neďalekej Zochovej chate a množstva ďalších športových aktivít. V Bratislave i v Trnave ste autom za 20 minút jazdy. Novovzniknutá lokalita Malé hliny ponúka krásne výhľady na okolitú prírodu a s cent
|
|
Kontaktovať inzerenta e-mailom
Kontaktovať e-mailom môže iba overený užívateľ.
Overenie je zadarmo.
Vaše telefónne číslo *
Kontaktovať e-mailom môže iba overený užívateľ.
Overenie je zadarmo.
Vaše telefónne číslo *