Kancelárske priestory v historickej budove centre Bratislavy
- [20.10. 2025]Zmazať/ Upraviť/ Topovať
























Ponúkame na prenájom administratívne priestory na Grösslingovej ulici v centre Starého mesta Bratislavy, neďaleko SNP alebo Štúrovej, Bratislava 1.
Okrem dobrej dopravnej dostupnosti a MHD pokrytia aj električkami, výhodou objektu je aj to, že jeho súčasťou je veľko-garáž s priamym vjazdom z Grösslingovej ulice.
Ponuka kancelárskych priestorov:
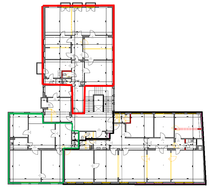
Na 2. poschodí (3.NP) 169,30 m2. Dispozícia: chodba, delené toalety, 5 menších kancelárií + 1 veľká kancelária).
Na 4. poschodí (5.NP) 109,38 m2. Dispozícia: vstup/chodba, toaleta, kuchynka, 4 kancelárie.
Na 4. poschodí (5.NP) 147m2. Dispozícia: chodba, veľká kuchynka, delené toalety, 3 kancelárie + 1 veľká kancelária.
Na 4. poschodí (5.NP) 229,30m2. Dispozícia: chodba, 8 kancelárií, delené toalety a kuchynka.
Nájomné:
1 rok – 10,50 €/m2/mesiac + zálohy za energie a služby cca 7,00€/m2/mesiac + DPH (energie sú rozpočítané podľa podlahovej plochy).
3 roky - 10 €/m2/mesiac + zálohy za energie a služby cca 7,00€/m2/mesiac + DPH (energie sú rozpočítané podľa podlahovej plochy).
5 rokov - 9 €/m2/mesiac + zálohy za energie a služby cca 7,00€/m2/mesiac + DPH (energie sú rozpočítané podľa podlahovej plochy).
Parkovacie garážové boxy:
- na prízemí, cena: 160 €/box/mesiac + DPH,
- na prvom poschodí a v suteréne cena: 120 €/box/mesiac + DPH.
Ceny sú bez DPH.
Záujemca neplatí províziu.
Viac informácii u uvedeného realitného manažéra.
Okrem dobrej dopravnej dostupnosti a MHD pokrytia aj električkami, výhodou objektu je aj to, že jeho súčasťou je veľko-garáž s priamym vjazdom z Grösslingovej ulice.
Ponuka kancelárskych priestorov:
Na 2. poschodí (3.NP) 169,30 m2. Dispozícia: chodba, delené toalety, 5 menších kancelárií + 1 veľká kancelária).
Na 4. poschodí (5.NP) 109,38 m2. Dispozícia: vstup/chodba, toaleta, kuchynka, 4 kancelárie.
Na 4. poschodí (5.NP) 147m2. Dispozícia: chodba, veľká kuchynka, delené toalety, 3 kancelárie + 1 veľká kancelária.
Na 4. poschodí (5.NP) 229,30m2. Dispozícia: chodba, 8 kancelárií, delené toalety a kuchynka.
Nájomné:
1 rok – 10,50 €/m2/mesiac + zálohy za energie a služby cca 7,00€/m2/mesiac + DPH (energie sú rozpočítané podľa podlahovej plochy).
3 roky - 10 €/m2/mesiac + zálohy za energie a služby cca 7,00€/m2/mesiac + DPH (energie sú rozpočítané podľa podlahovej plochy).
5 rokov - 9 €/m2/mesiac + zálohy za energie a služby cca 7,00€/m2/mesiac + DPH (energie sú rozpočítané podľa podlahovej plochy).
Parkovacie garážové boxy:
- na prízemí, cena: 160 €/box/mesiac + DPH,
- na prvom poschodí a v suteréne cena: 120 €/box/mesiac + DPH.
Ceny sú bez DPH.
Záujemca neplatí províziu.
Viac informácii u uvedeného realitného manažéra.
|
| |||||||||||||||||||||||||||||||
Kontaktovať inzerenta e-mailom
Kontaktovať e-mailom môže iba overený užívateľ.
Overenie je zadarmo.
Vaše telefónne číslo *
Kontaktovať e-mailom môže iba overený užívateľ.
Overenie je zadarmo.
Vaše telefónne číslo *



