Polyfunkčná budova na predaj Bratislava 3, Staviteľská ulica
- [20.10. 2025]Zmazať/ Upraviť/ Topovať











Reality Bratislava ponúka na predaj pekný a upravený zabehnutý areál s kancelárskymi, obchodnými a ubytovacími zariadeniami v lokalite Rača Žabí majer na ulici Staviteľská v Bratislave III ,mestská časť Rača.
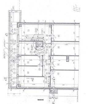
Na pozemku o výmere 2314 m2 sa nachádza podpivničená budova s tromi nadzemnými podlažiami, ktorá prešla kompletnou rekonštrukciou v roku 2014. Areál je celý oplotený a disponuje veľkým parkoviskom pred budovou. V budove sa nenachádza výťah.
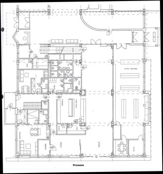
Polyfunkčná budova podlahovej plochy 1474 m2 plus 171 m2 suterénnych priestorov, je na prízemí o podlahovej ploche 681 m2 využívaná na gastro prevádzku, administratívu, obchodné prevádzky, recepciu a 2 ubytovacie zariadenia apartmánového typu s vlastným vstupom.
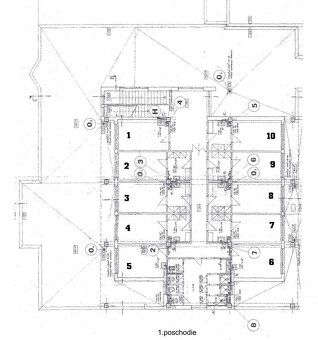
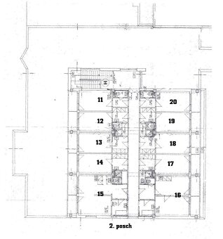
Na 1. a 2. nadzemnom podlaží je situovaná centrálna chodba so schodiskom a ubytovacími zariadeniami so sociálnym zariadením a balkónmi. Spolu na dvoch podlažiach budova disponuje 20 izbami. Pozemok momentálne disponuje cca 30 parkovacími miestami.
Areál je napojený na verejné rozvody, kanalizáciu, plyn a rozvody NN.
Budovy zodpovedajú estetickým, hygienickým a ekologickým normám pre ubytovacie zariadenia.
Štandardom sú teplá voda, kúrenie, klimatizácia, elektrika, TV, wifi, rádio, bezpečnostné zariadenia, požiarna bezpečnosť, mini-práčovňa formou samoobsluhy. Pekný areál s ubytovacími službami je rokmi zabehnutý a fungujúci. Výhodou je dostatok parkovacích miest priamo pred budovou.
K dispozícii ihneď s existujúcimi nájomcami, alebo po vysporiadaní.
Priestory Vám radi predstavíme na obhliadke. Viac informácii u uvedeného makléra.
CENA V RK.
Na pozemku o výmere 2314 m2 sa nachádza podpivničená budova s tromi nadzemnými podlažiami, ktorá prešla kompletnou rekonštrukciou v roku 2014. Areál je celý oplotený a disponuje veľkým parkoviskom pred budovou. V budove sa nenachádza výťah.
Polyfunkčná budova podlahovej plochy 1474 m2 plus 171 m2 suterénnych priestorov, je na prízemí o podlahovej ploche 681 m2 využívaná na gastro prevádzku, administratívu, obchodné prevádzky, recepciu a 2 ubytovacie zariadenia apartmánového typu s vlastným vstupom.
Na 1. a 2. nadzemnom podlaží je situovaná centrálna chodba so schodiskom a ubytovacími zariadeniami so sociálnym zariadením a balkónmi. Spolu na dvoch podlažiach budova disponuje 20 izbami. Pozemok momentálne disponuje cca 30 parkovacími miestami.
Areál je napojený na verejné rozvody, kanalizáciu, plyn a rozvody NN.
Budovy zodpovedajú estetickým, hygienickým a ekologickým normám pre ubytovacie zariadenia.
Štandardom sú teplá voda, kúrenie, klimatizácia, elektrika, TV, wifi, rádio, bezpečnostné zariadenia, požiarna bezpečnosť, mini-práčovňa formou samoobsluhy. Pekný areál s ubytovacími službami je rokmi zabehnutý a fungujúci. Výhodou je dostatok parkovacích miest priamo pred budovou.
K dispozícii ihneď s existujúcimi nájomcami, alebo po vysporiadaní.
Priestory Vám radi predstavíme na obhliadke. Viac informácii u uvedeného makléra.
CENA V RK.
|
|
Kontaktovať inzerenta e-mailom
Kontaktovať e-mailom môže iba overený užívateľ.
Overenie je zadarmo.
Vaše telefónne číslo *
Kontaktovať e-mailom môže iba overený užívateľ.
Overenie je zadarmo.
Vaše telefónne číslo *