nadrozmerný 3,5-izbový byt, Martin – Centrum
- [20.10. 2025]Zmazať/ Upraviť/ Topovať









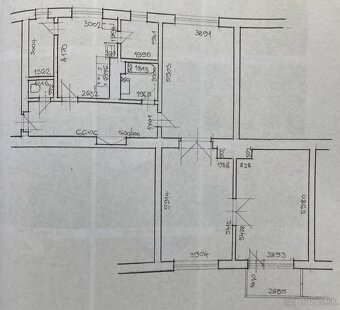
Predstavujeme Vám nadrozmerný 3,5-izbový byt situovaný v centre mesta Martin na ulici P. O. Hviezdoslava 17 v tehlovom bytovom dome z roku 1947.
Nachádza na 2. poschodi z 3 s orientáciou na východ a západ.
Celková rozloha je 114,05 m2, z toho pivnica 9,09 m2, balkón 4,07 m2.
Tri veľké izby s rozlohou 22,12 m2, 22,87 m2 a 22,97 m2, dve z nich sú priechodné, posledná je nepriechodná so vstupom na balkón (vid pôdorys).
Z kuchyne sa vchádza do tzv. slúžkovskej izby s rozlohou 3,86 m2.
Orientácia - na východ: dve spálne + balkón
- na západ: obývacia izba, kuchyňa, špajza a slúžkovská izba
V byte je samostatné WC, do kúpelne vstupuje svetlo cez svetlik zo slúžkovskej izby.
Rekonštrukcia prebehla okolo roku 2003, plastové okná sú z roku 2006.
Vo dvore je možnosť parkovania.
Byt je kúpou voľný bez ďalších tiarch.
Cena 215 000,- eur.
Viac informácii poskytneme na tel.čísle 0903 538 716 alebo mailom felicitarealsro@gmail.com
Nachádza na 2. poschodi z 3 s orientáciou na východ a západ.
Celková rozloha je 114,05 m2, z toho pivnica 9,09 m2, balkón 4,07 m2.
Tri veľké izby s rozlohou 22,12 m2, 22,87 m2 a 22,97 m2, dve z nich sú priechodné, posledná je nepriechodná so vstupom na balkón (vid pôdorys).
Z kuchyne sa vchádza do tzv. slúžkovskej izby s rozlohou 3,86 m2.
Orientácia - na východ: dve spálne + balkón
- na západ: obývacia izba, kuchyňa, špajza a slúžkovská izba
V byte je samostatné WC, do kúpelne vstupuje svetlo cez svetlik zo slúžkovskej izby.
Rekonštrukcia prebehla okolo roku 2003, plastové okná sú z roku 2006.
Vo dvore je možnosť parkovania.
Byt je kúpou voľný bez ďalších tiarch.
Cena 215 000,- eur.
Viac informácii poskytneme na tel.čísle 0903 538 716 alebo mailom felicitarealsro@gmail.com
|
|
Kontaktovať inzerenta e-mailom
Kontaktovať e-mailom môže iba overený užívateľ.
Overenie je zadarmo.
Vaše telefónne číslo *
Kontaktovať e-mailom môže iba overený užívateľ.
Overenie je zadarmo.
Vaše telefónne číslo *
Podobné inzeráty

Typ: 3-izbový byt
Ulica: -
Mestská časť: Jahodníky
Obec: Martin
Moderný maklér ponúka na predaj 3-izbový byt v Martine – časť Jahodníky, ktorý je v pôvodnom stave a predstavuje ideálnu príležitosť na rekonštrukciu podľa vlastných predstáv. Nehnuteľnosť ponúka maximálnu flexibilitu pri zariaden ...
139 000 €
Martin
036 01
036 01
108 x
Označiť zlý inzerát Chybnú kategóriu Ohodnotiť užívateľa Zmazať/Upraviť/Topovať

Typ: 3-izbový byt
Mestská časť: Sever
Obec: Martin
Moderný maklér pripravuje do ponuky 3-izbový byt v Martine – časť Sever. Byt je v pôvodnom stave, ideálny na prerobenie podľa vlastných predstáv. Skvelá príležitosť získať nehnuteľnosť vo výbornej lokalite za výhodnú cenu.
Pre viac informácii ...
134 900 €
Martin
036 01
036 01
105 x
Označiť zlý inzerát Chybnú kategóriu Ohodnotiť užívateľa Zmazať/Upraviť/Topovať

Mám záujem o kúpu 2,3-izbového bytu v Martine, najlepšie centrum,blízke centrum.Nie som RK,platba v hotovosti.
123 456 €
Martin
036 01
036 01
131 x
Označiť zlý inzerát Chybnú kategóriu Ohodnotiť užívateľa Zmazať/Upraviť/Topovať

Predstavujeme vám výnimočnú príležitosť stať sa majiteľom tohto svetlého, útulného a priestranného 3-izbového bytu 82m2 úžitkovej plochy, ktorý je kompletne zariadený a pripravený pre vaše pohodlie. Nachádza sa v obľúbenej lokalite Priekopa, kde si z oboch balkónov užijete nádherné jesenné výhľady, ...
Dohodou
Martin
036 01
036 01
206 x
Označiť zlý inzerát Chybnú kategóriu Ohodnotiť užívateľa Zmazať/Upraviť/Topovať

Ponúkame na predaj 4-izbový byt v blízkosti mesta Martin, v Košťanoch nad Turcom. Nachádza sa na 1. podlaží z dvoch v tehlovom bytovom dome. Ten prešiel tohto roku revitalizáciou – zateplenie, nová strecha, balkóny, garážové brány, spoločné priestory a pod..
Byt má výmeru 85 m2. Je priestranný a ...
169 000 €
Martin
036 01
036 01
210 x
Označiť zlý inzerát Chybnú kategóriu Ohodnotiť užívateľa Zmazať/Upraviť/Topovať

Ponúkame na predaj 3 izbový zrekonštruovaný byt vo Vrútkach. Byt sa nachádza na 2. poschodí z 2. bytového domu, ktorý rovnako ako byt prešiel rekonštrukciou v podobe zateplenia, výmeny rozvodov stupačiek. Výmera bytu je 61m2. Mesačné náklady sú vo výške 200€ vrátane energií. Byt je po rekonštrukcii ...
Dohodou
Martin
036 01
036 01
300 x
Označiť zlý inzerát Chybnú kategóriu Ohodnotiť užívateľa Zmazať/Upraviť/Topovať

TARGETreal ponúka na predaj priestranný a slnečný 4 izbový byt s veľkým balkónom v obľúbenej lokalite Ľadoveň, Martin. Byt má celkovú výmeru 89 m² (80 m² úžitková plocha + 6 m² balkón + 2,7 m² pivnica) a nachádza sa na 4. poschodí zatepleného bytového domu s výťahom.
Dispozícia bytu je ideálna pre ...
167 000 €
Martin
036 01
036 01
271 x
Označiť zlý inzerát Chybnú kategóriu Ohodnotiť užívateľa Zmazať/Upraviť/Topovať

Predám 3-izbový byt Martin-Sever ☀️
💶 Cena: 129 500 €
📞 Kontakt: 948055836
Slnečný 3-izbový byt o výmere 72,27 m² sa nachádza na 5. poschodí zo 7 s výťahom v zrekonštruovanom obytnom dome (strecha, fasáda, výťah, loggie, rozvody EÚ).
K bytu patrí:
suchá pivnica 2,46 m²
komora pri výť ...
129 500 €
Martin
036 01
036 01
369 x
Označiť zlý inzerát Chybnú kategóriu Ohodnotiť užívateľa Zmazať/Upraviť/Topovať

Reality EGYPS ponúka na predaj 3-izbový byt o výmere 65 m² v obľúbenej časti Martin – Sever.
Nachádza sa na 6. poschodí a je po čiastočnej rekonštrukcii, nové plastové okná, nové rozvody kúrenia a radiátory, nový balkón.
Mesačné náklady cca 180 €/2 osoby.
Byt má prechodnú obývačku, výbornú ...
132 000 €
Martin
036 01
036 01
286 x
Označiť zlý inzerát Chybnú kategóriu Ohodnotiť užívateľa Zmazať/Upraviť/Topovať

Reality EGYPS ponúka na predaj priestranný 3-izbový byt s rozlohou 82 m² plus 2 balkóny, 7 poschodie z 12, čiastočná rekonštrukcia v časti Priekopa - Martin.
Byt je kompletne zariadený a pripravený na okamžité nasťahovanie – ideálne pre rodiny alebo ako investícia na dlhodobý prenájom.
-82 m² + ...
144 500 €
Martin
036 01
036 01
291 x
Označiť zlý inzerát Chybnú kategóriu Ohodnotiť užívateľa Zmazať/Upraviť/Topovať