ZNÍŽENÁ CENA, Pozemok s projektovou dokumentáciou, Vysoká n.
- [20.10. 2025]Zmazať/ Upraviť/ Topovať






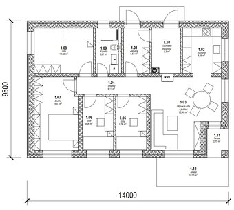
Ponúkam na predaj rovinatý pozemok o výmere 575 m2 v obci Vysoká nad Kysucou.
V cene je kompletná dokumentácia k stavebnému povoleniu - dá sa ešte upraviť podľa vlastných predstáv.
Vypracované a schválené dopravné označenie s projektovou dokumentáciou.
Inžinierske siete: voda, kanalizácia, elektrina, optický internet, káblová televízia.
Viac informácií Vám rada poskytnem na telefónnom čísle.
V cene je kompletná dokumentácia k stavebnému povoleniu - dá sa ešte upraviť podľa vlastných predstáv.
Vypracované a schválené dopravné označenie s projektovou dokumentáciou.
Inžinierske siete: voda, kanalizácia, elektrina, optický internet, káblová televízia.
Viac informácií Vám rada poskytnem na telefónnom čísle.
|
| |||||||||||||||||||||||||||||||
Kontaktovať inzerenta e-mailom
Kontaktovať e-mailom môže iba overený užívateľ.
Overenie je zadarmo.
Vaše telefónne číslo *
Kontaktovať e-mailom môže iba overený užívateľ.
Overenie je zadarmo.
Vaše telefónne číslo *