Predaj budovy, priemyselný park Martin-Sučany
- [20.10. 2025]Zmazať/ Upraviť/ Topovať






























Ponúkame na predaj budovu v priemyselnom parku Martin-Sučany.
V budove sú zriadené kancelárie a skladové priestory o výmere od 20 m2 do 37 m2. Existuje možnosť priestory variabilne meniť (sadrokartónové priečky), zväčšovať, zmenšovať atď...
Presná adresa a lokalizácia budovy je na www.biorafineria.sk.
V blízkosti budovy sídlia firmy Volkswagen Slovakia, KraussMaffei Technologies, GGB Slovakia, MAR SK, ZWL Slovakia, Zinkovňa, Hranipex, TFM Slovakia, Motorest Rapid, Lorika Slovakia, Slovasfalt, Cargo, SSE, NDS, atď.
V prípade záujmu volajte prosím na mobil 0908 816 751.
We offer building in the industrial park Martin-Sucany. There are offices and storage rooms in this building.
Predaj, administratívna budova, priemyselný park Martin-Sučany
Ponúkame Vám na predaj administratívnu budovu v priemyselnom parku Martin-Sučany.
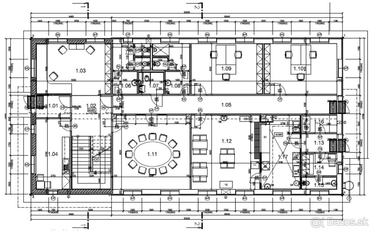
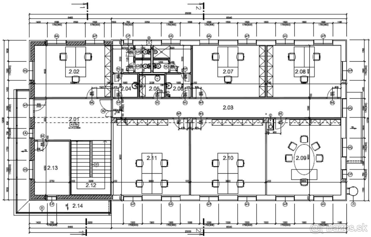
Budova ponúka komerčné priestory na dvoch podlažiach v celkovej úžitkovej ploche 632 m2, využiteľné na rôzne účely.
K budove patria priľahlé pozemky o rozlohe 857m2.
Pri budove sa nachádza parkovacia plocha pre cca 10 vozidiel, prípadné rozšírenie kapacity je možné.
Budova ponúka variabilné vnútorné priestory (vnútorné priečky sadrokartón), s rôznym účelom využitia:
- administratívno - kancelárske priestory
- investičný objekt k ďalšiemu prenájmu
- sídlo firmy
- skladovacie priestory
- montáž, prípadne ľahká výroba
- predajno - administratívne priestory (showroom)
- ubytovňa
Aktuálne sa v budove nachádza 8 kancelárií, recepcia, zasadačka, archív, jedáleň s výdajňou stravy a s teplým ohrevom, denná miestnosť, chodby a sociálne zariadenia
Teplo a TUV v budove sa dodáva z kotolne na zemný plyn, južne orientované kancelárie sú vybavené klimatizáciou. V budove sú rozvedené dátové káble s možnosťou napojenia na internet od rôznych operátorov. (T-COM, GITY a GAYA).
Budova bola kolaudovaná v roku 2007, postavená v triede A podľa platných EU noriem. Súčasťou predaja je aj kompletná infraštruktúra k areálu: oplotenia a brány, spevnené plochy, prípojky energií a médií:
a) Vodovodná prípojka a požiarny hydrant
b) Prípojka zemného plynu
c) Transformátorová stanica a elektrické prípojky/rozvody
d) Dažďová kanalizácia s lapačmi ropných látok a vsakovacími zariadeniami
e) Splašková kanalizácia a prípojka
Poloha budovy umožňuje jednoduchú dostupnosť (aj kamiónov) zo všetkých smerov : Banská Bystrica, Zvolen, 2 km od budovy je dialničný privádzač na D1 - smery Žilina, Bratislava, CZ, PL, Ružomberok, Poprad, Košice,
Presná adresa a lokalizácia budovy je na www.biorafineria.sk
V blízkosti budovy sídlia firmy Volkswagen Slovakia, KraussMaffei Technologies, GGB Slovakia, MAR SK, ZWL Slovakia, Zinkovňa, Hranipex, TFM Slovakia, Motorest Rapid, Lorika Slovakia, Slovasfalt, Cargo, SSE, NDS, atď.
V prípade záujmu volajte prosím na mobil 0908 816 751.
V budove sú zriadené kancelárie a skladové priestory o výmere od 20 m2 do 37 m2. Existuje možnosť priestory variabilne meniť (sadrokartónové priečky), zväčšovať, zmenšovať atď...
Presná adresa a lokalizácia budovy je na www.biorafineria.sk.
V blízkosti budovy sídlia firmy Volkswagen Slovakia, KraussMaffei Technologies, GGB Slovakia, MAR SK, ZWL Slovakia, Zinkovňa, Hranipex, TFM Slovakia, Motorest Rapid, Lorika Slovakia, Slovasfalt, Cargo, SSE, NDS, atď.
V prípade záujmu volajte prosím na mobil 0908 816 751.
We offer building in the industrial park Martin-Sucany. There are offices and storage rooms in this building.
Predaj, administratívna budova, priemyselný park Martin-Sučany
Ponúkame Vám na predaj administratívnu budovu v priemyselnom parku Martin-Sučany.
Budova ponúka komerčné priestory na dvoch podlažiach v celkovej úžitkovej ploche 632 m2, využiteľné na rôzne účely.
K budove patria priľahlé pozemky o rozlohe 857m2.
Pri budove sa nachádza parkovacia plocha pre cca 10 vozidiel, prípadné rozšírenie kapacity je možné.
Budova ponúka variabilné vnútorné priestory (vnútorné priečky sadrokartón), s rôznym účelom využitia:
- administratívno - kancelárske priestory
- investičný objekt k ďalšiemu prenájmu
- sídlo firmy
- skladovacie priestory
- montáž, prípadne ľahká výroba
- predajno - administratívne priestory (showroom)
- ubytovňa
Aktuálne sa v budove nachádza 8 kancelárií, recepcia, zasadačka, archív, jedáleň s výdajňou stravy a s teplým ohrevom, denná miestnosť, chodby a sociálne zariadenia
Teplo a TUV v budove sa dodáva z kotolne na zemný plyn, južne orientované kancelárie sú vybavené klimatizáciou. V budove sú rozvedené dátové káble s možnosťou napojenia na internet od rôznych operátorov. (T-COM, GITY a GAYA).
Budova bola kolaudovaná v roku 2007, postavená v triede A podľa platných EU noriem. Súčasťou predaja je aj kompletná infraštruktúra k areálu: oplotenia a brány, spevnené plochy, prípojky energií a médií:
a) Vodovodná prípojka a požiarny hydrant
b) Prípojka zemného plynu
c) Transformátorová stanica a elektrické prípojky/rozvody
d) Dažďová kanalizácia s lapačmi ropných látok a vsakovacími zariadeniami
e) Splašková kanalizácia a prípojka
Poloha budovy umožňuje jednoduchú dostupnosť (aj kamiónov) zo všetkých smerov : Banská Bystrica, Zvolen, 2 km od budovy je dialničný privádzač na D1 - smery Žilina, Bratislava, CZ, PL, Ružomberok, Poprad, Košice,
Presná adresa a lokalizácia budovy je na www.biorafineria.sk
V blízkosti budovy sídlia firmy Volkswagen Slovakia, KraussMaffei Technologies, GGB Slovakia, MAR SK, ZWL Slovakia, Zinkovňa, Hranipex, TFM Slovakia, Motorest Rapid, Lorika Slovakia, Slovasfalt, Cargo, SSE, NDS, atď.
V prípade záujmu volajte prosím na mobil 0908 816 751.
|
| |||||||||||||||||||||||||||||||
Kontaktovať inzerenta e-mailom
Kontaktovať e-mailom môže iba overený užívateľ.
Overenie je zadarmo.
Vaše telefónne číslo *
Kontaktovať e-mailom môže iba overený užívateľ.
Overenie je zadarmo.
Vaše telefónne číslo *









