ZNÍŽENÁ CENA – Pozemky v Tomášove, okr. Senec, podiel 1/36
- [20.10. 2025]Zmazať/ Upraviť/ Topovať






VÝHODNÁ PONUKA / DRAŽBA
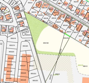
Predmetom dražby je spoluvlastnícky podiel 1/36 k pozemkom p. č. 855/108, p. č. 855/252, p. č. 855/253, p. č. 855/254 a p. č. 855/202.
Pozemky sa nachádzajú v k.ú. Tomášov. Vedené na liste vlastníctva č. 1847 a č. 2728 ako orná pôda a zastavaná plocha a nádvorie. Celková výmera pozemkov je 11 978 m².
Celkový spoluvlastnícky podiel vyjadrený v metroch štvorcových je 332,72 m².
Hodnota spoluvlastníckeho podielu na pozemkoch je podľa znaleckého posudku 33 600,31 €.
Predmetom dražby je spoluvlastnícky podiel 1/36 k pozemkom p. č. 855/108, p. č. 855/252, p. č. 855/253, p. č. 855/254 a p. č. 855/202.
Pozemky sa nachádzajú v k.ú. Tomášov. Vedené na liste vlastníctva č. 1847 a č. 2728 ako orná pôda a zastavaná plocha a nádvorie. Celková výmera pozemkov je 11 978 m².
Celkový spoluvlastnícky podiel vyjadrený v metroch štvorcových je 332,72 m².
Hodnota spoluvlastníckeho podielu na pozemkoch je podľa znaleckého posudku 33 600,31 €.
|
|
Kontaktovať inzerenta e-mailom
Kontaktovať e-mailom môže iba overený užívateľ.
Overenie je zadarmo.
Vaše telefónne číslo *
Kontaktovať e-mailom môže iba overený užívateľ.
Overenie je zadarmo.
Vaše telefónne číslo *