715f Nájom komerčných priestorov a skladu Košice
- [19.10. 2025]Zmazať/ Upraviť/ Topovať











Lokalita: Južná trieda, areál v obchodno - priemyselnej časti mesta
Dostupnosť: po asfaltovej príjazdovej komunikácii až ku dverám budovy. Zastávka MHD je priamo pred areálom.
Parkovanie: vlastné parkovisko vo vyasfaltovanom oplotenom dvore, monitoroovanom kamerovým systémom.
Nižšie uvedené priestory je možné prenajať vcelku, aj samostatne.
1/ reprezentatívne obchodno-kancelárske priestory s rozlohou 314 m2 s rozmiestnením na 3 podlažiach, spojené otvorenou galériou s vnútorným schodiskom.. Vlastné sociálne zázemie.
2/ vykurovaný sklad 800 m2 s výškou 8 m.+ kompletné zázemie100 m2 ( 2x expedícia, kancelária, WC, umyvárka, šatne)
Možnosť vjazdu až do skladu aj väčším dodávkovým vozidlom.
Všetky miestnosti sú suché, svetlé s centrálnym vykurovaním, niektoré miestnosti majú aj podlahové kúrenie a klimatizáciu.
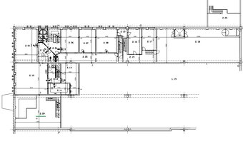
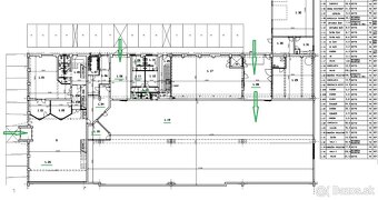
Umiestnenie a rozlohy jednotlivých miestností sú zrejmé z priložených pôdorysov a fotodokumentácie.
K dispozícii: dohoda.
Mesačné nájomné za m2: 1/ 9,40 a 2/ 6,- € bez DPH
K cene sú účtované médiá podľa skutočnej spotreby.
Doporučujeme osobnú prehliadku, pri ktorej Vám bude predložený konkrétny výpočet nájomného.
Dostupnosť: po asfaltovej príjazdovej komunikácii až ku dverám budovy. Zastávka MHD je priamo pred areálom.
Parkovanie: vlastné parkovisko vo vyasfaltovanom oplotenom dvore, monitoroovanom kamerovým systémom.
Nižšie uvedené priestory je možné prenajať vcelku, aj samostatne.
1/ reprezentatívne obchodno-kancelárske priestory s rozlohou 314 m2 s rozmiestnením na 3 podlažiach, spojené otvorenou galériou s vnútorným schodiskom.. Vlastné sociálne zázemie.
2/ vykurovaný sklad 800 m2 s výškou 8 m.+ kompletné zázemie100 m2 ( 2x expedícia, kancelária, WC, umyvárka, šatne)
Možnosť vjazdu až do skladu aj väčším dodávkovým vozidlom.
Všetky miestnosti sú suché, svetlé s centrálnym vykurovaním, niektoré miestnosti majú aj podlahové kúrenie a klimatizáciu.
Umiestnenie a rozlohy jednotlivých miestností sú zrejmé z priložených pôdorysov a fotodokumentácie.
K dispozícii: dohoda.
Mesačné nájomné za m2: 1/ 9,40 a 2/ 6,- € bez DPH
K cene sú účtované médiá podľa skutočnej spotreby.
Doporučujeme osobnú prehliadku, pri ktorej Vám bude predložený konkrétny výpočet nájomného.
|
|
Kontaktovať inzerenta e-mailom
Kontaktovať e-mailom môže iba overený užívateľ.
Overenie je zadarmo.
Vaše telefónne číslo *
Kontaktovať e-mailom môže iba overený užívateľ.
Overenie je zadarmo.
Vaše telefónne číslo *