Stavebné pozemky určené pre podnikateľské účely
- [19.10. 2025]Zmazať/ Upraviť/ Topovať

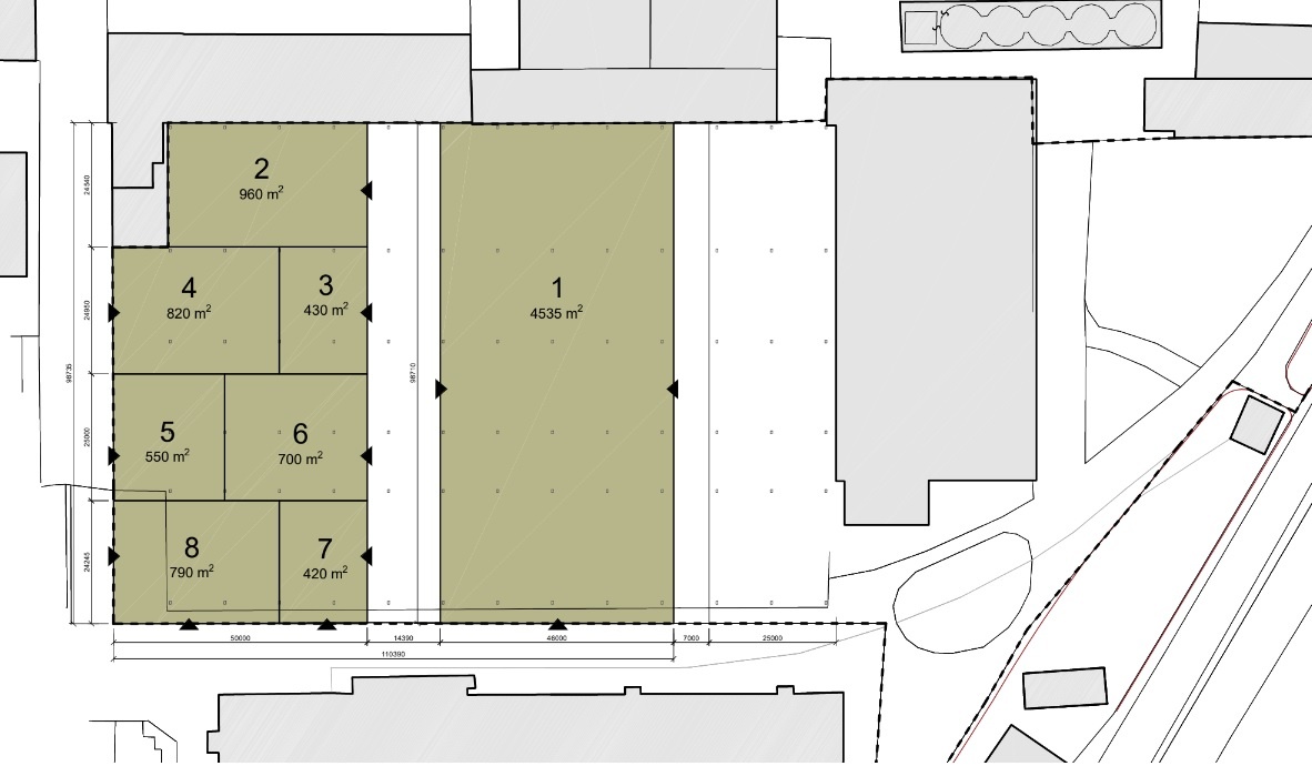
Ponúkame na predaj stavebné pozemky určené pre podnikateľské účely v lokalite bývalého areálu ZTS Martin.
K dispozícii sú pozemky už od 700 m² - 5000 m².
Možnosť prispôsobenia veľkosti pozemku podľa vašich potrieb.
Spevnený pozemok pripravený na okamžitú výstavbu.
Pozemok je súčasťou územia funkčne vymedzeného pre priemyselnú výrobu s plochami pre výrobné prevádzky a skladové hospodárstvo - až 100% možnosť zastavanosti.
Prístupové cesty a všetky inžinierske siete (elektrina, voda, plyn, kanalizácia).
Strategická poloha v priemyselnej zóne, výborná dopravná dostupnosť.
Ideálne aj pre menšie firmy hľadajúce miesto pre výstavbu výrobných hál, skladov alebo administratívnych budov.
Viac info +421 914 321 289
K dispozícii sú pozemky už od 700 m² - 5000 m².
Možnosť prispôsobenia veľkosti pozemku podľa vašich potrieb.
Spevnený pozemok pripravený na okamžitú výstavbu.
Pozemok je súčasťou územia funkčne vymedzeného pre priemyselnú výrobu s plochami pre výrobné prevádzky a skladové hospodárstvo - až 100% možnosť zastavanosti.
Prístupové cesty a všetky inžinierske siete (elektrina, voda, plyn, kanalizácia).
Strategická poloha v priemyselnej zóne, výborná dopravná dostupnosť.
Ideálne aj pre menšie firmy hľadajúce miesto pre výstavbu výrobných hál, skladov alebo administratívnych budov.
Viac info +421 914 321 289
|
|
Kontaktovať inzerenta e-mailom
Kontaktovať e-mailom môže iba overený užívateľ.
Overenie je zadarmo.
Vaše telefónne číslo *
Kontaktovať e-mailom môže iba overený užívateľ.
Overenie je zadarmo.
Vaše telefónne číslo *