1 izb. byt s balkónom, NA PIESKU
- [19.10. 2025]Zmazať/ Upraviť/ Topovať






















Realitná kancelária NIKO-REAL, s.r.o. ponúka na predaj 1 izbový byt v Ružinove, NA PIESKU.
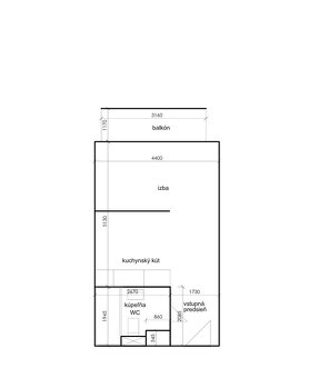
Byt má výmeru 33,25 m2 + BALKÓN o výmere 3,70 m2.
K bytu prislúcha aj pivnica na prízemí domu o výmere 2,43 m2.
Nachádza sa na 2. poschodí 3 poschodového, zatepleného bytového domu bez výťahu.
Pozemok pod domom je v spoluvlastníctve vlastníkov bytov v dome.
Byt je slnečný s orientáciou na juhovýchod do vnútrobloku (nie na diaľnicu).
Nízke mesačné náklady: 112 € pre 2 osoby + elektrina
Bytový dom má energetický certifikát B.
V cene je aj prenájom vonkajšieho parkovacieho státia priamo pred domom (na rok zaplatené).
Byt je ideálny aj ako investícia za účelom prenájmu.
Bytový dom bol daný do užívania v roku 2010 a je vo vybavení:
- kuchynská linka na mieru so vstavanými spotrebičmi – sklokeramická varná doska, digestor, rúra, umývačka riadu, chladnička s mrazničkou
- vstavaná skriňa v predsieni (2018)
- klimatizácia v izbe (2021)
- spacia časť je vkusne oddelená tehlovým múrikom
- plastové okná, žalúzie, sieťky
- nová plávajúca laminátová podlaha v izbe a na chodbe (2024)
- v kúpeľni je umiestnená vaňa
- dlažba na balkóne
- bezpečnostné protipožiarne vchodové dvere
- novo vymaľovaný.
Do 10 min. chôdzou sú zástavky MHD (autobus, električka), do 15 min. potraviny LIDL, do 15 min. Vrakunský lesopark, hrádza s možnosťou cykloturistiky. Do 5 min. prístup na diaľničný obchvat.
CENA: 158 900,- EUR
Cena je uvedená vrátane sprostredkovateľskej provízie.
Provízia zahŕňa kvalitné realitné a právne služby spojené s prevodom nehnuteľnosti:
- vypracovanie kompletnej zmluvnej dokumentácie (zmluva o budúcej zmluve, rezervačná zmluva, zmluva o prevode vlastníctva bytu, návrh na vklad vlastníckych práv, prípadné dodatky, protokol o prevzatí a odovzdaní nehnuteľnosti...)
- notárske poplatky spojené s overovaním podpisov predávajúceho na zmluve o prevode vlastníctva bytu
- správny poplatok (kolok v hodnote 100,- EUR) spojený s návrhom na vklad vlastníckych práv
- zabezpečenie promptného ohodnotenia nehnuteľnosti prostredníctvom znalca, ktorý je akceptovaný všetkými bankami
Možnosť financovania prostredníctvom hypotekárneho úveru. Ponúkame bezplatné stretnutie a poradenstvo s hypotekárnym špecialistom priamo u nás v kancelárii.
Kontakt:
NIKO-REAL, s.r.o.,
Ing. Katarína Bajčeva,
0903 718 743
Byt má výmeru 33,25 m2 + BALKÓN o výmere 3,70 m2.
K bytu prislúcha aj pivnica na prízemí domu o výmere 2,43 m2.
Nachádza sa na 2. poschodí 3 poschodového, zatepleného bytového domu bez výťahu.
Pozemok pod domom je v spoluvlastníctve vlastníkov bytov v dome.
Byt je slnečný s orientáciou na juhovýchod do vnútrobloku (nie na diaľnicu).
Nízke mesačné náklady: 112 € pre 2 osoby + elektrina
Bytový dom má energetický certifikát B.
V cene je aj prenájom vonkajšieho parkovacieho státia priamo pred domom (na rok zaplatené).
Byt je ideálny aj ako investícia za účelom prenájmu.
Bytový dom bol daný do užívania v roku 2010 a je vo vybavení:
- kuchynská linka na mieru so vstavanými spotrebičmi – sklokeramická varná doska, digestor, rúra, umývačka riadu, chladnička s mrazničkou
- vstavaná skriňa v predsieni (2018)
- klimatizácia v izbe (2021)
- spacia časť je vkusne oddelená tehlovým múrikom
- plastové okná, žalúzie, sieťky
- nová plávajúca laminátová podlaha v izbe a na chodbe (2024)
- v kúpeľni je umiestnená vaňa
- dlažba na balkóne
- bezpečnostné protipožiarne vchodové dvere
- novo vymaľovaný.
Do 10 min. chôdzou sú zástavky MHD (autobus, električka), do 15 min. potraviny LIDL, do 15 min. Vrakunský lesopark, hrádza s možnosťou cykloturistiky. Do 5 min. prístup na diaľničný obchvat.
CENA: 158 900,- EUR
Cena je uvedená vrátane sprostredkovateľskej provízie.
Provízia zahŕňa kvalitné realitné a právne služby spojené s prevodom nehnuteľnosti:
- vypracovanie kompletnej zmluvnej dokumentácie (zmluva o budúcej zmluve, rezervačná zmluva, zmluva o prevode vlastníctva bytu, návrh na vklad vlastníckych práv, prípadné dodatky, protokol o prevzatí a odovzdaní nehnuteľnosti...)
- notárske poplatky spojené s overovaním podpisov predávajúceho na zmluve o prevode vlastníctva bytu
- správny poplatok (kolok v hodnote 100,- EUR) spojený s návrhom na vklad vlastníckych práv
- zabezpečenie promptného ohodnotenia nehnuteľnosti prostredníctvom znalca, ktorý je akceptovaný všetkými bankami
Možnosť financovania prostredníctvom hypotekárneho úveru. Ponúkame bezplatné stretnutie a poradenstvo s hypotekárnym špecialistom priamo u nás v kancelárii.
Kontakt:
NIKO-REAL, s.r.o.,
Ing. Katarína Bajčeva,
0903 718 743
|
| |||||||||||||||||||||||||||||||
Kontaktovať inzerenta e-mailom
Kontaktovať e-mailom môže iba overený užívateľ.
Overenie je zadarmo.
Vaše telefónne číslo *
Kontaktovať e-mailom môže iba overený užívateľ.
Overenie je zadarmo.
Vaše telefónne číslo *

