Moderný 4-izbový holodom
- [18.10. 2025]Zmazať/ Upraviť/ Topovať











Typ: Rodinný dom
Obec: Nitra
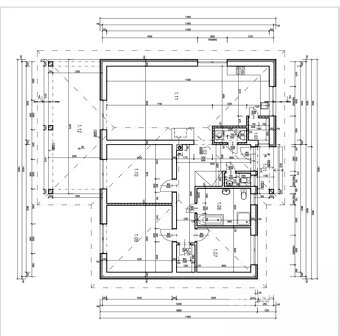
V ponuke je na predaj moderná 4- izbová novostavba v štádiu holodom na 7-árovom pozemku v novovybudovanej, príjemnej lokalite pri Nitre. Dom je navrhnutý s dôrazom na funkčnosť a komfortné bývanie.
Dispozične pozostáva:
z 3 samostatných izieb
priestrannej kuchyne spojenej s obývačkou, odkiaľ je výstup na slnečnú terasu
špajza pre praktické uskladnenie potravín
šatník pre väčší komfort a úložný priestor
technická miestnosť
kúpeľňa s WC + samostatné WC
Stavba je z kvalitnej tehlovej konštrukcie s 15 cm zateplením. Dom má sedlovú strechu s montovanou betónovou škridlou a väzníkovým krovom. Na pozemku sú všetky inžinierske siete (elektrina, voda, plyn) a žumpa s kapacitou 10 m³.
Okrem výbornej dispozície má dom okná s trojsklom nemecké Salamander, ktoré zabezpečujú výbornú izoláciu a znižujú náklady na vykurovanie. Dom je vybavený podlahovým kúrením, ktoré zabezpečuje rovnomerné rozloženie tepla v celom priestore. Celý dom spĺňa kritériá energetickej triedy A1, čo zaručuje nižšie prevádzkové náklady a vysokú energetickú účinnosť.
Stavba bola dokončená v roku 2024 a čaká na nového majiteľa, ktorý si ju môže dokončiť podľa svojich predstáv.
Bonusom je ideálna juhovýchodná orientácia, ktorá zabezpečuje dostatok denného svetla počas celého dňa a príjemnú atmosféru v obytných priestoroch.
Tento dom sa nachádza v tichej lokalite s výbornou dostupnosťou – len pár minút od diaľnice R1, čo zaručuje rýchly prístup do Nitry. V obci je zabezpečené MHD spojenie, čo ocenia aj tí, ktorí preferujú verejnú dopravu.
Táto nehnuteľnosť ponúka komfortné a moderné bývanie v slnečnom a tichom prostredí pri lese.
Zarezervujte si obhliadku ešte dnes!
Status: aktívne
Vlastníctvo: osobné
Plocha pozemku: 722 m2
Úžitková plocha: 169.6 m2
Stav: novostavba
Počet izieb: 4
Energetický certifikát: A
Typ budovy: tehla
Terasa: áno
Špajza: áno
Rok výstavby: 2024
Celková plocha: 722 m2
Terasa plocha: 27 m2
Orientácia: juhovýchod
Inžinierske siete: áno
Voda: áno
Elektrika: áno
Plyn: áno
Voda - na pozemku: áno
Elektrika - na pozemku: áno
Plyn - na pozemku: áno
Vykurovanie - podlahové: áno
Optická sieť: áno
Obec: Nitra
V ponuke je na predaj moderná 4- izbová novostavba v štádiu holodom na 7-árovom pozemku v novovybudovanej, príjemnej lokalite pri Nitre. Dom je navrhnutý s dôrazom na funkčnosť a komfortné bývanie.
Dispozične pozostáva:
z 3 samostatných izieb
priestrannej kuchyne spojenej s obývačkou, odkiaľ je výstup na slnečnú terasu
špajza pre praktické uskladnenie potravín
šatník pre väčší komfort a úložný priestor
technická miestnosť
kúpeľňa s WC + samostatné WC
Stavba je z kvalitnej tehlovej konštrukcie s 15 cm zateplením. Dom má sedlovú strechu s montovanou betónovou škridlou a väzníkovým krovom. Na pozemku sú všetky inžinierske siete (elektrina, voda, plyn) a žumpa s kapacitou 10 m³.
Okrem výbornej dispozície má dom okná s trojsklom nemecké Salamander, ktoré zabezpečujú výbornú izoláciu a znižujú náklady na vykurovanie. Dom je vybavený podlahovým kúrením, ktoré zabezpečuje rovnomerné rozloženie tepla v celom priestore. Celý dom spĺňa kritériá energetickej triedy A1, čo zaručuje nižšie prevádzkové náklady a vysokú energetickú účinnosť.
Stavba bola dokončená v roku 2024 a čaká na nového majiteľa, ktorý si ju môže dokončiť podľa svojich predstáv.
Bonusom je ideálna juhovýchodná orientácia, ktorá zabezpečuje dostatok denného svetla počas celého dňa a príjemnú atmosféru v obytných priestoroch.
Tento dom sa nachádza v tichej lokalite s výbornou dostupnosťou – len pár minút od diaľnice R1, čo zaručuje rýchly prístup do Nitry. V obci je zabezpečené MHD spojenie, čo ocenia aj tí, ktorí preferujú verejnú dopravu.
Táto nehnuteľnosť ponúka komfortné a moderné bývanie v slnečnom a tichom prostredí pri lese.
Zarezervujte si obhliadku ešte dnes!
Status: aktívne
Vlastníctvo: osobné
Plocha pozemku: 722 m2
Úžitková plocha: 169.6 m2
Stav: novostavba
Počet izieb: 4
Energetický certifikát: A
Typ budovy: tehla
Terasa: áno
Špajza: áno
Rok výstavby: 2024
Celková plocha: 722 m2
Terasa plocha: 27 m2
Orientácia: juhovýchod
Inžinierske siete: áno
Voda: áno
Elektrika: áno
Plyn: áno
Voda - na pozemku: áno
Elektrika - na pozemku: áno
Plyn - na pozemku: áno
Vykurovanie - podlahové: áno
Optická sieť: áno
|
|
Kontaktovať inzerenta e-mailom
Kontaktovať e-mailom môže iba overený užívateľ.
Overenie je zadarmo.
Vaše telefónne číslo *
Kontaktovať e-mailom môže iba overený užívateľ.
Overenie je zadarmo.
Vaše telefónne číslo *